126 Lorong 1 Toa Payoh - 3 Units for Sale
Map View
We’ve shown you all the matches
Almost there!
Refining your recommendations.
This may take a few seconds...
126 Lorong 1 Toa Payoh
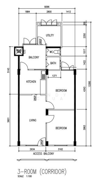
126 Lorong 1 Toa Payoh 310126(D12) Balestier / Toa Payoh
Summary
126 Lorong 1 Toa Payoh
Read more
Project details
TypeHDB
PriceS$ 380K - 420K
Completion year1969
Tenure99-year Leasehold
No. of blocks1
No. of floors16
DeveloperHousing & Development Board (HDB)
Explore PropertyGuru
Properties by ownership
Properties by furnishing
Properties by price per sqft.
Properties by year constructed













