108 Hougang Avenue 1 - 1 Units for Sale
Map View
We’ve shown you all the matches
Almost there!
Refining your recommendations.
This may take a few seconds...
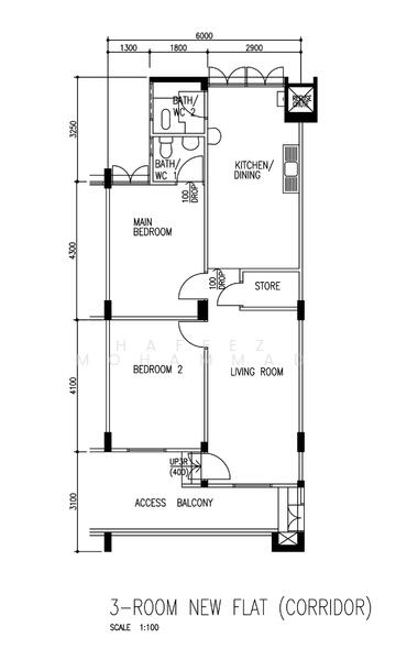
108 Hougang Avenue 1
108 Hougang Avenue 1 530108(D19) Hougang / Punggol / Sengkang
Summary
108 Hougang Avenue 1
Read more
Project details
TypeHDB
PriceS$ 488K - 2.8M
Completion year1982
Tenure99-year Leasehold
No. of blocks1
No. of floors4
DeveloperHousing & Development Board (HDB)
Explore PropertyGuru
Properties by ownership
















