231A Sumang Lane - 1 Units for Rent
Map View
We’ve shown you all the matches
Almost there!
Refining your recommendations.
This may take a few seconds...
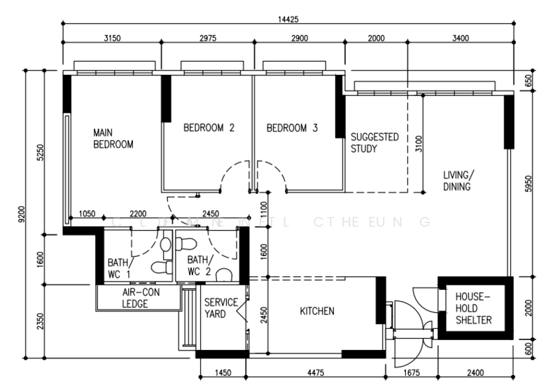
231A Sumang Lane
231A Sumang Lane 821231(D19) Hougang / Punggol / Sengkang
Project details
TypeHDB
Completion year2017
Tenure99-year Leasehold
No. of blocks1
No. of floors17
Total units90
Top facilities
Adult fitness stations
Car park
Children's playground
Elderly wellness stations
DeveloperHousing & Development Board (HDB)











