201C Woodleigh Link - 1 Units for Rent
Map View
We’ve shown you all the matches
Almost there!
Refining your recommendations.
This may take a few seconds...
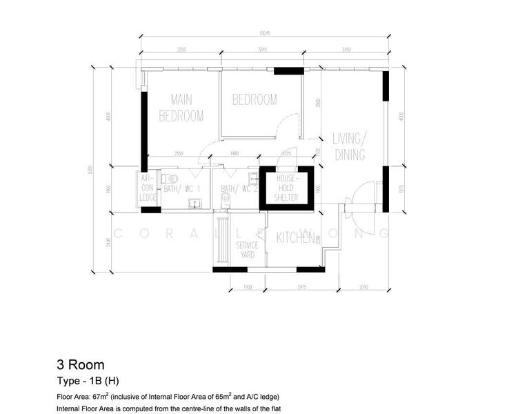
201C Woodleigh Link
201C Woodleigh Link 363201(D13) Macpherson / Potong Pasir
Project details
TypeHDB
Completion year2022
Tenure99-year Leasehold
No. of blocks1
Total units53
Top facilities
Car park
DeveloperHousing & Development Board (HDB)








