137 Jalan Bukit Merah
137 Jalan Bukit Merah
S$ 3,200 /mo
2
Beds
1
Bath
635
sqft (floor)
1.3 km (16 mins) from EW17 Tiong Bahru MRT
Available from 13 Apr 2026
About this property
Near town, Tiong Bahru MRT
Walk to SGH
Near Chinatown, Tiong Bahru, interchange
5min walk to market
Near Chinatown, Tiong Bahru, interchange
5min walk to market
137 Jalan Bukit Merah

137 Jalan Bukit Merah
View project detailsFAQs
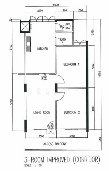
There are 2 bedroom(s) with 1 bathroom(s) in this unit.
The rent of this unit at 137 Jalan Bukit Merah is about S$ 3,200 /mo.
The current rental PSF at 137 Jalan Bukit Merah is about S$ 5.04 psf.
137 Jalan Bukit Merah is located at 137 Jalan Bukit Merah Alexandra / Commonwealth City & South West (D01-08).
Floor size of this unit at 137 Jalan Bukit Merah is 635 sqft.
Explore other options in and around Alexandra / Commonwealth
Based on the property criteria, you might be interested on the following
HDB Flat For Rent
Show MoreNearest MRT Stations
Nearest Schools

















