Terrasse
27 Terrasse Lane
S$ 900,000
Negotiable1
Bed
1
Bath
538
sqft
S$ 1,673
psf
420 m (5 mins) from CR9 Serangoon North MRT
About this property
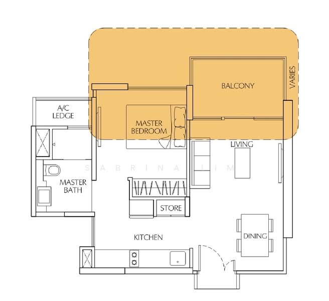
1 bedroom with balcony and on high floor
-high floor #5
-proper bedroom
-well kept
-full condo facilities
-mins to Serangoon North MRT
-mins to several prestigious schools
-surrounded with amenities
Must View!
Sabrina 9066.3388
———
Terrasse is a leasehold condominium development that is located at Terrasse Lane in District 19. It is a condominium project that was completed recently. The project was completed in 2015 with a total of 414 units available for sale or rent. The condominium development is located close to public transportation that allows residents to move easily from one place to another from the condominium. There are many shops and amenities close to the condominium development which would ease the process for residents and they do not need to go far to find what they need. The project was developed by MCL Land (Serangoon) Pte Ltd, a big sized property development that has developed about 27 other property projects in Singapore.
Terrasse is a beautiful condominium development that has many charms to it. There are various facilities that residents can enjoy while living in Terrasse. Residents of Terrasse would not have to travel far to get their basic necessities as everything is close within their reach. Residents can enjoy the rain tree boulevard, palm courtyard, viewing deck, serene garden, sun deck, barbeque pavilion, fern valley, side gate, fitness area, tennis court, multi-purpose court, jogging track, children's pool, lagoon playscape, castle playscape, floating islands, misty falls, firefly creek, jacuzzi, 50m lap pool, jungle jacuzzi, cascading springs, ripple pond, arcadia clubhouse, mirage esplanade and wellness sanctuary (outdoor fitness, gymnasium, spa room, exercise studio). Residents can enjoy taking evening walks around the condominium development or take a dip in the pool on a hot day. The condominium comes equipped with covered car parks and 24 hours security system to ensure the safety of residents is well taken care of at all time.
Amenities
Air conditioner
Balcony
Corner unit
Covered car parking
Common facilities
Car park
Affordability
Tell us your monthly income and expenses to see if this home fits your budget.
Terrasse

Terrasse is a leasehold condominium development that is located at Terrasse Lane in District 19. It is a condominium project that was completed recently. The project was completed in 2015 with a total of 414 units available for sale or rent. The condominium development is located close to public transportation that allows residents to move easily from one place to another from the condominium. There are many shops and amenities close to the condominium development which would ease the process for residents and they do not need to go far to find what they need. The project was developed by MCL Land (Serangoon) Pte Ltd, a big sized property development that has developed about 27 other property projects in Singapore. - Terrasse is a beautiful condominium development that has many charms to it. There are various facilities that residents can enjoy while living in Terrasse. Residents of Terrasse would not have to travel far to get their basic necessities as everything is close within their reach. Residents can enjoy the rain tree boulevard, palm courtyard, viewing deck, serene garden, sun deck, barbeque pavilion, fern valley, side gate, fitness area, tennis court, multi-purpose court, jogging track, children's pool, lagoon playscape, castle playscape, floating islands, misty falls, firefly creek, jacuzzi, 50m lap pool, jungle jacuzzi, cascading springs, ripple pond, arcadia clubhouse, mirage esplanade and wellness sanctuary (outdoor fitness, gymnasium, spa room, exercise studio). Residents can enjoy taking evening walks around the condominium development or take a dip in the pool on a hot day. The condominium comes equipped with covered car parks and 24 hours security system to ensure the safety of residents is well taken care of at all time. There is a number of public transportation close to Terrasse that residents can make use of. The closest bus stops are located at Gracehaven S Army, Toho Green and Xinmin Primary School. For those with vehicles, the shopping district located at Orchard Road can be easily accessed via the Central Expressway, Lor Chuan and Yio Chu Kang Road in 15 to 20 minutes. Five Star Western FoodMalay Nasi PadangZhuang Ji Lor MeeMing Kitchen Seafood RestaurantChindamani Indian Food Stall Bowen Secondary SchoolChang Chun Language SchoolRosyth SchoolXinmin Primary SchoolXinmin Secondary School Bvh Community And Continuing Care ClinicHougang ClinicAwwa Dental ClinicTh Chia Medical PracticeS Lee Clinic Ang Mo SupermarketD & S MinimartFairPrice Xtra Hougang St 91Prime SupermarketSheng Siong Supermarket Terrasse is a condominium development that is made up of a total of 414 units of 5-storey condominiums. There are 5 types of units available with various layouts that residents can browse through. The size of the units ranges between 506 square feet to 2,217 square feet. The layouts for the units in Terrasse aim to provide residents with homes that is comfortable for working adults, couples or families looking to own a spacious and manageable condominium unit. The sale price for the units ranges between S$ 680,000 to S$ 2,350,000. The rental for the units ranges between S$ 3,300 to S$ 5,900. Project Name: TerrasseType: CondominiumDistrict: 19Configuration: 414 residential units Unit Types:1 bedroom (506 sqft – 657 sqft)2 bedrooms (732 sqft – 958 sqft)3 bedrooms (1,001 sqft – 1,550 sqft)4 bedrooms (1,378 sqft – 2,497 sqft)5 bedrooms (2,110 sqft – 2,217 sqft) The following developments were developed by the same developer as Terrasse:Sol AcresThe WarrenThe Metz The following developments are in the same neighborhood as Terrasse:The Florence ResidencesAffinity At SerangoonRiverfront ResidencesLa FiestaKingsford WaterbaySengkang Grand Residences
View project details

























































