Riversails
6 Upper Serangoon Crescent
S$ 2,400,000
Negotiable3
Beds
3
Baths
1,819
sqft
S$ 1,319
psf
710 m (9 mins) from SE4 Kangkar LRT
About this property
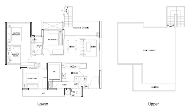
R.A.R.E.! Pent House Unit With Open Roof
-Birght And Breezy
-Huge Roof Top Space
-3 Bedroom
-3 Bathroom
-1819 Sqft
-4 Super Markets within 1km
-2 Secondary Schools within 1km
-4 Primary school within 1 Jim
Amenities
False ceiling
Common facilities
Car park
Affordability
Tell us your monthly income and expenses to see if this home fits your budget.
Riversails

Riversails is a leasehold condominium building that is located at Bencoolen Street in District 19. It is a newly developed condominium building. The project was completed in 2016 with a total of 928 units available for sale or rent. The condominium is located close to public transportation that allows residents to move easily from one place to another from the condominium. There are many shops and amenities close to the condominium which would ease the process for residents and they do not need to go far to find what they need. The project was developed by All Green Properties Limited, a big-scale real estate company listed on Singapore Exchange. All Green Properties Limited has developed 28 real estate projects in Singapore. - Riversails is a beautiful condominium that has many charms to it. There are various facilities that residents can enjoy while living in Riversails. Residents of Riversails would not have to travel far to get their basic necessities as everything is close within their reach. Residents can enjoy the grand pavilion, peak pavilion, cabanas, floating pavilion, discovery pavilion, outdoor living deck, outdoor breakfast patio, tea party lounge, patio living terrace, bbq pod, patio dining, party deck, play pool, kid’s spa, interactive water feature, miniature golf, tree house playground, flying fox, water swings, paddle boats, climbing cubes, jungle gym mini theatre and stage of tales, children’s project area, reflexology walk, lawn hammocks, water hammocks, floating pontoon decks, sun deck, dance deck, aqua deck, tennis court, badminton court lawn, wi-fi pod, outdoor gym, table tennis room, yoga pod, jogging track, island swirl spa, lagoon spa, dip pool 50m lap pool, timber boardwalk, rain garden, island planting, aroma-peutic garden, courtyard water feature & sculpture, palm garden, koi pond, kinectic water feature, green trellis, stream of stars, water garden, bar counter, camping lawn, star gazing lawn, outdoor fitness, reading corner, outdoor dining, bird spotting and viewing deck, children play area, bbq, gym, function room, reading room and audio visual room. There is a number of public transportation close to Riversails that residents can make use of. The closest LRT stations to Riversails are LRT Kangkar and LRT Ranggung. The closest bus stops are located at Kangar Station, Serangoon Secondary School, The Rivervale and Block 477A. For those with vehicles, the shopping district located at Orchard Road can be easily accessed via Central Expressway, Serangoon Road and Kallang-Paya Lebar Expressway in 15 to 20 minutes. Under The Big TreeTender FreshChumpo Indonesian PadangKopitiam RivervaleHuang Heqing North Spring Primary SchoolNorth Vista Primary SchoolNorth Vista Secondary SchoolSerangoon Primary SchoolPunggol Primary School Healthway Medical ClinicLifeline Medical GroupRivervale Family Clinic & SurgerySengkang Dental SurgeryMedipoint Medical Centre Rivervale Plaza FairPrice Upper Serangoon ViewYoon Klrang Trading Pte LtdGiant Express Riversails is a condominium development that is made up of a total of 928 units in a 18-storey high condominium. There are 4 unit types available with various layouts that residents can browse through. The size for the unit ranges between 506 square feet to 1,615 square feet. The layouts for the units in Riversails aim to provide residents with homes that is comfortable for working adults, couples or families looking to own a spacious and manageable condominium unit. The sale price for the units ranges between S$ 630,000 to S$ 2,880,200. The rental for the units ranges between S$ 1,900 to S$ 2,900. Project Name: RiversailsType: CondominiumDistrict: 19Configuration: 928 residential units Unit Types:1 bedroom (506 square feet – 517 square feet)2 bedrooms (850 square feet – 980 square feet)3 bedrooms (1,033 sqft – 2,605 sqft)4 bedrooms (1,615 square feet) The following developments are in the same neighborhood as Riversails:The Florence ResidencesAffinity At SerangoonRiverfront ResidencesLa FiestaKingsford WaterbaySengkang Grand Residences
View project details


























