Parc Mackenzie
68 Mackenzie Road
S$ 1,880,000
2
Beds
2
Baths
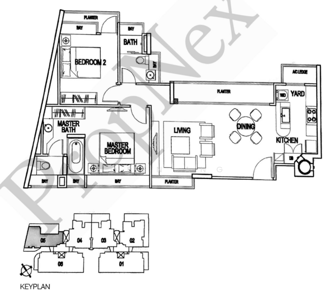
904
sqft (floor)
S$ 2,080
psf (floor)
240 m (3 mins) from NE7/DT12 Little India MRT
About this property
MRT, Eateries, Convenience at doorstep! Well maintained spacious 2BR
2 mins Little India MRT (DTL & NEL)
5 mins Tekka Centre & Tekka Market, Fairprice Supermarket
1KM St Margaret's Primary, Farrer Park Primary, ACS (Junior)
Walk to eateries, schools and malls
Available immediately
Enquire now for a viewing session today!
Amenities
Air conditioner
Basic lights
Bathtub
Bedroom cabinets
Common facilities
Swimming pool
Affordability
Tell us your monthly income and expenses to see if this home fits your budget.
Parc Mackenzie

The Parc Mackenzie is a freehold apartment development project located in District 9 in Singapore. It was completed ten years ago in 2009 and it comprises of a total of 42 units. Being close to the 2 popular landmarks in Little India, the Tekha Market and Food Centre and The Verge is one of Parc Mackenzie’s strongest selling points. The Parc Mackenzie is an apartment development project developed by Yanlord Development PTE LTD. Yanlord Land Group Ltd. is an investment holding company, which engages in the procurement of funds. It operates through the following segments: Property Development, Property Investment, and Others. The Property Development segment focuses on the development of residential, commercial, and other properties. The Property Investment segment includes leasing of properties to generate rental income, and to gain from the appreciation in the value of the properties in the long term. The Others segment comprises of property management, ancillary services, advance purchase of construction materials, and others. The company was founded by Sheng Jian Zhong in 1993 and is headquartered in Singapore. Offering freehold tenure to its tenants is one of the strongest selling points of Parc Mackenzie. Besides that, basic condominium facilities like a swimming pool is available in Parc Mackenzie. Parc Mackenzie is also located within the Little India area, making it highly accessible to amenities like food centres, restaurants, cafes, banks, clinics and many more. Furthermore, some of the good schools are also near to Parc Mackenzie, making it suitable for a family with children to stay in. Being near to several MRT stations also contributes to increasing Parc Mackenzie’s accessibility Accessibility is one of the strongest selling points for Parc Mackenzie. The nearest MRT station is the NE7 Little India MRT Station that is only about 250 metres and 3 minutes of walking distance away. The second nearest MRT station is the DT13 Rochor MRT Station. It is about 700 metres and 8 minutes of walking distance away from Parc Mackenzie. The NS24 Dhoby Ghaut MRT Station is approximately 850 metres and 10 minutes of walking distance away, making it the third nearest MRT Station from Parc Mackenzie. Furthermore, Parc Mackenzie is near to a wide variety of amenities due to being situated in Little India. La Salle College of the ArtsSaint Margaret’s Primary SchoolHouse On The Hill Montessori Pre-SchoolShanghai Institute of ChineseFresenius Pharma Asias PacificKKH Outpatient PharmacyGuardian SingaporeMediwell Enterprise PTE LTDMary StoreChennai Trading & Supermart PTE LTDSelvi Store TradingFullmoon MarketingMount Emily ParkGalaxy GardenIstana Japanese GardenIstana Front LawnMustardAnanda BhavanThe Banana Leaf ApoloThe Manhattan Fish Market Plaza SingapuraMackenzie Rex RestaurantSQI International PTE LTDBurlington SquarePlaza SingapuraSunshine PlazaThe Atrium Parc Mackenzie is a freehold apartment development project. It was completed in 2011 and it comprises of a total of 42 units. The range of the selling price per unit is SGD1.36mil to SGD1.4mil with SGD1,527 to SGD1,600 per square feet.Project Name: Parc MackenzieDistrict: 9Configuration: 42 residential unitsUnit types for Parc Mackenzie:2 bedrooms3 bedrooms The following projects are in the same neighbourhood as Parc Mackenzie:111 Emerald Hill1919283 Studio336 River Valley
View project details























