North Park Residences
21 Yishun Central 1
S$ 1,890,000
Starting From2
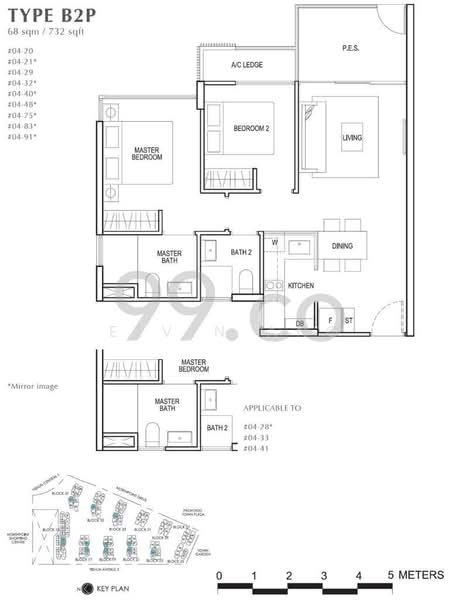
Beds
2
Baths
872
sqft (floor)
S$ 2,167
psf (floor)
670 m (8 mins) from NS13 Yishun MRT
About this property
Just gotten key, integrated with Northpoint City
Spacious Bright Layout!
Integrated mix development with Northpoint City by Frasers Property
Right above Yishun MRT, bus Interchange
Superb high ceiling
Motivated seller
1. Aircon underpass leading to the MRT station
a shopping underpass that leads from Northpoint City to Yishun MRT station, the town garden and surrounding amenities, so residents can now make their walk to the station a more exciting and vibrant one.
2. an air-conditioned bus interchange in Northpoint city, residents can comfortably wait for their buses without going out into the heat.
3. Northpoint Shopping Centre. Shopping at your door steps
the largest mall in the North of Singapore, provide an array of shopping, dining, leisure and entertainment facilities.
4. Singapore’s first Community Club in a shopping mall
Northpoint City will feature Singapore’s first Community Club located in a shopping mall, Nee Soon Central Community Club. It is also the first Community Club to be fully air-conditioned, moving from a “void deck CC” to a “lifestyle CC”, a name penned by the People’s Association (PA).
Keys on hand
Call Elvin Ang 8*****
Common facilities
Barbeque pits
Clubhouse
Fitness corner
Function room
Affordability
Tell us your monthly income and expenses to see if this home fits your budget.
North Park Residences

North Park Residences Situated in the heart of District 27, on top of Northpoint City - the largest mall in the north of Singapore, North Park Residences couldn’t be more conveniently placed. As well as the 400 retail and dining options in the mall, there is also a bus interchange, library and cinema on site, as well as Yishun MRT Station on the North South Line. A commute into the city would take 25 minutes on the MRT, and slightly less by car. North Park Residences itself has 920 residential units ranging from 1 bed units and studios, up to 5 bed units, with a wide range of configurations including dual key options for the 2 and 3 bed units. North Park Residences also has an impressive number of facilities – 88, as well as 10 themed coves and 3 gardens. North Park Residences – Accessibility North Park Residences couldn’t be more conveniently located in terms of transport, retail and indeed dining options, sitting as it does on top of the largest shopping mall in the north of the island. It will be connected to Yishun MRT Station on the North South Line via Northpoint Link, an underground walkway that itself will be home to 30 retail outlets. From there Orchard Road is 9 stops, with the CBD a further 3 away, meaning commuters can comfortably be door to door in under half an hour. North Park Residences is next to the SLE, which leads onto the CTE meaning drivers can be in the CBD in 20 minutes. Shopping near North Park Residences: Northpoint City Junction 9 Schools and Education near North Park Residences: Yishun Town Secondary School Yishun Secondary School North View Secondary School Jiemin Primary School Peixin Primary School Yishun Junior College GEMS World Academy
View project details




















