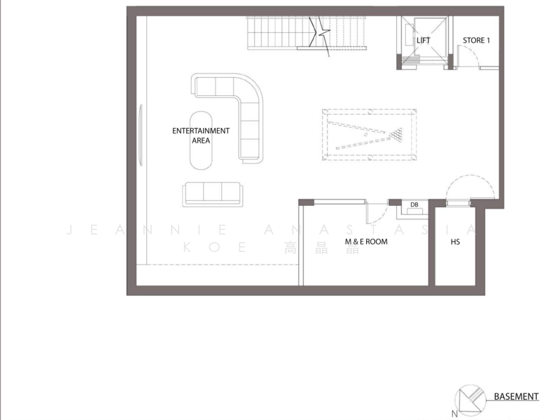
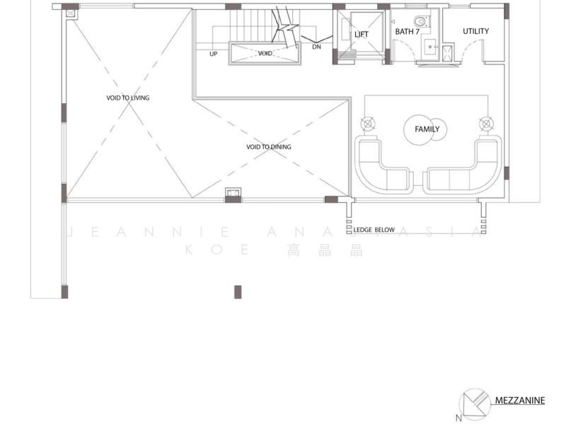
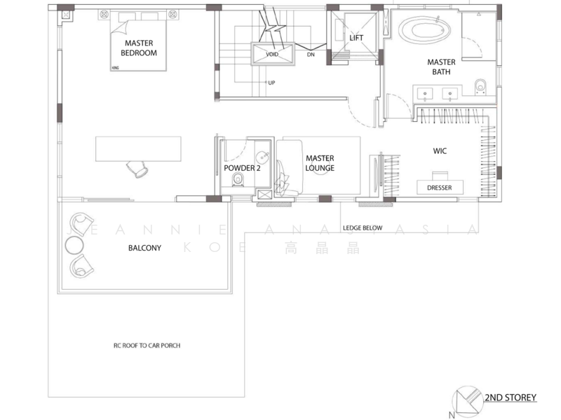
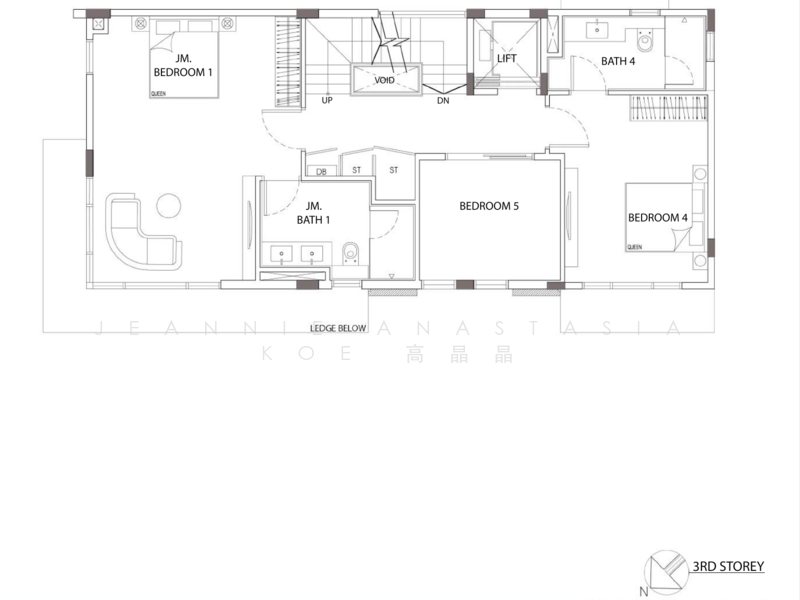
Modern 3.5 + Basement Storey Detached @ Charlton, Kovan, Serangoon
Charlton Lane
S$ 9,000,000
Starting From6
Beds
8
Baths
4,250
sqft (land)
S$ 2,118
psf (land)
400 m (5 mins) from NE13 Kovan MRT
About this property
Charlton Lane Detached Home Near Serangoon Central
Charlton Lane is a detached home situated within a quiet, low-density landed enclave off Upper Serangoon Road. The neighbourhood is characterised by landed housing, minimal through traffic, and a strong owner-occupier profile, offering a balance of privacy and everyday convenience.
The property is a short drive to Serangoon MRT Interchange (North-East Line and Circle Line), Kovan MRT and Serangoon Central, providing excellent connectivity across the island. Major roads such as Upper Serangoon Road and the Central Expressway allow for smooth access to the city, Paya Lebar, and the northeast region.
Families will appreciate proximity to reputable schools in the surrounding area, including St Gabriel’s Primary School, Yangzheng Primary School, Zhonghua Primary School, and Paya Lebar Methodist Girls’ School. These schools contribute to the area’s long-term family appeal.
Despite its proximity to major amenities and transport nodes, Charlton Lane retains a calm residential atmosphere, making it an attractive option for buyers seeking detached living in a mature estate with strong convenience and accessibility.
For more details or to schedule an exclusive viewing, connect with:
Jeannie Anastasia Koe.
高晶晶 9*1*0*1-6*2*8*9
All information in this advertising stated are subject to changes without prior notice. Prospects to double confirm before proceed to buy. Agent shall not be liable for not updating the latest information.
Come and take a peek at my other listing!
#singaporerealestate
#singaporeproperty
#comemrcialproperty
#Singaporefnb
#Shophouse
#fnb
#realestate
#realtor
#fnbproperty
#residentialproperty
#Singaporelanded
#eminencelanded
#thinklandedthinkeminence
#salt&light
#glorytogod
The property is a short drive to Serangoon MRT Interchange (North-East Line and Circle Line), Kovan MRT and Serangoon Central, providing excellent connectivity across the island. Major roads such as Upper Serangoon Road and the Central Expressway allow for smooth access to the city, Paya Lebar, and the northeast region.
Families will appreciate proximity to reputable schools in the surrounding area, including St Gabriel’s Primary School, Yangzheng Primary School, Zhonghua Primary School, and Paya Lebar Methodist Girls’ School. These schools contribute to the area’s long-term family appeal.
Despite its proximity to major amenities and transport nodes, Charlton Lane retains a calm residential atmosphere, making it an attractive option for buyers seeking detached living in a mature estate with strong convenience and accessibility.
For more details or to schedule an exclusive viewing, connect with:
Jeannie Anastasia Koe.
高晶晶 9*1*0*1-6*2*8*9
All information in this advertising stated are subject to changes without prior notice. Prospects to double confirm before proceed to buy. Agent shall not be liable for not updating the latest information.
Come and take a peek at my other listing!
#singaporerealestate
#singaporeproperty
#comemrcialproperty
#Singaporefnb
#Shophouse
#fnb
#realestate
#realtor
#fnbproperty
#residentialproperty
#Singaporelanded
#eminencelanded
#thinklandedthinkeminence
#salt&light
#glorytogod
Amenities
Air conditioner
Balcony
Gaming room
Home library
Affordability
Can I afford this property?
Tell us your monthly income and expenses to see if this home fits your budget.
Mortgage breakdown
Est. monthly repayment
S$ 0 / mo
S$ 0 Principal
S$ 0 Interest
Upfront costs
Total downpayment
S$ 0
Downpayment
S$ 0 Loan amount at 0% Loan-to-value
FAQs
The sale price of this unit at Modern 3.5 + Basement Storey Detached @ Charlton, Kovan, Serangoon is S$ 9,000,000.
Current PSF at Modern 3.5 + Basement Storey Detached @ Charlton, Kovan, Serangoon is about S$ 2,117.65 psf.
The estimated loan repayment is S$ 26,390 / mo.
Modern 3.5 + Basement Storey Detached @ Charlton, Kovan, Serangoon is located at Charlton Lane Hougang / Punggol / Sengkang Serangoon / Thomson (D19-20).
Floor size of this unit at Modern 3.5 + Basement Storey Detached @ Charlton, Kovan, Serangoon is 9,699 sqft.
Explore other options in and around Hougang / Punggol / Sengkang
Based on the property criteria, you might be interested on the following
Detached House For Sale
Nearest MRT Stations

















