LIV @ MB
114C Arthur Road
S$ 1,400,000
Negotiable1
Bed
1
Bath
495
sqft
S$ 2,828
psf
310 m (4 mins) from TE24 Katong Park MRT
About this property
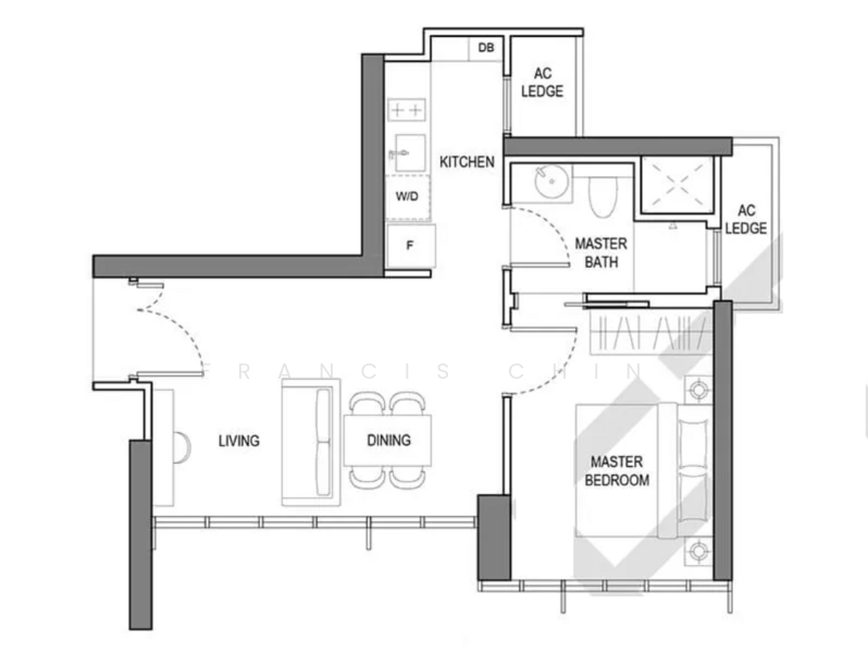
Brand New 1 Bedroom in D15. Just a short walk to Katong Park MRT.
-South Facing unit.
-Full height windows lining the living wall maximizing natural light.
- Kitchen is well-ventilated with a window and hidden from entrance.
- Bathroom is a Jack‑and‑Jill configuration accessible from both bedroom and kitchen.
Prime Location
The condo is situated near various malls, amenities, and recreation sites, including:
- Katong Shopping Centre
- Parkway Parade
- 112 Katong
- Marine Parade Food Centre
- Dunman Food Centre
- Eunos Market
- Trendy cafes, restaurants, and bars
SCHOOLS
Dunman High School - Walk 7 mins • 601m
Dunman High School - Walk 7 mins • 601m
Chung Cheng High School (Main) - Walk 8 mins • 670m
MRT STATIONS
Katong Park MRT Station - Walk 4 mins • 322m
Mountbatten MRT Station - Walk 11 mins • 943m
Dakota MRT Station - Walk 11 mins • 965m
Some photos are for illustrations purposes.
Amenities
Air conditioner
Fridge
Modern kitchen furnishing
Common facilities
Car park
Children's playground
Fun pool
Gymnasium room
Affordability
Tell us your monthly income and expenses to see if this home fits your budget.
LIV @ MB

LIV @ MB is a 99-year leasehold condominium located at Arthur Road in District 15, within the East Coast and Marine Parade area of Singapore. Completed in 2024, the development is brought to market by Bukit Sembawang Estates Limited. It comprises 298 residential units and offers a range of layouts, from one-bedroom to four-bedroom deluxe homes, including penthouses. The condominium layout emphasises open areas, greenery, and shared spaces that balance privacy and community interaction. One of LIV @ MB's key strengths lies in its location. District 15 connects easily to the city centre while still offering access to the East Coast. Residents benefit from proximity to the Central Business District (CBD) and Marina Bay area, making daily travel more convenient. Katong Park MRT Station (TE24) on the Thomson East Coast Line is within walking distance. This improves public transport connectivity to various parts of Singapore, including Orchard, Marina Bay, and the northern regions. Another highlight is the integration of Smart Home features within selected units. These systems allow residents to manage lighting, air conditioning, and other functions through mobile devices. Such features support ease of living and reflect current housing trends. LIV @ MB enjoys strong transport links. Katong Park MRT Station (TE24) is just a short walk away, providing direct access along the Thomson East Coast Line. This line connects to key interchange stations, improving island-wide travel. For motorists, the East Coast Parkway offers a direct route to the city centre and Changi Airport. The Marina Coastal Expressway (MCE) links Marina Bay and the financial district. The Kallang-Paya Lebar Expressway (KPE) connects to the north-eastern parts of Singapore. These roads make daily commuting straightforward. East Coast Park is located nearby. Residents can visit the park for cycling, jogging, seaside walks, and weekend outings. The coastline offers open views and recreational areas, enhancing the area's lifestyle appeal. Shopping and dining options are also accessible. LIV @ MB occupies a site of about 1.5 hectares at Arthur Road in District 15. The development rises to about 20 storeys and comprises several residential blocks arranged to optimise space and views. LIV @ MB Condominium 15 298 residential units LIV @ MB is designed to support different aspects of daily living. The facilities are spread across landscaped grounds and shared spaces to create a calm environment within the development. Facilities include: Car Park Children's Playground Fun Pool Gymnasium Room Jacuzzi Lap Pool Lounge Playground Roof Terrace Sky Lounge Swimming Pool The facilities aim to provide a balance between recreation, wellness, and community interaction. Families living at LIV @ MB have access to several learning centres and schools in the surrounding area. Little Skittles International Preschool Konohana Kindergarten EtonHouse Nature Pre School There are also primary and secondary schools within District 15 and nearby areas. The East Coast and the Katong area are known for their wide selection of food. Nearby dining options include: My Kitchen Kerala Restaurant Singapore Bikanervala Indian Vegetarian Restaurant and Mithai Shop DARBAR Eat Drink Indian In addition to these, the Katong and Joo Chiat neighbourhoods offer local hawker fare, cafes, bakeries, and international restaurants. Residents of LIV @ MB can visit nearby clinics such as: Assurance Medicare Clinic and Surgery Chan Family Clinic Inspire Medical Clinic Jalan Batu Hospitals and emergency centres are also reachable by car or public transport within a short time. Daily grocery shopping is made easier with supermarkets nearby. Options include: FairPrice Xpress Shop@Dbay Pte Ltd Makena's Mart Larger supermarkets and retail outlets are also available at nearby malls such as Parkway Parade. The architectural design presents clean lines and modern finishes. Units are positioned to allow natural light and ventilation. Landscaping is integrated throughout the grounds, creating green pockets between buildings. One Bedroom: 495 to 667 sq ft Two Bedroom: 624 to 850 sq ft Two Bedroom Deluxe: 753 to 1,044 sq ft Three Bedroom: 1,119 to 1,302 sq ft Three Bedroom Deluxe: 1,270 to 1,453 sq ft Four Bedroom: 1,518 sq ft Four Bedroom Deluxe: 1,668 sq ft Each unit layout focuses on the practical use of space. Living and dining areas are arranged to allow flexibility in furniture placement. LIV @ MB was developed by Bukit Sembawang Estates Limited. Bukit Sembawang has a long history in the Singapore property market. The company has delivered various condominium and landed housing projects across different districts. Its portfolio includes developments in both city fringe and suburban areas. Over the years, the developer has focused on residential communities that combine design, functionality, and location benefits. Through LIV @ MB, the group continues its presence in the East Coast area with a project that reflects modern urban living. Other residential developments associated with the developer include: 8@BT The Atelier 8 Saint Thomas These projects are located in different parts of Singapore and offer a mix of unit types and living concepts. The neighbourhood around LIV @ MB includes several other residential developments. Meyer Residence The View @ Meyer Arthur Mansions The presence of these developments reflects the area's residential character, with a mix of low-rise and high-rise housing. LIV @ MB presents a city-fringe home in District 15, offering MRT access, expressway links, and proximity to East Coast Park. With 298 units ranging from one-bedroom to four-bedroom deluxe layouts, the development caters to different household needs. Facilities within the estate support leisure, fitness, and social interaction, while nearby malls, dining outlets, clinics, and supermarkets add daily convenience. The project offers a balanced living environment for those who prefer access to both the city centre and coastal spaces. Its location, range of unit sizes, and modern features make it a suitable option for homeowners and investors seeking a property in the East Coast area. For more details, pricing, and availability, visit the LIV @ MB sale or rent page.
View project details























