Hundred Palms Residences
276 Yio Chu Kang Road
S$ 2,920,000
Negotiable4
Beds
3
Baths
1,378
sqft (floor)
S$ 2,119
psf (floor)
500 m (6 mins) from CR9 Serangoon North MRT
About this property
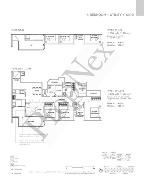
Penthouse 4 Bedder for sale
-High Ceiling
-Spacious Dining & Living
-4 Bedroom + helper room+ yard
-Well Renovated
-Ziptrack
Primary School
-297m to Rosyth Primary School
-580m to Hougang Primary School
-633m Yio Chu Kang Primary School
Secondary School
-345m Bowen Secondary School
-639m Xinmin Secondary School
-739m Hougang Secondary School
-Upcoming Serangoon North Cross Island Line
-338m to Hougang 1 Mall / NTUC / Food Court
-1.3km to Bangkok Square
-1.33km Hougang Green Mall
Amenities
Air conditioner
Balcony
Covered car parking
Helper's room
Common facilities
Car park
Affordability
Tell us your monthly income and expenses to see if this home fits your budget.
Hundred Palms Residences
Hundred Palms Residences is located at Yio Chu Kang Road in District 19. This property is yet to be completed and will be ready by 2020 as per the plans. Considering the luxury facilities, the nearby amenities and the strategic location of the property it is a profitable investment for the buyers. It is an executive condominium which is 12.6% cheaper per square foot compared to mass houses and 30% cheaper than private condos. For people who are searching for high-profit margins and long-term returns Hundred Palms Residences @ D19 is the property for them. The facilities provided in this property are made to please the inhabitants in every way possible so that they can enjoy all the comforts available on site. It has a multi-purpose hall. It is used for several community functions and special occasions. It is also used as a business meeting room or conference room. There is a large basement car park which can accommodate even if the residents have more than one personal vehicle. The security is provided for twenty-four hours and is very efficient. The security personnel are strict and so not allow unauthorized people to enter the property. For the fitness conscious there is a gymnasium within the building. It is well equipped and well maintained. The residents can access it at their convenience whether in the morning or the evening. There is a huge playground on the premises. It can not only be used by the kids but also to organize many sports events. There is a sauna to relax after a day's hectic schedule. The swimming pool and the wading pool can be used for many recreational activities. For people interested in sports there is a tennis court too. It can be used to play badminton too. There are also planning for an alfresco BBQ dining, meditation garden, and a nature walk. The property is a unique executive condominium in a mature neighborhood and that too at an affordable rate. There will be the availability of fifteen months free shuttle bus service for the residents initially so that they won't have any problem to get familiar with the locality. There are readily available public transportation nearby the property as it is already a very established residential area. Residents will find bus or taxi services readily as there are several stands just outside the property. For people who have to commute to distant places on a regular basis and don't have the means for private transportations don't have to worry as there are several stations nearby like-NE14 Hougang MRT StationNE13 Kovan MRT StationNE15 Buangkok MRT Station. There are many amenities located just around the corner of the property for the residents to enjoy. The nearest shopping malls are just less than a kilometer away that has many opportunities for retail, health, beauty, and entertainment like-Hougang Green Shopping CentreThe Greenwich VThe Heartland Mall.Various popular restaurants and dining places are present nearby like- The Chomp Chomp Food CentreThe Serangoon Food Market and Food CentreHougang Street 21 Block 209 Market and Food Centre. There are several supermarkets for day to day shopping needs like grocery and household items like- The Fairprice at the Hougang OneThe Sheng Siong at Serangoon NorthThe Giant at Buangkok CrescentThe Cold Storage at the Greenwich V. There are several other places nearby where residents can enjoy athletic and community events like- The Kovan CenterThe Hougang StadiumThe Serangoon Garden Country ClubThe Hougang Sports Club. There are several reputable educational institutions within the proximity of the property like- Boven Secondary schoolRosyth SchoolXinmin Secondary school. The property is an executive condominium which means it is a public-private housing hybrid. The tenure is a 99 years leasehold. The selling price starts at $715,000 for a three bedroom unit, $1.03 million for a four-bedroom unit and $1.288 million for a five-bedroom unit. There are none blocks and fifteen stories. The units are designed to be spacious, and the layout is efficient. Each unit has a smart home technology in which the electronics and the doors are controlled by an app. Buyers can even choose from a study or a utility room. This is an excellent investment for first-time buyers because they can make use of up to $30,000 of the Central Provident Fund (CPF) Housing Grant. Property Name: Hundred Palms ResidencesDistrict: 19Configuration: 531 units Unit Types: Three bedrooms: 883- 1130 sqft.Four bedrooms: 1270- 1324 sqft.Five Bedrooms: 1528 sqft. The property is developed by Hoi Hup Realty Pte. Ltd. They have the experience of building over nine hundred residential buildings. Some of the famous works by the developers include- The Waterford Residence. Other properties nearby to this development are-Florence Regency (Condominium)Pin Mansions (Apartment)The Florentine (Apartment)Poh Huat Gardens (Condominium)iSuites @ Tani (Apartment) Other properties nearby to this development are-Sea Esta (Condominium)Arc at Tampines (Executive Condominium)Charlton Villas (Terraced House)Miltonia Residences (Condominium)De Royale (Condominium)
View project details








