Bartley Vue
8 Jalan Bunga Rampai
S$ 1,580,000
Negotiable2
Beds
1
Bath
657
sqft
S$ 2,405
psf
630 m (8 mins) from CC12 Bartley MRT
About this property
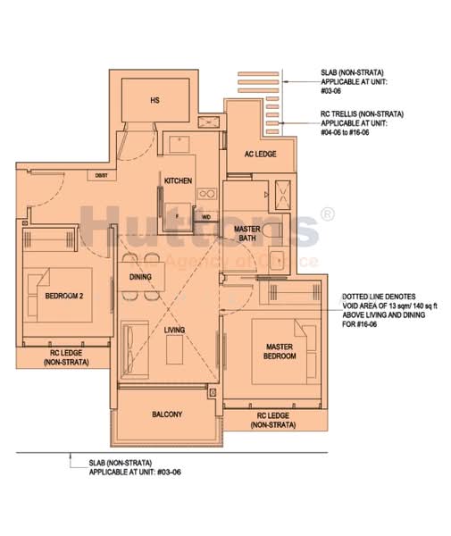
Just TOP! Brand new condo! Unblock landed view! Bright & windy!
Brand new condo.
Very functional and efficient layout.
Living hall and 2 bedrooms enjoy full unblock landed view.
Bright & windy.
Dumbell layout, no wastage of space.
Enclosed kitchen.
Comes with a household shelter that double up as a store room.
Jack and Jill bathroom (with 2 doors).
Location is excellent.
Across are lots of food options along the Upper Paya Lebar row of shophouses.
3mins to coffeeshop, Sheng Siong Supermarket at Blk 221 Mount Vernon Road, the new BTO Bartley Beacon cluster.
5mins walk to Bartley MRT, circle line.
8 mins walk to Tai Seng MRT, circle line, Grantral Mall with Scarlet Supermarket and plenty of good food options at BreadTalk IHQ, Sakae Building and 18 Tai Seng.
Within 1km of Maris Stella High School, which is a mixed primary school now.
Photos are artist impression taken from the marketing brochure.
Call Cynthia Chan 8***** to view now before the unit is taken.
Amenities
Air conditioner
Balcony
Barbeque pits
City view
Common facilities
24 hours security
Barbeque pits
Bbq pavillion
Car park
Affordability
Tell us your monthly income and expenses to see if this home fits your budget.
Bartley Vue
Bartley Vue is a 99-year leasehold condominium located at 6 Jalan Bunga Rampai in District 19 (D19).Offering both partially unblocked spectacular views of Bartley’s low-rise landed enclave to efficient connectivity to other parts of Singapore, Bartley Vue‘s strategic city fringe location near Bartley MRT station gives residents convenient access to a plethora of amenities.Located in a family-friendly neighbourhood, Bartley Vue is surrounded by choiced schools such as Maris Stella High School and Paya Lebar Methodist Girls’ School.For discerning buyers who are big on residing near their workplaces, Bartley Vue is also within proximity to both the Tai Seng Industrial Estate and the Paya Lebar Industrial Park.Bartley MRT station (CC12) on the Circle Line (CCL) is a short seven-minute walk.Travelling via the CCL, residents can access major train lines at various interchanges which are all less than five stops away.Commuters can hop over to the North East Line at Serangoon MRT (NE12/CC13), North-South Line at Bishan MRT (NS17/CC15), Downtown Line at Macpherson MRT (CC10/DT26), and the East-West Line at Paya Lebar MRT (EW8/CC9).For drivers, Bartley Vue is also highly connected to major roads and expressways such as the Bartley Road East Viaduct, Pan Island Expressway (PIE), Central Expressway (CTE), and Kallang-Paya Lebar Expressway (KPE). These expressways significantly cut travelling time to the Central Business District (CBD), as well as major regional centres such as Tampines, Changi, the upcoming Punggol Digital District. And the up-and-coming Paya Lebar Regional Commercial Hub.For those who enjoy outdoor activities and nature, the development is a 13-minute walk to the new Bidadari Park. The Bunga Rampai Park is also right at the development’s doorstep.Playground OasisChildren’s PoolGymFitness CornerPlayground HavenFunction RoomRejuvenating PavilionEntertainment Court30m Lap PoolBBQ PavilionBartley Secondary SchoolCanossa Catholic Primary SchoolCedar Primary SchoolCedar Girls’ Secondary SchoolGeylang Methodist Girls’ SchoolMaris Stella High School (within 1-km radius)Macpherson Secondary SchoolNanyang Junior CollegePaya Lebar Methodist Girls’ SchoolSaint Andrew’s Junior SchoolAndrew’s Secondary SchoolAndrew’s Junior CollegeGabriel’s Primary SchoolGabriel’s Secondary SchoolMargaret’s Primary SchoolYangzheng Primary SchoolFor families with young children, Bethel Preschool, Bethany Kindergarten, Emile Preschool, and Sarada Kindergarten are near the vicinity.Expatriate families can also find international schools, such as the Stamford American International School and the DPS International School nearby.Nearby healthcare facilities include:National University Hospital (NUH)Mount Elizabeth Novena HospitalResidents can conveniently head to the Tai Seng business hub just down the road from Bartley Vue for meal fixes and grocery runs. The Tai Seng business hub houses a well-stocked NTUC FairPrice at Maple Tree 18, as well as the BreadTalk IHQ, where residents can dine at the foodcourt or at BreadTalk’s chain of restaurants.Those open to travelling further out of the neighbourhood can take a short train ride to explore other well-equipped malls including:NEXJunction 8Paya Lebar SquarePaya Lebar QuartersCity PlazaKinexKallang Leisure ParkWoodleigh MallAlternatively, residents can take a 10-minute drive to bigger malls such as Clementi Mall, One Holland Village, and Star Vista.Wee Hur Development Pte Ltd is the local property development arm of Wee Hur Holdings Limited. As a company listed on the SGX mainboard, the Group has developed a portfolio comprising both residential and industrial developments. Having established a reputation for delivering quality projects, the Group’s expertise lies in residential, institutional, industrial, office, hotel, retail, heritage, and conservation projects.Notable projects under their belt include Parc Botannia and Urban Residences.Sitting on a land site area of approximately 50,231 sq ft, Bartley Vue houses 115 exclusive residential units across 16 floors.Units come in a mix of 2 - to 4-bedroom configurations to cater to a wide range of buyer profiles and lifestyle needs.Residential units will either face the Bartley viaduct, or the opposite landed housing enclave. To mitigate concerns about traffic noise, the developer has equipped residential units with noise-insulating double-glazed glass panes.Units are practically designed with a dumbbell layout to maximise efficient use of space.Ceilings are generously perched at 2.9m, while penthouses enjoy 4.5m high ceilings in the living/dining area.Planned development for the North-East Region aimed at enhancing connectivity, creating new recreational spaces, and improving amenities will positively impact Bartley Vue. Keys improvements include:Improved connectivity with new rail lines and cycling network: Serangoon will be served by five MRT lines with the completion of the Thomson-East Coast Line and Cross Island Line by 2035. New Integrated Transport Hubs will also provide seamless inter-modal transfers and enhance accessibility in the area. Expansion of cycling networks in the North-East will also take place in stages over the next decade.New recreational spaces: New park connectors will give residents easier access to greenspaces and waterways. Waterways at Serangoon Reservoir, Punggol Reservoir and My Waterway@Punggol will also be transformed into active spaces for water activities.For buyers and investors alike, Bartley Vue’s city fringe location provides a more affordable option for those looking to reside near the city centre.Bartley Vue is also closely located near various industrial and commercial nodes in Paya Lebar, Tai Seng, Macpherson, Aljunied, Ubi, and Eunos. This can potentially translate to rental demand from those working in these areas.Furthermore, the planned relocation of the Paya Lebar Airbase in 2030 will free up 800 hectares worth of space (five times the size of Toa Payoh) for redevelopment. This will see the revitalisation of the East with the creation of 150,000 homes alongside businesses, parks, and community spaces.As Bartley Vue is located within proximity of the Paya Lebar Airbase, residents will enjoy convenient access to many employment opportunities near home. This proximity when coupled with upcoming infrastructure enhancements will boost the investment potential of the development.Check out Bartley Vue listings for unit for sale and for rental in PropertyGuru.
View project details






