🌿 3 Bedder Plus Study Under $1.8m Near MRT | Few Stops To Beauty World | Downtown Line MRT
S$ 1,790,000
Negotiable4
Beds
2
Baths
1,000
sqft (floor)
S$ 1,790
psf (floor)
140 m (2 mins) from DT5 Beauty World MRT
About this property
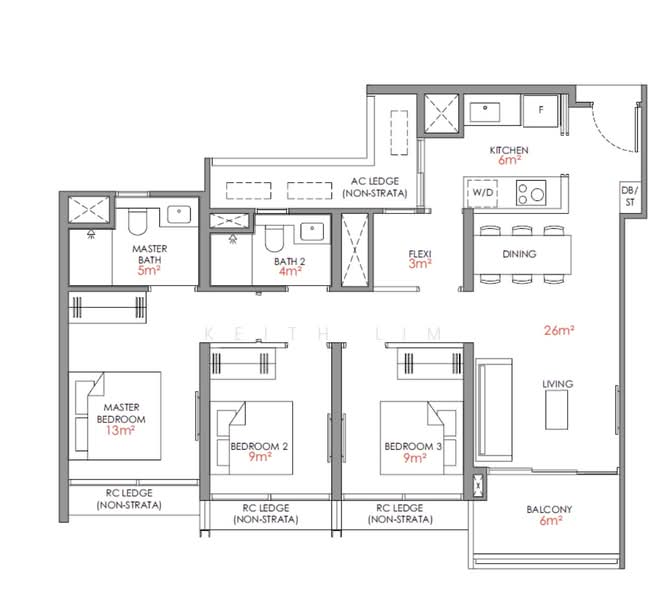
Well designed 3 Bedroom plus Study near to Beauty World Transformation
A well-designed 3-bedroom plus study home positioned attractively within the Beauty World corridor, offering an accessible entry quantum under $1.8M.
Located along the Downtown Line, just a few stops from Beauty World, this unit provides convenient connectivity while being priced competitively against nearby resale options in the same range.
Key considerations buyers often value:
3-Bed + Study layout for work-from-home flexibility or additional storage
Entry pricing under $1.8M, positioned competitively versus surrounding resale units
Direct access to the Downtown Line, linking seamlessly to Beauty World and city nodes
Practical layout suitable for families or longer-term own stay
Often explored alongside resale 3-bedroom units nearby, this configuration serves as a useful reference for buyers comparing space efficiency, connectivity, and overall entry positioning within the same budget range.
Contact Keith Lim at 8***** for more details or to schedule a viewing.
Your new home awaits!
WE ARE | THE REAL COLLECTIVE |
Real People • Real Estate • Real Results
Over 100 million worth of Real Estate SOLD in the last 9 months!
Find out how we can add | REAL | value to your | REAL | Estate
Located along the Downtown Line, just a few stops from Beauty World, this unit provides convenient connectivity while being priced competitively against nearby resale options in the same range.
Key considerations buyers often value:
3-Bed + Study layout for work-from-home flexibility or additional storage
Entry pricing under $1.8M, positioned competitively versus surrounding resale units
Direct access to the Downtown Line, linking seamlessly to Beauty World and city nodes
Practical layout suitable for families or longer-term own stay
Often explored alongside resale 3-bedroom units nearby, this configuration serves as a useful reference for buyers comparing space efficiency, connectivity, and overall entry positioning within the same budget range.
Contact Keith Lim at 8***** for more details or to schedule a viewing.
Your new home awaits!
WE ARE | THE REAL COLLECTIVE |
Real People • Real Estate • Real Results
Over 100 million worth of Real Estate SOLD in the last 9 months!
Find out how we can add | REAL | value to your | REAL | Estate
Affordability
Can I afford this property?
Tell us your monthly income and expenses to see if this home fits your budget.
Mortgage breakdown
Est. monthly repayment
S$ 0 / mo
S$ 0 Principal
S$ 0 Interest
Upfront costs
Total downpayment
S$ 0
Downpayment
S$ 0 Loan amount at 0% Loan-to-value
FAQs
The sale price of this unit at 🌿 3 Bedder Plus Study Under $1.8m Near MRT | Few Stops To Beauty World | Downtown Line MRT is S$ 1,790,000.
Current PSF at 🌿 3 Bedder Plus Study Under $1.8m Near MRT | Few Stops To Beauty World | Downtown Line MRT is about S$ 1,790.00 psf.
The estimated loan repayment is S$ 5,248 / mo.
🌿 3 Bedder Plus Study Under $1.8m Near MRT | Few Stops To Beauty World | Downtown Line MRT is located at Clementi Park / Upper Bukit Timah Newton / Bt. Timah (D11, 21).
Floor size of this unit at 🌿 3 Bedder Plus Study Under $1.8m Near MRT | Few Stops To Beauty World | Downtown Line MRT is 1,000 sqft.
Explore other options in and around Clementi Park / Upper Bukit Timah
Based on the property criteria, you might be interested on the following
Condominium For Sale
Nearest MRT Stations







