3 HDB Flats for Sale - 3 Bedrooms at 686D Choa Chu Kang Crescent
Map View
We’ve shown you all the matches
Almost there!
Refining your recommendations.
This may take a few seconds...
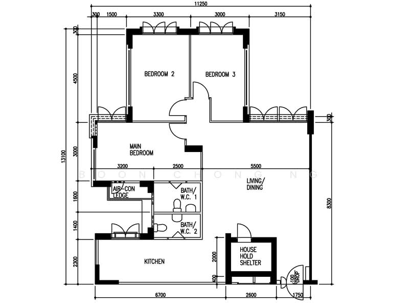
686D Choa Chu Kang Crescent
686D Choa Chu Kang Crescent 684686(D23) Dairy Farm / Bukit Panjang / Choa Chu Kang
Summary
686D Choa Chu Kang Crescent
Read more
Project details
TypeHDB
PriceS$ 600K - 620K
Completion year2000
Tenure99-year Leasehold
No. of blocks1
No. of floors16
DeveloperHousing & Development Board (HDB)
Explore PropertyGuru
Properties by ownership



















