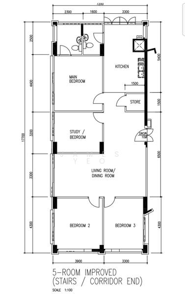
1 HDB Flat for Sale - 3 Bedrooms at 542 Hougang Avenue 8
Map View
We’ve shown you all the matches
Almost there!
Refining your recommendations.
This may take a few seconds...
542 Hougang Avenue 8
542 Hougang Avenue 8 530542(D19) Hougang / Punggol / Sengkang
Summary
542 Hougang Avenue 8
Read more
Project details
TypeHDB
PriceS$ 688K - 760K
Completion year1991
Tenure99-year Leasehold
No. of blocks1
No. of floors10
DeveloperHousing & Development Board (HDB)
Explore PropertyGuru
Properties by ownership



















