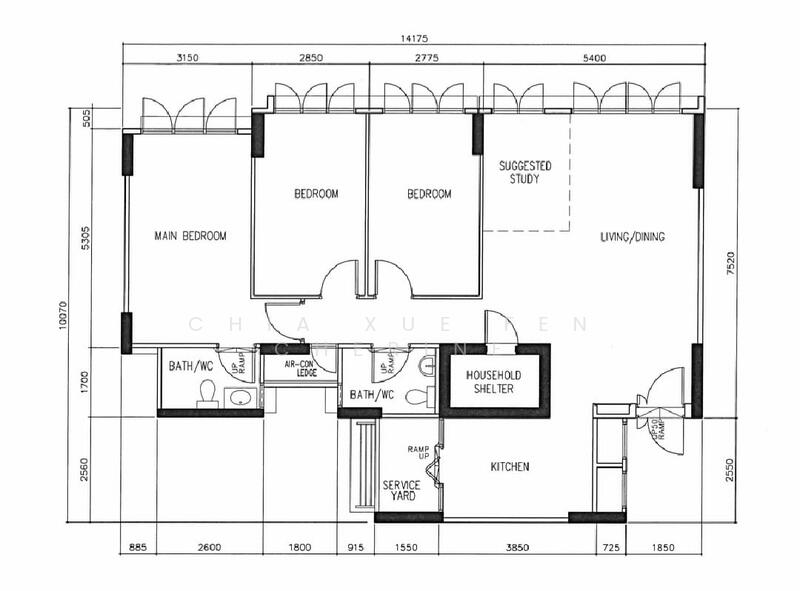
1 HDB Flat for Sale - 3 Bedrooms at 332A Anchorvale Link
Map View
We’ve shown you all the matches
Almost there!
Refining your recommendations.
This may take a few seconds...
332A Anchorvale Link
332A Anchorvale Link 541332(D19) Hougang / Punggol / Sengkang
Project details
TypeHDB
Completion year2014
Tenure99-year Leasehold
No. of blocks1
No. of floors16
Top facilities
Car park
DeveloperHousing & Development Board (HDB)
Explore PropertyGuru
Properties by ownership










