iSuites @ Marshall: 2 Units for Sale
Refining your recommendations.
This may take a few seconds...
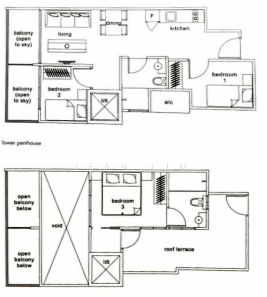
iSuites @ Marshall is a freehold apartment development that located at 99 Marshall Road in District 15 (Katong, Siglap, Tanjong Rhu) of Singapore. This development is consisting total of 32 units and completed in 2013. This is a new medium-rise project located in the Marine Parade area. It's fairly small and is priced around average for Singapore. In industry-speak this area belongs to District 15, which incorporates much of the East Coast of Singapore, north of the CBD. Residents usually describe its location using the local Planning Area name (Marine Parade) or the Subzone name - Katong. iSuites @ Marshall is developed and built by I Development Pte Ltd. that has consistently developed and delivered numerous residential landed properties and apartment and have been specializing in providing comfortable and high-quality accommodation. iSuites @ Marshall is a freehold residential property that offers 32 residential unit with one bedroom, two bedroom and three bedroom penthouse layouts all housed in a single five storey. There is standard condo facilites are available for exclusive use. For a wide range of retail, dining, banking and entertainment amenities, residents may visit nearby shopping malls such as 112 Katong and Parkway Parade Shopping Center. Several school such as Tanjong Katong Primary School, Tanjong Katong Secondary School and Chatsworth International School are easily accessible for families with school-going children. Facilities at iSuites @ Marshall include swimming pool, gymnasium and BBQ pits. iSuites @ Marshall is situated within the Katong district, an abundance of eateries are found within the vicinity. The nearest train station from iSuites @ Marshall is Dakota MRT Station. East Coast Parkway (ECP) located nearby, easily connects drivers to the Central Business District or Orchard Shopping District within 8 - 10 minutes. Vehicle owners can take Tanjong Katong Road, Still Road South, East Coast Parkway (ECP) and Pan Island Expressway (PIE) to get to the business hub or shopping district in the city. Quentins Eurasian RestaurantRakuyaBraseiro RestaurantMegumi Japanese RestaurantZaffron Kitchen East CoastKatong Kitchen Tanjong Katong Primary SchoolTanjong Katong Secondary SchoolTanjong Katong Girls SchoolChatsworth International SchoolCanadian International SchoolEtonhouse International School Dental ClinicChan Family ClinicWestfield Dental SurgeryGlory Dental SurgeryWan DentistLee Clinic iSuites @ Marshall is a freehold development that are 32 units available at this project.Project Name: iSuites @ MarshallType: ApartmentTenure: FreeholdLand Size: 11,427 sqftConfiguration: 32 residential unitsDistrict: 15 Unit types for iSuites @ Marshall:344-441 sqft (1 bedroom 1 bathroom)592 - 614 sqft (2 bedroom 1 bathroom)1098 - 1109 sqft (3 bedroom penthouse) The following projects are by the same developer as iSuites @ Marshall :LeVille iSuitesJansen 8iSuites @ PalmSandilands The following developments are in the same neighbourhood as iSuites @ Marshall :Amber ParkMeyer MansionSeaside ResidencesSilverseaAmber 45Frankel Estate








