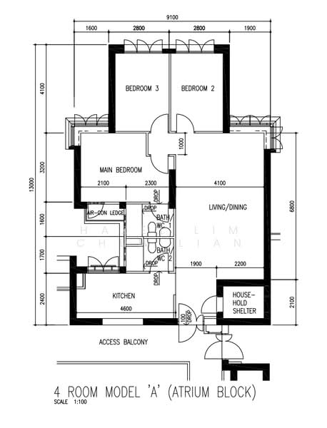
42 Houses for Sale - Tanglin Halt Road