Brand New 2.5 Storey Inter-Terrace with Lift & Mezzanine in D20
Jalan Menarong / Jalan Lanjut / Jalan Rukam
S$ 6,680,000
Negotiable7
Beds
7
Baths
1,999
sqft (land)
S$ 3,342
psf (land)
760 m (9 mins) from TE6 Mayflower MRT
About this property
Nearby to Sembawang Hills Food Centre. 1km to 2 primary schools.
Brand New 2.5 Storey Inter-Terrace in Sembawang Hills Estate – Just bring your luggage will do!
Freehold | 2.5-Storey Inter-Terrace | Regular Land Size | Quiet Landed Enclaved Zoning | District 20
⸻
Property Highlights
• Land Size: Approx. 1,999 sqft
• Built-Up Area: Approx. 5,813 sqft
• Bedrooms: 7
• Bathrooms: 7
• Frontage: ~6.1m | Depth: ~30m
• Main Door Facing: South
• Parking: Park 2 car inside; ample space for more outside
• Tenure: Freehold
• Zoning: 2 Storey Mixed Landed
⸻
Layout Overview
1st Storey:
• Family lounge
• Household shelter
• Lobby lounge with garden
• Bedroom 5 ensuite
• Bedroom 6
• Common bathroom
• Laundry yard area
• Rear garden
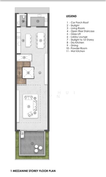
Mezzanine Storey:
• Living Room
• Lobby lounge
• Dry & wet kitchen
• Dining area
• Powder room
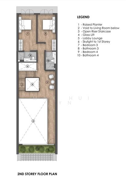
2nd Storey:
• Lobby lounge
• Bedroom 3 ensuite
• Bedroom 4 ensuite
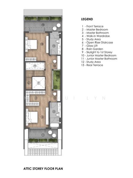
Attic Storey:
• Master bedroom ensuite with balcony
• Junior master bedroom ensuite with balcony
• Study area
• Rain garden
⸻
Nearby Amenities
Primary Schools within 1km:
• Ang Mo Kio Primary School
• CHIJ St Nicholas Girls' School
MRT Stations Nearby:
• Mayflower MRT (TE36, Thomsom East Coast Line)
⸻
Contact Mak Hui Lyn at 9834.3123 for an exclusive viewing today!
Disclaimer: The information provided in this advertisement is for general informational purposes only and does not constitute an offer, contract, or guarantee of any kind. All property details, including but not limited to prices, availability, specifications, and features, are subject to change without prior notice. Images, floor plans, and descriptions are for illustrative purposes only and may differ from the actual property. Buyers and tenants are encouraged to conduct their own due diligence and verify all information with the developer, seller, or relevant authorities before making any decisions. The advertiser assumes no liability for any inaccuracies, errors, or omissions in this listing.
Freehold | 2.5-Storey Inter-Terrace | Regular Land Size | Quiet Landed Enclaved Zoning | District 20
⸻
Property Highlights
• Land Size: Approx. 1,999 sqft
• Built-Up Area: Approx. 5,813 sqft
• Bedrooms: 7
• Bathrooms: 7
• Frontage: ~6.1m | Depth: ~30m
• Main Door Facing: South
• Parking: Park 2 car inside; ample space for more outside
• Tenure: Freehold
• Zoning: 2 Storey Mixed Landed
⸻
Layout Overview
1st Storey:
• Family lounge
• Household shelter
• Lobby lounge with garden
• Bedroom 5 ensuite
• Bedroom 6
• Common bathroom
• Laundry yard area
• Rear garden
Mezzanine Storey:
• Living Room
• Lobby lounge
• Dry & wet kitchen
• Dining area
• Powder room
2nd Storey:
• Lobby lounge
• Bedroom 3 ensuite
• Bedroom 4 ensuite
Attic Storey:
• Master bedroom ensuite with balcony
• Junior master bedroom ensuite with balcony
• Study area
• Rain garden
⸻
Nearby Amenities
Primary Schools within 1km:
• Ang Mo Kio Primary School
• CHIJ St Nicholas Girls' School
MRT Stations Nearby:
• Mayflower MRT (TE36, Thomsom East Coast Line)
⸻
Contact Mak Hui Lyn at 9834.3123 for an exclusive viewing today!
Disclaimer: The information provided in this advertisement is for general informational purposes only and does not constitute an offer, contract, or guarantee of any kind. All property details, including but not limited to prices, availability, specifications, and features, are subject to change without prior notice. Images, floor plans, and descriptions are for illustrative purposes only and may differ from the actual property. Buyers and tenants are encouraged to conduct their own due diligence and verify all information with the developer, seller, or relevant authorities before making any decisions. The advertiser assumes no liability for any inaccuracies, errors, or omissions in this listing.
Affordability
Can I afford this property?
Tell us your monthly income and expenses to see if this home fits your budget.
Mortgage breakdown
Est. monthly repayment
S$ 0 / mo
S$ 0 Principal
S$ 0 Interest
Upfront costs
Total downpayment
S$ 0
Downpayment
S$ 0 Loan amount at 0% Loan-to-value
FAQs
The sale price of this unit at Brand New 2.5 Storey Inter-Terrace with Lift & Mezzanine in D20 is S$ 6,680,000.
Current PSF at Brand New 2.5 Storey Inter-Terrace with Lift & Mezzanine in D20 is about S$ 3,341.67 psf.
The estimated loan repayment is S$ 19,587 / mo.
Brand New 2.5 Storey Inter-Terrace with Lift & Mezzanine in D20 is located at Jalan Menarong / Jalan Lanjut / Jalan Rukam Ang Mo Kio / Bishan / Thomson .
Floor size of this unit at Brand New 2.5 Storey Inter-Terrace with Lift & Mezzanine in D20 is 5,813 sqft.
Explore other options in and around Ang Mo Kio / Bishan / Thomson
Based on the property criteria, you might be interested on the following
Terraced House For Sale
Nearest MRT Stations






















