440B Bukit Batok West Avenue 8
440B Bukit Batok West Avenue 8
S$ 725,000
Negotiable3
Beds
2
Baths
990
sqft
S$ 732
psf
630 m (8 mins) from JE2 Tengah Park MRT
About this property
High floor, corner unit with exclusive privacy, near mrt
440B Bukit Batok West Avenue 8 | 4 Room Flat For Sale
Discover this well maintained, with minimal built in carpentry work & highly efficient 4-room home @ Bukit Batok, perfect for families seeking space, convenience & future growth potential.
Call Kaylee now at 8***** for a viewing
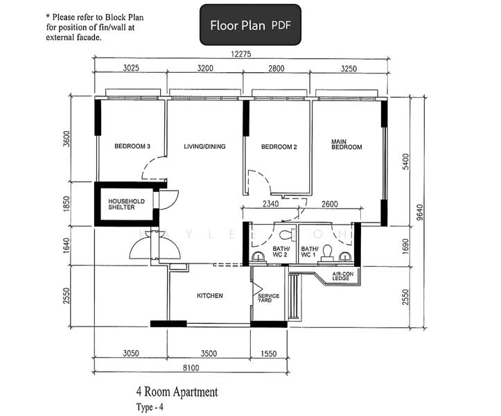
Unit Description
- High floor corner unit offering strong privacy & quiet living
- Bright & breezy with excellent natural light & cross ventilation
- Efficient squarish layout with no wasted space
- Spacious living & dining area, ideal for family gatherings
- 3 well-sized, regular-shaped bedrooms
- Enclosed kitchen with service yard
- Household shelter for additional storage
- Perfect for own stay, offering comfort, practicality & a well-balanced family-friendly layout
Completed in 2017, only about 7 years old
A rare young flat, great for buyers who want newer condition without long waiting time
Excellent Connectivity
- Less than 500m to Tengah Park MRT station (est. Q2 2028)
- Only 4 stops to Jurong East MRT station
(EWL, NSL & upcoming Cross Island Line)
- Just 3 stops to Choa Chu Kang MRT station
(NSL & LRT to Bukit Panjang / Downtown Line)
- Well-served by multiple bus routes across Singapore
Convenience at Your Doorstep
- Sheng Siong supermarket, coffeeshop, eateries & bakery within steps
- Daily essentials all within immediate reach
- Plantation Plaza and Parc Point at Tengah are just across, offering a wide range of lifestyle, dining & retail option
Everything you need, right at your doorstep.
- Minutes from Jurong East with Singapore’s 2nd CBD, bringing:
Major business hubs
- Shopping malls like JEM, WestGate, IMM & lifestyle amenities
Strong upside for future value appreciation
Schools
- Within 1KM:
- Pioneer Primary School
- Princess Elizabeth Primary School
- Jurong Primary School
Within 1–2KM:
- Dazhong Primary School
- Yuhua Primary School
-St. Anthony's Primary School
- Lianhua Primary School
- Bukit View Primary School
Call Kaylee now at 8***** to view
Discover this well maintained, with minimal built in carpentry work & highly efficient 4-room home @ Bukit Batok, perfect for families seeking space, convenience & future growth potential.
Call Kaylee now at 8***** for a viewing
Unit Description
- High floor corner unit offering strong privacy & quiet living
- Bright & breezy with excellent natural light & cross ventilation
- Efficient squarish layout with no wasted space
- Spacious living & dining area, ideal for family gatherings
- 3 well-sized, regular-shaped bedrooms
- Enclosed kitchen with service yard
- Household shelter for additional storage
- Perfect for own stay, offering comfort, practicality & a well-balanced family-friendly layout
Completed in 2017, only about 7 years old
A rare young flat, great for buyers who want newer condition without long waiting time
Excellent Connectivity
- Less than 500m to Tengah Park MRT station (est. Q2 2028)
- Only 4 stops to Jurong East MRT station
(EWL, NSL & upcoming Cross Island Line)
- Just 3 stops to Choa Chu Kang MRT station
(NSL & LRT to Bukit Panjang / Downtown Line)
- Well-served by multiple bus routes across Singapore
Convenience at Your Doorstep
- Sheng Siong supermarket, coffeeshop, eateries & bakery within steps
- Daily essentials all within immediate reach
- Plantation Plaza and Parc Point at Tengah are just across, offering a wide range of lifestyle, dining & retail option
Everything you need, right at your doorstep.
- Minutes from Jurong East with Singapore’s 2nd CBD, bringing:
Major business hubs
- Shopping malls like JEM, WestGate, IMM & lifestyle amenities
Strong upside for future value appreciation
Schools
- Within 1KM:
- Pioneer Primary School
- Princess Elizabeth Primary School
- Jurong Primary School
Within 1–2KM:
- Dazhong Primary School
- Yuhua Primary School
-St. Anthony's Primary School
- Lianhua Primary School
- Bukit View Primary School
Call Kaylee now at 8***** to view
Amenities
Air conditioner
Bed
Cabinets
Covered car parking
Common facilities
Children's playground
Community plaza
Covered linkways
Drop off point
Affordability
Can I afford this property?
Tell us your monthly income and expenses to see if this home fits your budget.
Mortgage breakdown
Est. monthly repayment
S$ 0 / mo
S$ 0 Principal
S$ 0 Interest
Upfront costs
Total downpayment
S$ 0
Downpayment
S$ 0 Loan amount at 0% Loan-to-value
440B Bukit Batok West Avenue 8
FAQs
The sale price of this unit at 440B Bukit Batok West Avenue 8 is S$ 725,000.
Current PSF at 440B Bukit Batok West Avenue 8 is about S$ 732.32 psf.
The estimated loan repayment is S$ 2,162 / mo.
440B Bukit Batok West Avenue 8 is located at 440B Bukit Batok West Avenue 8 Dairy Farm / Bukit Panjang / Choa Chu Kang West (D22-24).
Floor size of this unit at 440B Bukit Batok West Avenue 8 is 990 sqft.
Explore other options in and around Dairy Farm / Bukit Panjang / Choa Chu Kang
Based on the property criteria, you might be interested on the following
HDB Flat For Sale
At 440B Bukit Batok West Avenue 8In Bukit Batok West Avenue 8In Bukit BatokUnder 800K S$3 bedroom(s)
Show MoreNearest MRT Stations






