204 Marsiling Drive
204 Marsiling Drive
S$ 450,000
Negotiable2
Beds
2
Baths
883
sqft
S$ 510
psf
About this property
Exclusive 883sqft, High-Floor Corner Gem, Rare Stack Premium Space.
• High Viewership Rate High Floor Corner Unit!
• EIP quota applies
• Extension of stay & Contra required
Perched on a high floor, the home boasts a fully unblocked view inviting in excellent natural light.
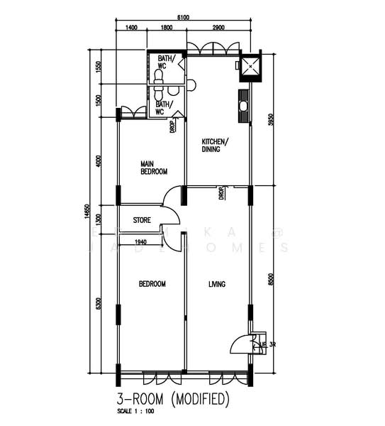
Step into a long, open living area that creates a strong sense of space and depth.The living room is fitted with vinyl wood flooring, adding a cosy ambience, while the bedrooms come with durable homogeneous tiles for easy maintenance. With minimal built-ins, the unit serves you full flexibility to design according to your lifestyle and preferences.
A standout feature is the elongated, classic kitchen layout, offering ample room to create distinct wet and dry kitchen zones. The master bedroom features a comfortable squarish layout with an attached bathroom, while the common bedroom is notably spacious, a rarity in newer homes.
With the main door facing West and the living area facing North, helping to minimise direct afternoon sun while keeping the home bright and airy.
This home offers excellent everyday convenience. A 7-Eleven and National Kidney Foundation clinic are just below the block, while Marsiling Hawker Centre is within a short walking distance, perfect for easy meals and daily essentials. Sheng Shiong Supermarkets and other wet markets are also nearby.
Causeway Point and Marsiling Mall are just a short drive or bus ride away, offering a wide range of retail, dining, and entertainment options.
With Admiralty Park & Woodlands Waterfront Park surrounded, residents can enjoy a balanced lifestyle of greenery and recreation.
Proximities to primary and secondary schools, as well as Republic Polytechnic, making this home a practical choice for households with schooling children.
With ongoing transformation in the Woodlands region and major infrastructure upgrades underway, it is a great opportunity to secure a spacious home with future upside!
Buy into this home before transformation completes — when infrastructure is ready, prices already moved!
• EIP quota applies
• Extension of stay & Contra required
Perched on a high floor, the home boasts a fully unblocked view inviting in excellent natural light.
Step into a long, open living area that creates a strong sense of space and depth.The living room is fitted with vinyl wood flooring, adding a cosy ambience, while the bedrooms come with durable homogeneous tiles for easy maintenance. With minimal built-ins, the unit serves you full flexibility to design according to your lifestyle and preferences.
A standout feature is the elongated, classic kitchen layout, offering ample room to create distinct wet and dry kitchen zones. The master bedroom features a comfortable squarish layout with an attached bathroom, while the common bedroom is notably spacious, a rarity in newer homes.
With the main door facing West and the living area facing North, helping to minimise direct afternoon sun while keeping the home bright and airy.
This home offers excellent everyday convenience. A 7-Eleven and National Kidney Foundation clinic are just below the block, while Marsiling Hawker Centre is within a short walking distance, perfect for easy meals and daily essentials. Sheng Shiong Supermarkets and other wet markets are also nearby.
Causeway Point and Marsiling Mall are just a short drive or bus ride away, offering a wide range of retail, dining, and entertainment options.
With Admiralty Park & Woodlands Waterfront Park surrounded, residents can enjoy a balanced lifestyle of greenery and recreation.
Proximities to primary and secondary schools, as well as Republic Polytechnic, making this home a practical choice for households with schooling children.
With ongoing transformation in the Woodlands region and major infrastructure upgrades underway, it is a great opportunity to secure a spacious home with future upside!
Buy into this home before transformation completes — when infrastructure is ready, prices already moved!
Amenities
Air conditioner
Corner unit
Original condition
Storage
Affordability
Can I afford this property?
Tell us your monthly income and expenses to see if this home fits your budget.
Mortgage breakdown
Est. monthly repayment
S$ 0 / mo
S$ 0 Principal
S$ 0 Interest
Upfront costs
Total downpayment
S$ 0
Downpayment
S$ 0 Loan amount at 0% Loan-to-value
204 Marsiling Drive
204 Marsiling Drive
View project detailsFAQs
The sale price of this unit at 204 Marsiling Drive is S$ 450,000.
Current PSF at 204 Marsiling Drive is about S$ 509.63 psf.
The estimated loan repayment is S$ 1,395 / mo.
204 Marsiling Drive is located at 204 Marsiling Drive Admiralty / Woodlands North (D25-28).
Floor size of this unit at 204 Marsiling Drive is 883 sqft.
Explore other options in and around Admiralty / Woodlands
Based on the property criteria, you might be interested on the following
HDB Flat For Sale
Show MoreNearest MRT Stations



















