Waterview
73 Tampines Avenue 1
S$ 1,370,000
Starting From2
Beds
2
Baths
926
sqft (floor)
S$ 1,479
psf (floor)
About this property
High Floor, Within 1 Kilometer to St Hilda Primary, No West Sun
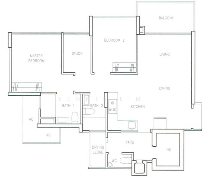
2 + Study (926 sqft)
High Floor Above #13
Within 1km to St Hilda Primary
Windy, No West Sun
Regular Layout
No Odd Shape
Kitchen + Yard +HS
Main door faces South East
Balcony faces North East
Extension Nego
===============
We help owners sell HDB for $1999, Condo $4999 & Landed $9999
===============
Amenities
High floor
Common facilities
Barbeque pits
Fitness corner
Gymnasium room
Lap pool
Affordability
Tell us your monthly income and expenses to see if this home fits your budget.
Waterview

Waterview is a 99-year leasehold condominium project located along Tampines Avenue 1, 528690, in District 18. The project comprises 696 residential units spread across twelve 14-storey blocks. Waterview was developed by Sim Lian Group Limited in 2013. Units are offered in a range of 2 to 5-bedroom layouts, with built-up areas of 785 sqft up to around 4,456 sqft. This allows it to cater to many types of lifestyle needs, from couples to families. Waterview is particularly ideal for residents seeking a quieter lifestyle away from the city centre, within a fully established and independent residential suburb. Sim Lian Group are a Singapore-based property developer, with a 40-year history of developing innovative residential properties for citizens throughout Singapore. Sim Lian carries a diverse portfolio of residential, commercial and industrial projects throughout Singapore, Australia and Malaysia, many of which have been recognized for their outstanding quality in construction and sustainability. Waterview is located within a peaceful residential suburb, overlooking Bedok Reservoir and Quarry Park to the south. The property is located within a peaceful residential suburb, ideal for residents seeking to avoid the crowds and traffic of the city centre. Several well-regarded schools and colleges are also located close by, including Temasek Polytechnic and UWC South East Asia, making the area an attractive location for students and families. The neighbourhood is fully equipped with facilities such as the Tampines West Community Club, Tampines Hub and various other community centres and recreational facilities that serve to make the area a highly conducive and comfortable place to stay, reducing the need for residents to travel all the way into the city. Additionally, Waterview offers a modest range of facilities, including a swimming pool and sauna, tennis courts, gymnasium, barbeque area, and playground. The compound is gated and monitored by 24-hour security. Waterview is located around 1.8 kilometres away from Tampines West MRT Station along the Downtown Line, equivalent to around a 5 to 10-minute drive. A line of bus stops are also available right outside the compound, less than a 5-minute walk away and offering direct links to nearby train stations. Drievrs heading to the Orchard Road shopping district can take Bartley Road East towards the Central Expressway (CTE), and expect to reach within 20 minutes. Alternatively, those travelling to the international business district can head further west towards the Pan Island Expressway (PIE), and arrive within half an hour. The Top TableSugarloafSoi Thai Kitchen Springfield Secondary SchoolJunyuan Secondary SchoolSt Hilda’s Primary School Life Spring Medical ClinicChangi General HospitalGreen Forest Medical Clinic Tampines MallCentury Square MallTampines 1 Waterview is a leasehold condominium project comprising twelve 14-storey condominium blocks, hosting a total of 696 residential units. The apartments are available in layouts ranging from 2 to 5-bedrooms, with built-up areas starting from 785 sqft up to around 4,456 sqft. The units currently have an estimated sales price value of around S$ 800,000 up to S$ 3,800,000, depending on unit size and layout. Rental prices range between S$ 1,100 up to S$ 8,900. Project Name: WaterviewType: 99-year Leasehold CondominiumDistrict: 18 Unit Types:2-bedroom (785 - 1,184 sqft)3-bedroom (915 - 1,733 sqft)4-bedroom (1,184 - 3,584 sqft)5-bedroom (4,144 - 4,456 sqft) The following projects are by the same developer as Waterview:The Lincoln ResidencesHillion ResidencesWandervaleTreasure Crest EC The following developments are in the same neighbourhood as Waterview: Treasure at TampinesCoco PalmsRipple BayThe TapestryD'NestWatercolours
View project details































