Urban Vista
2 Tanah Merah Kechil Link
S$ 1,540,000
Starting From3
Beds
2
Baths
893
sqft (floor)
S$ 1,725
psf (floor)
390 m (5 mins) from EW4/CG Tanah Merah MRT
About this property
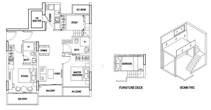
Dual Keys! Must grab it!
Squarish and functional layout
Enclosed Kitchen
Balcony for both unit
Serious seller
Pool view and not facing the mrt track
Over 4% rental yield
Good tenant 's profile
*Photos taken before tenants move in.
*Unit is tenanted, and viewing needs to arrange at least 1 wks in advance as one of the tenants is a pilot.
Mcst $335 per month.
Rental $5800 monthly.
2 br till 29th September 2026 @$3200
Studio till 17th April 2027 @2600
Urban Vista is a 99-year Condominium located at Tanah Merah Vista in District 16. It comprises of 582 units. Urban Vista is next to Tanah Merah MRT Station and Bedok MRT Station. Schools close to Urban Vista includes Bedok View Secondary School, Anglican High School and Alps Academia.
Amenities
Air-conditioning
Balcony
Cooker hob/hood
Renovated
Affordability
Tell us your monthly income and expenses to see if this home fits your budget.
Urban Vista

Urban Vista is a 99-year leasehold condo development located within the vicinity of Tanah Merah in District 16. Urban Vista was completed in 2016 with a total of 582 units for residential purpose. The developer of Urban Vista is Bayfront Realty Pte Ltd. The nearest MRT station which is Tanah Merah Station is a mere walking distance from Urban Vista whilst Bedok and Bedok Reservoir MRT stations are less than 2 kms away. The concept of Urban Vista is that of a metropolitan home that combines the luxury of city living with the serenity of urban surrounding. Urban Vista is well connected island wide via the many transportation options available. Urban Vista is just an MRT stop away to many business entities and a 66-heactare integrated business park as well as some of the world’s leading companies at Changi Business Park such as Honeywell, IBM,Invensys and financial institution such as DBS Asia Hub, Citibank, Credit Suisse and Standard Chartered making it an ideal location for those who work nearby so they don’t have to travel too far. Aside from that, Urban Vista offers a host of facilities for its residents recreational use such as Children’s Playground, Children’s Pool, Spa Pool, Jacuzzi, recreational deck, swimming pool, pavilion, aqua bed, sun cabana, Outdoor Lounge, BBQ Area,Meeting and reading pod, Clubhouse with function rooms and lounge,gym,tennis court, running track, outdoor fitness station,landscaped themed garden, 24 hours security and parking. In addition to that, Urban Vista is also within close proximity to several reputable educational facilities,all of which are a short drive away. Urban Vista enjoy excellent connectivity with the Tanah Merah MRT station literally at your doorstep while Bedok and Bedok Reservoir MRT station less than 2 kms away as well. Other than that, it is connected by major expressways such as the East Coast Expressway (ECP) and Pan Island Expressway (PIE) whilst Orchard Road, CBD and Marina area are all a short drive away. Change Airport is 14 minutes drive from Urban Vista. Additionally, Urban Vista is a minute’s walk from the Tanah Merah Interchange Station where you can travel seamless and with ease. Other public transportation options such as buses and taxis are also plentiful and easily available around the area. Izumi Japanese RestaurantCarvery BistroSoon Huat Bak Kut TehLiang’s Wanton NoodlesAlina’s KitchenTemasek Primary SchoolSt Anthony’s Canossian Primary SchoolAnglican High SchoolBedok View Secondary SchoolTemasek Junior CollegeOne World International SchoolNPS International SchoolUnited World College-East CampusGlobal Indian International School – East CoastSingapore University of Technology and DesignSingapore PolytechnicChangi General HospitalSaint Andrew’s Community HospitalBedok Central Clinic & SurgeryParkway East HospitalBedok Shopping ComplexBedok PointEast VillageBedok MallThe Marketplace @58FairPrice New Upper Changi RoadLow See Seng Econ-mini MartCold Storage East VillageGiant Bedok Market PlaceFairPrice Bedok North Street 4Jalan Limau Kasturi Open SpaceEast Coast ParkForest AdventureBedok Reservoir ParkSiglap East Community Farm Urban Vista was completed in 2016 with a total of 582 units for residential purpose. The developer of Urban Vista is Bayfront Realty Pte Ltd. Project Name: Urban VistaDeveloper: Bayfront Realty Pte LtdSite Area: 13,998.5 sqmNo of Units: 582 residential unitsDistrict: 16Tenure: 99-year leaseholdType: CondominiumCompleted: 2016 Unit types:1 bedroom PES-506-538 sft x 7 units1 bedroom – 431 -581 sft x 118 units1 bedroom Penthouse – 829-861 sft x 10 units2 bedroom PES – 592 – 721 sft x 15 units2 bedroom -549 – 614 sft x 183 units2 bedroom Penthouse – 1012-1163 sft x 16 units2 bedroom Dual Key PES – 721 – 807 sft x 3 units2 bedroom Dual Key -689 sft x 29 units2 bedroom Dual Key Penthouse – 1162 – 1249 sft x 3 units3bedroom PES -904 - 990 sft x 10 units3 bedroom – 786-980 sft x 108 units3 bedroom Penthouse -1324 – 1485 sft x 10 units3 bedroom Dual Key PES -1033 – 1044 sft x 4 units3 bedroom Dual Key-893 - 904 sft x 24 Units3 bedroom Dual Key Penthouse - 1442 - 1453 sft x4 Units4 bedroom PES - 1130 sft x 2 units4 bedroom – 1044 sft x 20 units4 bedroom + Study Penthouse - 1668 sft x 2 units4 bedroom Dual Key PES – 1227 sft x 1 unit4 bedroom Dual Key - 1088 sft x 12 units5 bedroom Dual Key Penthouse – 1862 sft x 1 unit The following developments are in the same neighbourhood as Urban Vista: eCOGrandeur Park ResidencesUrban VistaThe GladesArchipelagoThe Bayshore
View project details





























