Twin Waterfalls

108 Punggol Walk

S$ 2,300,000


Beds

3

Beds

Baths

2

Baths

sqft (floor)

1,765

sqft (floor)

auto-size-o

S$ 1,303

psf (floor)


850 m (10 mins) from PW7 Soo Teck LRT

890 m (11 mins) from NE17/PTC/CP4 Punggol MRT


photo

Photos

floorplan

Floor Plan

map

Map View

Property details

home-open-o
Executive Condominium for sale
furnished-o
Partially furnished
document-with-lines-o
TOP in 2015
calendar-days-o
99-year lease
calendar-time-o
Listed on 31 Jan 2026
document-with-lines-o
Listing ID - 60210467

About this property

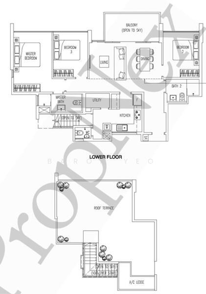
3br Penthouse with loft and roof terrace!

✅ Bright and windy
✅ 5 mins walk to Punggol MRT
✅ Abundance of childcare and primary schools nearby
✅ many supermarkets nearby including U star and Sheng Siong
✅ Stone’s throw to many food options
✅ 7 mins walk to Waterway Point Shopping Centre for all your groceries, daily necessities, banking needs and restaurants!

Don’t miss out on this cosy unit with built in loft and roof terrace perfect for BBQ and chilling!
Amenities
aircon-o

Air-conditioning

kitchen-o

Cooker hob/hood

maid-room-o

Maidsroom

penthouse-o

Penthouse

Common facilities
bbq-o

Barbeque pits

shared-space-o

Clubhouse

outdoor-gym-o

Fitness corner

gym-o

Gymnasium room

Affordability

Can I afford this property?

Tell us your monthly income and expenses to see if this home fits your budget.

Mortgage breakdown
Est. monthly repayment
S$ 0 / mo
0%
0%
S$ 0 Principal
S$ 0 Interest
Upfront costs
Total downpayment
S$ 0
0%
0%
Downpayment
S$ 0 Loan amount at 0% Loan-to-value

S$
S$
%
Yrs
Key to home analytics
Track this home's value
Get insights on past sales, rentals, and value trends for this home
trend iconTrack now
FAQs
The sale price of this unit at Twin Waterfalls is S$ 2,300,000.
Current PSF at Twin Waterfalls is about S$ 1,303.12 psf.
The estimated loan repayment is S$ 6,744 / mo.
Twin Waterfalls is located at 108 Punggol Walk Hougang / Punggol / Sengkang Serangoon / Thomson (D19-20).
Floor size of this unit at Twin Waterfalls is 1,765 sqft.