The M
30 Middle Road
S$ 1,350,000
Starting From1
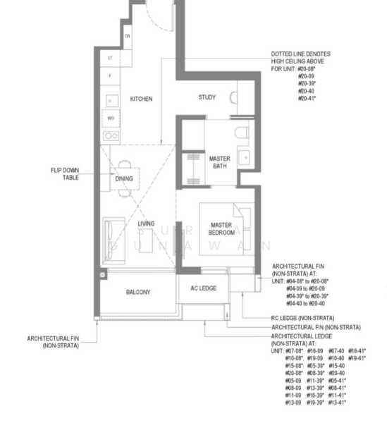
Bed
1
Bath
527
sqft (floor)
S$ 2,562
psf (floor)
480 m (6 mins) from CC3 Esplanade MRT
570 m (7 mins) from EW12/DT14 Bugis MRT
About this property
Cheap! 1 Plus Study, 5 mins walk to Bugis MRT! Sell Vacant or Tenancy!
- middle floor
- tenanted until end march
- open kitchen
- balcony
- jack and jill bath
Amenities
Air conditioner
Common facilities
24 hours security
Car park
Clubhouse
Community garden
Affordability
Tell us your monthly income and expenses to see if this home fits your budget.
The M

You've probably walked past a building and thought, "That one just gets the city." The M Condominium is that kind of place. In a city that never stops redesigning itself, it's rare to find a home that combines practical convenience with a bit of personality, and yet, here it is. Sitting on Middle Road, Singapore 188940, The M occupies a lively slice of the Beach Road, Bugis, and Rochor neighbourhood in District D07. It's the sort of address where commuting is straightforward, but wandering off the beaten track for a coffee or a curry is equally tempting. The project, which was completed in 2023, was undertaken by Wingcharm Investment Pte Ltd, a subsidiary of Wing Tai Holdings Limited. It features 522 residences, ranging from neat studios and one-bedroom flats to spacious three-bedroom and three-bedroom dual-key apartments. It's a 99-year leasehold development that aims to combine modern comforts with long-term appeal. You'll also find retail on the lower levels, which is a tiny luxury: pop downstairs for groceries or a quick bite, and you're back home in minutes. Architecturally, the scheme comprises three 20-storey towers and a single six-storey block, forming a calm yet unmistakable silhouette on Middle Road. Central to District 7, with convenient connectivity to the Central Business District (CBD) and Orchard Road. Homes and retail blended for everyday convenience. Choose units with flexible layouts, ideal for multigenerational living or generating extra rental income. A considered mix of amenities to encourage wellbeing, leisure, and neighbourly interaction. Put simply, The M manages to be both elegant and sensible, attractive to homeowners and investors. MRT Connectivity: Getting from A to B is simple. Bugis MRT Station EW12 (East West Line) and DT14 (Downtown Line) are about a four-minute walk away, and Esplanade MRT C33 (Circle Line) is around a six-minute walk. Bras Basah and City Hall (North-South and East-West Lines) are about eleven minutes on foot, or one MRT stop away. Bras Basah MRT (Circle Line) is also within comfortable walking distance, providing access to four major MRT lines and making island-wide transport straightforward. Everything inside the development is aimed at day-to-day life, not just a show. There are spaces to relax, to exercise, and to meet people: Swimming pool for leisure and fitness laps Fitness corner with modern equipment Clubhouse, which is also known as "Club M" for gatherings and events Children's play area, designed for safety and fun Community garden, a quiet green pocket in the city These communal areas are designed to strike a balance between solitude and social moments, offering a pleasant atmosphere that doesn't feel crowded, ideal for city living. Families will appreciate the proximity of choice schools, including: Stamford Primary School St Margaret's Primary School School of the Arts It's pretty convenient to have educational options nearby, which makes things easier for both parents and students. If you care about food (who doesn't?), the local availability is a must. Nearby options include: Victor's Kitchen The Masses Singapore Leo's Cafe Bar From quick, reliable bites to more refined dining, the choices suit a variety of moods and pockets, and most are within a stroll. Healthcare is readily available with facilities close at hand, for example: Bugis Medical Centre Raffles Medical Group KK Women's and Children's Hospital (KKH) Having medical care nearby is one of those small comforts that matters more than you expect. For everyday shopping, you have convenient options such as: Meidi-Ya Supermarket CS Fresh Sheng Siong Supermarket Whether you're looking for a quick shop or a larger weekly haul, both are hassle-free. Occupying a prime stretch on Middle Road, The M sits squarely within the Beach Road, Bugis, and Rochor corridor. The architecture leans modern but measured, favouring clean lines and functional layouts that make the most of city living. The M occupies 30-38 Middle Road, squarely within Singapore's District 07 (Beach Road, Bugis, Rochor corridor). Mixed-use development comprising residential units and ground-floor retail/F&B. Four blocks - three twenty-storey residential towers and one six-storey block. 522 residential units Studios, one- to three-bedroom units, and three-bedroom dual-key apartments. 7,462.7 sqm (80,328 sq ft). 31,343 sqm (337,380 sq ft). D07 (Downtown Core / Rochor / Bugis). 99-year leasehold from 3 July 2019. Wingcharm Investment Pte Ltd, a unit of Wing Tai Asia. Project completion in 2023. Clean, modern design with functional urban layouts; focus confirmed as contemporary residential architecture by P&T Consultants. The M is developed by Wingcharm Investment Pte Ltd, a wholly owned subsidiary of Wing Tai Holdings Limited. Since 1955, Wing Tai has built a reputation across Asia for projects that blend thoughtful design with a focus on build quality. The developer is known for: Innovative architecture and lifestyle-sensitive design High construction standards A consistent track record of delivering premium developments That track record is why many buyers and investors look to Wing Tai with a name that signals careful, long-term thinking. Wing Tai's portfolio includes well-regarded developments that reflect the group's design values, such as: The LakeGarden Residences Le Nouvel Ardmore The Tembusu Each project highlights a different facet of city living done well. The M sits among several prominent neighbours that help shape the central district's character, including: DUO Residences South Beach Residences Midtown Modern Together, these developments contribute to a polished, cosmopolitan neighbourhood fabric. The M isn't merely another address; it's a considered take on modern city living. With a central location, well-chosen amenities, and strong connectivity, it appeals to homeowners, families, and investors seeking lasting value. If you are looking for a prime city residence, we encourage you to explore The M's available listings and discover for yourself why this development stands out in the heart of the city.
View project details













