Sengkang Grand Residences
72 Compassvale Bow
S$ 2,380,000
Negotiable3
Beds
2
Baths
1,023
sqft
S$ 2,326
psf
50 m (1 min) from NE15 Buangkok MRT
About this property
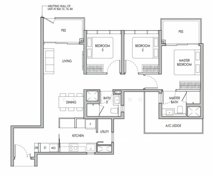
Sengkang Grand Residences 3bed Ground floor unit for sale!
Ground floor lovers
3bed premium layout ground floor unit for sale!
Convenient
Tranquil
Integrated mall
Education
Community space
Dining
Supermarket
Food center
MRT
Main door Facing 60 deg NE
Call Evelyn Ng today @ 8*****
Amenities
Air-conditioning
Cooker hob/hood
Corner unit
Ground floor
Common facilities
Car park
Affordability
Tell us your monthly income and expenses to see if this home fits your budget.
Sengkang Grand Residences

Sengkang Grand Residences is a 99-year leasehold condominium situated at Compassvale Bow, Singapore 544567, in the sought-after District 19, which encompasses Hougang, Punggol, and Sengkang. Developed by Siena Residential Development Pte Ltd and Siena Trustee Pte Ltd, a joint venture between CapitaLand and City Developments Limited (CDL), this integrated development comprises 680 residential units. Completed in 2023, the condominium offers a range of unit types, from one-bedroom to four-bedroom apartments, catering to different residential needs. Its integration with Sengkang Grand Mall brings together commercial and residential spaces, allowing residents to enjoy a convenient lifestyle. Spanning a site area of 401,011 sq ft, the condominium consists of nine blocks rising to 13 storeys, combining modern architecture with lush landscaping to create a balanced living environment. Sengkang Grand Residences stands out in District 19 for its strategic location, connectivity, and lifestyle offerings. The development is close to Buangkok MRT Station (NE15) and provides easy access to key areas via major expressways. Its integrated design ensures that residents enjoy both residential comfort and commercial convenience within the same development. Facilities include a 50m lap pool, gymnasium, and function room, catering to both relaxation and social interaction. Designed by MKPL Architects Pte. Ltd/ SAA Architects Pte. Ltd, the development blends seamlessly with the surrounding greenery, promoting a tranquil and harmonious atmosphere. The combination of convenience, thoughtfully designed spaces, and eco-friendly elements makes Sengkang Grand Residences a unique choice for city living. Connectivity is one of Sengkang Grand Residences’ major advantages. Residents have direct access to Buangkok MRT Station (NE15) on the North East Line, allowing seamless travel across Singapore. Sengkang MRT Station (NE16) is also nearby, offering additional commuting options. For drivers, the development is well connected via Compassvale Bow, providing smooth access to major expressways such as the Kallang-Paya Lebar Expressway (KPE), Seletar Expressway (SLE) and Central Expressway (CTE). The neighbourhood itself is lively and family-friendly, with parks, sports centres, community spaces, and Sengkang Grand Mall located within walking distance, making it suitable for both young professionals and families. The development is spread across 401,011 sq ft, comprising nine low-density blocks rising 13 storeys. Sengkang Grand Residences Condominium 19 99-year leasehold Nine 13 680 residential units Sengkang Grand Residences offers a host of facilities designed to support a balanced lifestyle. Residents can enjoy: From fitness and wellness amenities to leisure and social spaces, these facilities cater to residents of all ages and interests. Lap Pool Pavilion Hammocks Mini Golf Range Function Room Wading Pool BBQ pit Outdoor Dining Yoga Corner Playground Reflexology Path Spa Pool Fitness Corner Clubhouse Lounge Gym Fun Pool Water Feature Security These amenities create opportunities for exercise, relaxation, and social interaction, fostering a sense of community while maintaining a serene environment. Families benefit from the proximity of several choice schools and educational institutions, including: Sengkang Primary School Nan Chiau Primary School Sengkang Secondary School These schools are within a close distance, providing convenient access to education for children of different ages. Residents can enjoy a variety of dining options within walking distance, ranging from casual eateries to cafes and hawker centres. Popular choices include: Huang Kee Hong Kong Style Wanton Noodle Nana Nonya Teck Ee Seafood This mix of options caters to different tastes, making daily dining convenient and enjoyable. Healthcare facilities are readily accessible, including: Sengkang General Hospital Sengkang Community Hospital My Family Clinic at Rivervale Mall Residents can easily access medical services for routine care or emergencies. For daily essentials, several supermarkets are located nearby: Giant Express at Compassvale Bow FairPrice at Compassvale Link Velan Mini Super Mart These supermarkets provide convenient options for groceries, fresh produce, and household necessities. Sengkang Grand Residences occupies a prime site at Compassvale Bow, District 19. The design integrates urban elegance with greenery, with sleek facades, landscaped gardens, and communal spaces promoting a serene and modern living environment. One-bedroom: 474 – 506 sq ft Two-bedroom: 624 – 678 sq ft Two-plus-one-bedroom: 624 – 764 sq ft Three-bedroom: 936 – 1,055 sq ft Three-bedroom premium: 1,012 – 1,055 sq ft Four-bedroom: 1,313 – 1,324 sq ft Four-bedroom premium: 1,313 – 1,324 sq ft With its spacious units, greenery, and low-rise design, Sengkang Grand Residences delivers a balanced and inviting urban lifestyle. Sengkang Grand Residences is developed by Siena Residential Development Pte Ltd and Siena Trustee Pte Ltd, a collaboration between CapitaLand and City Developments Limited (CDL). Both developers have strong track records, including CapitaLand’s The Interlace and CDL’s Amber Park, known for quality architecture, sustainable designs, and functional layouts. Over the years, the developers have completed iconic projects, earning a strong reputation. Other notable developments by the same developers include: The Interlace: CapitaLand Amber Park: City Development Pte Ltd South Beach Residences: City Developments Pte Limited These projects showcase the developers’ commitment to quality, innovative design, and integrated living experiences across Singapore. The surrounding area hosts several prominent residential developments, contributing to a dynamic and vibrant community. Nearby projects include: Riverfront Residences Kingsford Waterbay The Florence Residences The presence of these residential projects enhances the sense of community and convenience around Sengkang Grand Residences. Sengkang Grand Residences offers a well-rounded residential experience with modern facilities, convenient connectivity, and a serene living environment. Its integration with Sengkang Grand Mall, proximity to public transport, expressways, choice schools, dining options, and healthcare facilities makes it a compelling choice for families and professionals seeking urban living with ease and comfort. With thoughtfully designed units, comprehensive amenities, and a location in one of Singapore’s most accessible districts, Sengkang Grand Residences presents an opportunity for residents to enjoy a convenient and fulfilling lifestyle. To learn more about Sengkang Grand Residences, view units for sale and rent on PropertyGuru Singapore.
View project details





















