Peak Residence
337 Thomson Road
S$ 1,299,999
Starting From1
Bed
1
Bath
560
sqft (floor)
S$ 2,321
psf (floor)
800 m (10 mins) from NS20 Novena MRT
About this property
New CCR Condo, Freehold, Below $2500psf!
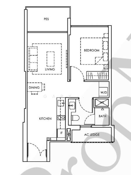
- Spacious 1 bedroom floor area of 560 sqft.
- High ceiling.
- Well Maintained and Move-in Condition.
- Functional Layout.
- Bright, serene and quiet landed neighbourhood.
- Bus-stop right out of condo with 10 different buses going to most parts of SG.
- Amenities aplenty at Zhongshan Mall, Velocity (Square 1 and 2), United Square Mall, Chancery Court.
- 1km to Good Primary Schools.
Amenities
Air conditioner
Bedroom cabinets
Covered car parking
Decorative lights
Common facilities
24 hours security
Barbeque pits
Children's playground
Clubhouse
Affordability
Tell us your monthly income and expenses to see if this home fits your budget.
Peak Residence

Peak Residence, replacing the former Peak Court, is a luxury freehold condominium located at 333 Thomson Road in District 11 (D11).Sitting on an elevated land plot on Thomson Road, Peak Residence overlooks the landed housing enclave along Chancery Hill Road and Dyson Road. This translates to exclusivity and enhanced privacy for residents.As a freehold development located in the Core Central Region (CCR), Peak Residence also brings residents unrivalled transport connectivity and convenient proximity to amenities.The nearest MRT station to Peak Residence is Novena MRT (NS20) on the North-South Line (NSL).Other easily accessible stations nearby include Toa Payoh MRT (NS19) and Caldecott MRT (CC17/TE9) - an interchange for both the Circle Line and Thomson - East Coast Line.Travelling via the NSL, residents get access to major employment hubs and recreational spots such as the Orchard shopping belt, Dhoby Ghaut, and the Central Business District (CBD) at City Hall and Raffles Place in less than 10 minutes.Residents can also take a one station ride to Newton MRT (NS21/DT11) where they can switch over to the Downtown line. The DTL shaves up to 30% off travelling time by offering commuters alternative routes into the Central Business District (CBD), Marina Bay, City Hall, and various parts of Bukit Timah.The well-connected bus network in the vicinity also gives residents easy access to the city centre by bus.For drivers, Peak Residence is conveniently connected to major expressways and roads, including the Central Expressway (CTE), Pan Island Expressway (PIE), Thomson Road, Whitley Road, and Newton Road.Furthermore, the completion of the North-South Corridor (NSC) in 2026 will further boost connectivity in the area. The new 21.5km transport network comprising bus lanes, cycling routes, and pedestrian paths will connect residential towns in Singapore’s north to the city centre.The North-South Corridor will also ease traffic congestion in areas near Novena, including the CTE, Thomson Road, and Marymount Road, to enhance residents' convenience in travelling.Those who enjoy nature can check out nearby green spaces, including the MacRitchie Nature Trail & Reservoir Park, Springleaf Nature Park, Windsor Nature Park, and Thomson Nature Park.Arrival PavilionMeditation DeckBubbler PoolSunning LawnReading CornerLeisure GardenWest CourtyardEast CourtyardReflecting PoolHammock DeckPoolside LoungeKids' PoolKids' Play AreaSkyline PavilionLounger Deck33m Lap PoolGourmet Terrace With BBQJacuzzi PoolPoolside LoungeClubhouseParty LawnGymAnglo-Chinese School (Barker Road)Baluster Hill Primary SchoolCatholic Junior CollegeJoseph Institution JuniorJoseph Institution InternationalEtonHouse Preschool NewtonCHIJ Secondary SchoolLighthouse SchoolMarymount Convent SchoolSingapore Chinese Girls' SchoolNearby healthcare facilities include:Thomson Medical CentreTan Tock Seng HospitalMount Elizabeth NovenaMalls near the condo include:Balestier Hill Shopping CentreUnited Square Shopping MallVelocitySquare 2Newton Food CentreNovena Rise ParkZhongshan Mall.Those who are open to travelling further can take a short train ride to the Orchard Shopping Belt, where there are more retail and dining options at malls such as ION Orchard and Paragon.For fresh produce and affordable meals, residents can check out Balestier Market.Peak Residence is a joint venture between Tuan Sing Holdings and Rich Capital Holdings.Listed on the Singapore Stock Exchange in 1973, Tuan Sing Holdings Limited is a recognised property developer of quality residential, commercial and industrial properties in Singapore and China.Rich Capital holds a 30% stake in Peak Residence. Holding an established presence in not only Singapore but also Batam and Indonesia, the Group’s main business focus include residential, industrial and commercial projects.Joint projects under their belts include Seletar Park Residence, Sennett Residence, Cluny Park Residence, Mont Timah, Kandis Residence, and Mont Botanik Residence.Sitting on a site area of approximately 57,378.58 sq ft, Peak Residence houses 90 exclusive residential units across five floors.Those residing in this hilltop residence get to enjoy panoramic views of the estate while unwinding in the project's rooftop facilities including a lap pool, gym, and gourmet terrace with BBQ pits.At Peak Residence, each of the 90 units has been designed to feel spacious and cosy while meeting the needs of different buyers.Units come in one - to four-bedroom configurations.Layouts of residential units are thoughtfully planned to ensure cosy and efficient spaces for residents.Surrounded by lush greeneries, Bukit Timah is one of the most highly sought-after neighbourhoods in Singapore. The DTL enhanced accessibility to the heritage and recreational options offered in the area. In years to come, residents can look forward to more commercial and community amenities and more convenient access to the green network in the area. Upcoming developments include:Bukit Timah-Rochor Green Walk is a new 11km corridor stretching from the Rail Corridor to Kallang Riverside Park, also part of the Coast-to-Coast Trail. Part of the new corridor will incorporate an elevated Skypark above the Bukit Timah Canal between Rifle Range Road and Sixth Avenue so visitors can enjoy a refreshed cycling and hiking experience.The Bukit Timah Community Building integrates the Bukit Timah Community Club and Bukit Timah Market & Hawker Centre. This Bukit Timah Community Building will also house several new amenities, such as an indoor sports hall, community library, and elder care facility.Peak Residence is a desirable development given its exclusivity, strategic location, and strong potential for capital appreciation.The established transport connectivity in the area also serves as a fine balance between accessibility to Singapore’s town centre and privacy.Further increasing the attractiveness of Peak Residences for investors and homebuyers, the planned completion of the NSC will further boost connectivity for residents by facilitating access to attractions such as the upcoming Mandai Nature integrated nature and wildlife precinct and provide alternative routes to the CBD.Check out Peak Residences listings for sale and also listings for rental.
View project details











