Parc Clematis
8 Jalan Lempeng
S$ 2,290,000
Starting From3
Beds
2
Baths
904
sqft (floor)
S$ 2,533
psf (floor)
1.3 km (15 mins) from EW23 Clementi MRT
About this property
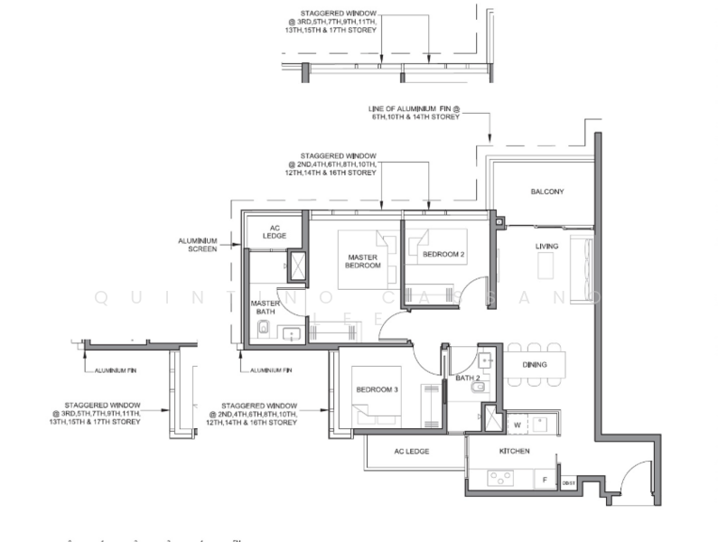
Landed Facing, Lucky Unit Number, Corner and only 904sqf unit on sale.
The Only 904sqft 3-Bedroom Unit Available For Sale!
Parc Clematis (DO5)
3 Bed 2 Bath I 904sqf
A rare corner unit with full privacy and serene Faber Landed enclave views.
North-facing, main door South, and only 2 stacks with this premium orientation.
Flooded with natural light through floor-to-ceiling windows, this home features a private entrance layout, enclosed kitchen, and windows in both bathrooms. Practical, bright and well ventilated.
Owner-occupied since day one, never tenanted and beautifully maintained.
Auspicious unit number! Truly a home that feels right from the start.
View to appreciate!
Schools Nearby: Nan Hua Primary (next door), Pei Tong Primary (within 1KM), Nan Hua High, Singapore Japanese Sec, Clementi Town Sec, Singapore Poly & NUS (within 1–2.2KM)
Superb Connectivity: Minutes to Clementi MRT, easy access to AYE/PIE, and surrounded by retail & dining options.
Parc Clematis – a 2-year-young mega development offering resort-style living, lush landscapes and full family facilities.
DM me for more details or to arrange for an exclusive viewing.
Common facilities
24 hours security
Car park
Children's playground
Game room
Affordability
Tell us your monthly income and expenses to see if this home fits your budget.
Parc Clematis

Located at a prime location along Jalan Lempeng Singapore in the heart of Clementi (District 5), Parc Clematis which is formerly known as Park West Condominium, is a luxury property development that provides its residents with easy accessibility to all of the city’s major points. Targeted to be completed in year 2023, the condo is a remarkable project by established Singapore Exchange (SGX) listed developer, SingHaiyi Group Ltd. Determined to establish the brand as a reliable developer that delivers long term growth and home that can be inherited for generations, the new development also presents an opportunity for the group to further develop the region close to the second Central Business District (CBD) of Singapore – Jurong East Regional Centre, in line with the Singapore government’s commitment in developing the Jurong Regional Centre. The main selling point would be its strategic location of being situated in the matured estate of Clementi, surrounded by abundance of amenities. The location is perfect for those looking to enjoy the vibrancy of the city yet at the same offers the enjoyment of nature for those who wish to escape from the city life. In addition, all the tower blocks in Parc Clematis are tilted in north-south facing orientation to avoid direct west sunrays. It was purposely built with space between tower blocks to create distance for better privacy between all the units. With this design, more greeneries are planted at the base of the blocks to give a see-through vantage views towards landscape area while allowing more sunlight and airflow through the neighbourhood. Moreover, Parc Clematis also offer a wide variety of facilities for its residents such as 50-meter pool, reflexology garden, aquatherapy / hydrotherapy pool, indoor gymnasium, multipurpose court and many more. The development is easily accessible to and from various places. The residence is connectible to major areas along the East-West Line, such as Jurong East and One-North R&D Park. The Buona Vista MRT station is only 2 MRT station away and is direct line to Raffles Place and City Hall MRT Interchange. Clementi bus interchange is just right next to the residential area while Jurong East MRT station is only 1 station away from Clementi MRT station. Other nearby MRT stations include Dover MRT. Nan Hua Primary & High SchoolPei Tong Primary SchoolClementi Primary & Secondary SchoolNUS High SchoolNational University of SingaporeNgee Ann Polytechnic National University HospitalNg Teng Feng HospitalJurong Medical Centre Star VistaWestgateNTUC FairPrice at Clementi MallJcubeBig Box The condo consists of 1,468 units featuring 1,450 apartment units, 8 Strata inter-terrace, 4 Strata corner-terrace and 6 Strata bungalows. There is a total of 9 towers, each with 24 storeys and split into 4 collections namely Contemporary, Elegance, Signature and Masterpiece. There are 4 towers under the Contemporary Collection which comes in 1-bedroom to 4-bedroom types, designed specifically for young family. Under Elegance Collection, there are 3 towers with available unit types 2-bedroom to 5-bedroom and penthouses, matching the living style for larger family or multi-generation living. The Masterpiece Collection is also suitable for multi-generation living with nearer access to full condominium facilities. Lastly, there are 2 classy refined premium towers under the Signature Collection with unit types 3-bedroom to 5-bedroom premium. Parc Clematis pricing starts from SGD$6xxk for a 452 square foot one bedroom, on average of $1,580 per square foot. Project Name: Parc ClematisType: CondominiumDistrict: D05 (Buona Vista / West Coast / Clementi New Town)Configuration: 1,468 Units with 1,468 carpark lotsSite area: 633,644 Square feet Unit types for Parc Clematis:1 Bedroom2 Bedroom3 Bedroom4 Bedroom5 BedroomPenthouseCorner TerraceTerraceBungalow The following projects are by the same developer as Parc Clematis:The LiliumThe GazaniaCity SuitesCityLife@TampinesThe Vales Executive Condominium The following developments are in the same neighbourhood as Parc Clematis:Parc ClematisParc RivieraKent Ridge Hill ResidencesWhistler GrandThe RochesterOne-North Residences
View project details




























