Aurea
802 Beach Road
S$ 1,801,000
Starting From2
Beds
2
Baths
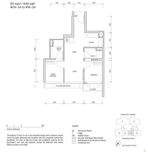
646
sqft (floor)
S$ 2,788
psf (floor)
560 m (7 mins) from CC5 Nicoll Highway MRT
About this property
Experience timeless city living - great amenities!
Developed by Perennial Holdings PL & Far East Organization.
New residential tower, adjacent & linked to The Golden Mile via elevated link bridge
Total : 188 units
Ranging from 2Bedroom ~ 5Bedroom + 2 Penthouse
Spacious 2Bedroom from 646 ~ 710sqft.
Investor's delight or own stay.
Experienced a balanced of nature and urbanity
Located at the downtown core with array of actions and unforgettable moments awaits you.
Well-served by a myriad of lifestyles options:
Wide varieties of shopping malls
Aplenty fine dining - culinary experience
Abundant leisure activities
Commercial hub & employment nodes
Minutes' walk MRT stations:
Nicoll Highway (Circle line)
Lavender (East-West line)
Close proximity to educational institutions - just to name a few :
Farrer Park Pri
Hong Wen Pri
St Margaret's Pri
Kong Hwa Sch
Anglo-Chinese Sch (Junior)
Dunman High Sch
Kaplan City Campus @ Wilkie Edge
NAFA @ Bencoolen
HWA Intl Sch - MSQ Campus
Invictus Intl Sch
LASALLE College of the Arts - McNally Campus
Contact Andy Khoo @ 9674.4495 today for more details and viewing.
Amenities
Air-conditioning
Balcony
Cooker hob/hood
Original condition
Common facilities
24 hours security
Accessible washroom/shower
Adult fitness stations
Aircon facilities
Affordability
Tell us your monthly income and expenses to see if this home fits your budget.
Aurea

Aurea, a 99-year leasehold development located at 802 Beach Road, Singapore 199980, is situated within District 7, encompassing Beach Road, Bugis, and Rochor. The condominium development is a collaboration between GMC Property Private Limited, a joint venture of Perennial Holdings Private Limited, Far East Organisation, and Sino Land. A total of 188 residential units form the main configuration. Commercial spaces within the Golden Mile Complex complement the project, merging residential and commercial functions. A basement car park and communal amenities contribute to the comprehensive setting, while the preserved architectural form of the Golden Mile Complex adds distinct character. Targeted to be completed in 2030. Aurea occupies a prime location in District 07, securing strong links to key areas, including the Central Business District (CBD) and Marina Bay. The design draws strength from a blend of heritage and modernity, balancing the historic Golden Mile Complex façade with refined urban luxury. The mix of cultural identity, convenience, and premium finishes enhances its presence as a refined residential option within a lively city quarter. The proximity to lifestyle destinations, cultural landmarks, and retail choices further enriches daily experiences. At the same time, carefully planned interiors and communal facilities create harmony between private comfort and social interaction, reinforcing the overall appeal of this distinctive development. Connectivity surrounds Aurea through both rail and road networks. Nicoll Highway Mass Rapid Transit (MRT) Station (CC5) and Bugis MRT Station EW12/DT14) are within a comfortable walking distance, offering extensive rail connections across Singapore. For road access, Nicoll Highway and Beach Road provide direct vehicular routes to key city nodes, including the Central Business District and Marina Bay. Neighbourhood diversity adds further depth. Kampong Glam reflects a strong Malay-Arab heritage with its rich religious, cultural, and artistic institutions. Haji Lane offers a youthful edge with its cafés, murals, and boutique retail. Both settings enhance the vibrancy of the lifestyle around the residential sphere. The design of Aurea accommodates both individual well-being and community interaction. Thoughtful spatial planning encourages a balanced lifestyle, where private residences merge seamlessly with shared amenities. Each facility supports relaxation, recreation, and wellness, shaping a residential environment that values comfort, harmony, and modern urban convenience. Residents enjoy facilities that respond to multiple lifestyle needs, including: Accessible Washroom/Shower Adult Fitness Stations Aircon Facilities Alfresco Dining Arrival Lounge/Arrival Court Basement car park Bicycle Parking BBQ Pavillion Car Park Covered car park Changing Room Children's Pool Children's Playground Clubhouse Covered Linkways Dining Pavilion Drop Off Point Fitness corner Function room Garden Terrace Gymnasium room Hammock Deck Infinity Pool Jacuzzi Lap pool Leisure Garden Lift lobby Lounge Main entrance Meditation Deck Pool Deck Perimeter Fencing Playground Poolside Cabana Reading Alcove Reading Room Recreational Pool Sauna 24 hours security Sky Lounge Spa pool Swimming pool Wading pool These features create a comprehensive living environment where rest, activity, and social connection maintain equal priority. The spatial arrangement also enhances visual flow and interaction with preserved architectural heritage. Educational institutions add value to the residential setting of Aurea, offering choices across higher learning and early education: LASALLE College of the Arts Kaplan City Campus at Wilkie Edge House on The Hill Mount Sophia: Montessori Pre-School Food options surrounding Aurea reflect a mix of traditional hawker heritage and international dining. Nearby venues include: Golden Mile Food Centre Tipo Pasta Bar: Aliwal Blanco Court Prawn Mee Healthcare support remains accessible from Aurea, with medical centres located within short reach: Pinnacle Family Clinic Minmed Health (Bugis) Raffles Executive Medical Centre Daily convenience strengthens further through supermarkets and retail outlets in proximity to Aurea, such as: CS Fresh 7-Eleven Bee Cheng Hiang The address of Aurea, 802 Beach Road, positions the development on a site area of notable size in District 07. The built form extends across approximately 45 storeys, with architectural features reflecting a careful balance of urban modernism and preserved heritage. Distinctive elements such as the stepped terrace profile and golden columns deliver strong design recognition across the city’s skyline. Aurea Condominium 07 188 residential units 43 Options are available for one-bedroom, two-bedroom, and three-bedroom apartments. Unit sizes reflect the following range: Two-bedroom units: 635 to 710 sq ft Three-bedroom units: about 1,001 sq ft Four-bedroom units: 1,442 to 1,798 sq ft Five-bedroom units: 2,863 to 3,251 sq ft Penthouse units: 5,608 to 8,816 sq ft These measurements reflect diversity across compact, family-sized, and luxury layouts. The developer of Aurea, GMC Property Private Limited, is a joint venture between Perennial Holdings Private Limited, Far East Organisation, and Sino Land. The collective portfolio of these firms demonstrates significant contributions to Singapore’s real estate sector, blending local insight with international influence. The track record of large-scale, award-winning projects across commercial and residential categories strengthens confidence in development delivery. Each partner contributes expertise in various aspects of real estate, including design innovation, construction quality, sustainable practices, and integrated community planning. This creates a combined reputation for excellence that resonates strongly across both local and international property markets. The developer group associates Aurea with other distinguished projects, including: Alba Boulevard Vue Skyline @ Orchard Boulevard These properties reflect a common commitment to luxury and refined urban living. The surrounding district of Aurea includes residential developments with equally prominent recognition, contributing to the dynamic community environment: Citigate Residence Citylights City Square Residences The neighbourhood presents a balanced cluster of established urban residences. Aurea signifies an environment that supports contemporary of living while maximising heritage and other areas of connectivity. The development has full amenities, transport infrastructure right outside the building and is connected directly to key cultural and gastronomic offerings, all in a unique context within Central Singapore. The development represents a symbol of contemporary living and design, delivering character and functionality for people who frequently move through the city and appreciate living authentically. Recreational spaces, wellness provisions, and secure residential planning strengthen the appeal for families and professionals alike. Surrounded by iconic neighbourhoods, rich heritage enclaves, and essential lifestyle conveniences, the development reflects exclusivity, community, and enduring residential value. Visit the Aurea sale page for an exclusive look at premium living options.
View project details











