Park Colonial
2 Woodleigh Lane
S$ 9,800 /mo
Negotiable4
Beds
3
Baths
1,249
sqft
280 m (3 mins) from NE11 Woodleigh MRT
Available from 1 Jul 2026
About this property
Next to MRT and Mall, Rare 4 Bedder
◆ Available from 1st Jul 26 onwards
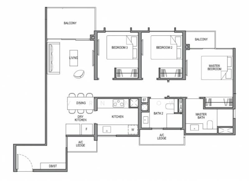
◆ Floor Area: 1249
◆ 4 spacious bedrooms, perfect for families
◆ Comes with utiliy area
◆ Dry and wet kitchen
◆ Enclosed kitchen, fitted with washer dryer, oven, gas stove, and fridge
◆ Full condo facilities including a swimming pool, tennis court, gym, BBQ pits, and more
◆ Next to Woodleigh MRT station, providing easy access to the city and other parts of Singapore
◆ Walking distance to Woodleigh Mall, where you can find a supermarket, restaurants, cafes, and other amenities
◆ Convenient location with easy access to schools, parks, and other recreational facilities
◆ Within 1 km of Cedar Primary, Maris Stella High School, St. Andrew's Junior School, Yangzheng Primary
◆ Next to Stamford American Singapore
Don't miss out on the opportunity to rent this amazing 3-bedroom unit at Park Colonial. Contact us today to schedule a viewing or for more information.
Contact 9***** Vernon for more details!
Amenities
Air-conditioning
Balcony
Cooker hob/hood
Corner unit
Common facilities
24 hours security
Barbeque pits
Children's playground
Community garden
Park Colonial

Park Colonial is a leasehold condominium development that is located at Woodleigh Lane in District 13. It is an ongoing condominium project. The project will be completed in 2022 with a total of 805 units available for sale or rent. The condominium development is located close to public transportation that allows residents to move easily from one place to another from the building. There are many shops and amenities close to the housing development which would ease the process for residents and they do not need to go far to find what they need. The project is being developed by Chip Eng Seng Corp Ltd (CEL Development Pte Ltd), a medium-scale property developer listed on Singapore Exchange and has built 14 property projects in Singapore. - Park Colonial is a beautiful condominium project that has many charms to it. There are various facilities that residents can enjoy while living in Park Colonial. Residents of Park Colonial would not have to travel far to get their basic necessities as everything is close within their reach. Residents can enjoy the barbeque area, community garden, lounge, multi-purpose hall, pool deck, putting green, tennis courts, children’s playground, gymnasium room, pavilion, playground, reflexology path, swimming pool and wading pool. The condominium comes equipped with multi-storey car park and 24 hours security system that ensures the safety of residents at all times. There is a number of public transportation close to Park Colonial that residents can make use of. The closest MRT stations are Woodleigh MRT and Potong Pasir MRT. The closest bus stops are located at Woodleigh Station, Singapore Power Training Institute, PUB Recreation Club and Potong Pasir CC. For those with vehicles, the shopping district located at Orchard Road can be easily accessed via Upper Serangoon Road and Central Expressway in 10 to 15 minutes. The Baba Curry Puff CaféThe Yang’s Hainanese Chicken RiceMutton Prata ShopSeletar Seafood Centre Pte LtdAh Seng Braised Duck ChickenCedar Girls’ Secondary SchoolCedar Primary SchoolSt Andrew’s Secondary SchoolStamford American International School SingaporeSt Andrew’s Junior SchoolGoh Medical ClinicParkson Medical Clinic & SurgeryDental ClinicThe Family PracticeNeo Medical CentreThe Poiz CentreThe Tre Ver ShowroomOng Aik SengFairPrice Potong Pasir Ave 2FairPrice The Poiz Centre Park Colonial is a condominium development that is made up of a total of 805 units of 15-storey high terraced house. There are 4 unit types available with various layouts that residents can browse through. The size for the unit ranges between 678 square feet to 1,658 square feet. The layouts for the units in Park Colonial aim to provide residents with homes that is comfortable for working adults, couples or families looking to own a spacious and manageable terraced house unit. The sale price for the units ranges between S$ 780,000 to S$ 3,018,000. Project Name: Park ColonialType: CondominiumDistrict: 13Configuration: 805 residential units Unit Types:2 bedrooms (678 sqft – 743 sqft)3 bedrooms (872 sqft – 1,087 sqft)4 bedrooms (1,249 sqft – 1,464 sqft)5 bedrooms (1,658 sqft) The following developments are projects developed by the same developer of Park Colonial:Grandeur Park ResidencesMy ManhattanNine Residences The following developments are in the same neighborhood as Park Colonial:The Tre VerThe Woodleigh ResidencesPark ColonialBartley RidgeThe Poiz ResidencesNin Residence
View project details
































