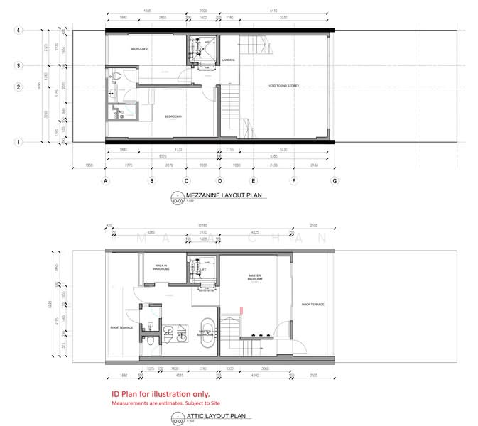
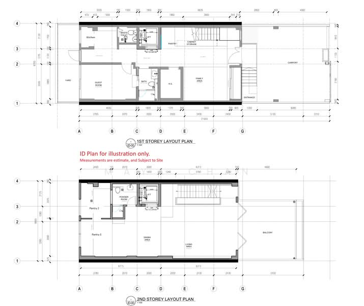
4 Houses for Sale - D Pr