504 Bedok North Street 3
504 Bedok North Street 3
S$ 350,000
Starting From2
Beds
1
Bath
635
sqft (floor)
S$ 551
psf (floor)
620 m (7 mins) from DT30 Bedok Reservoir MRT
About this property
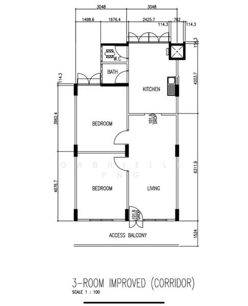
3 Room Improved for Sale at Prime Bedok North Location
Looking for a home that you can truly make your own? This mid-floor 3-room improved unit offers a fantastic functional layout in a highly sought-after mature estate. With no extension of stay required, you can begin your renovation journey immediately!
Unit Highlights:
Move-In Ready Timeline: No extension required, allowing for a smooth and fast completion.
Floor Level: Convenient mid-floor unit.
Condition: Renovation needed—the perfect blank canvas for buyers looking to design their dream home from scratch.
Functional Layout:
Generous Living Hall: Spanning approximately 6.3m in length, offering ample space for both lounge and dining areas.
Spacious Kitchen: A deep, 4.2m long kitchen area that can easily accommodate modern cabinetry and a laundry zone.
Sizeable Bedrooms: Both bedrooms feature a comfortable 3.1m width, suitable for queen or king-sized beds.
Internal Size: Approximately 59 sqm (635 sqft).
Location & Connectivity
MRT: Just a short walk to Bedok Reservoir MRT (DT30) at 526m and approximately 918m to Bedok MRT (EW5).
Bus Connectivity: Extremely accessible with bus stops only 97m away (Services 17, 17A, 45).
Amenities & Convenience
Education & Childcare:
Childcare: My First Skool is right at your doorstep (44m at Blk 503).
Primary Schools (Within 1km):
Yu Neng Primary School (237m).
Fengshan Primary School (243m).
Red Swastika School (323m).
St. Anthony's Canossian Primary School (978m).
Secondary Schools: Bedok Green Secondary (415m) and Damai Secondary (814m).
Shopping, Groceries & Dining
Supermarkets: Choice of U Stars Supermarket (151m), Giant (191m), or Sheng Siong (500m) for all your daily needs.
Hawker Centres: Minutes away from Blk 511 Bedok North St 3 (250m) and Blk 216 Bedok North St 1 (544m).
Malls: Close proximity to Djitsun Mall (720m), Bedok Point (787m), and Bedok Mall (868m).
Unit Highlights:
Move-In Ready Timeline: No extension required, allowing for a smooth and fast completion.
Floor Level: Convenient mid-floor unit.
Condition: Renovation needed—the perfect blank canvas for buyers looking to design their dream home from scratch.
Functional Layout:
Generous Living Hall: Spanning approximately 6.3m in length, offering ample space for both lounge and dining areas.
Spacious Kitchen: A deep, 4.2m long kitchen area that can easily accommodate modern cabinetry and a laundry zone.
Sizeable Bedrooms: Both bedrooms feature a comfortable 3.1m width, suitable for queen or king-sized beds.
Internal Size: Approximately 59 sqm (635 sqft).
Location & Connectivity
MRT: Just a short walk to Bedok Reservoir MRT (DT30) at 526m and approximately 918m to Bedok MRT (EW5).
Bus Connectivity: Extremely accessible with bus stops only 97m away (Services 17, 17A, 45).
Amenities & Convenience
Education & Childcare:
Childcare: My First Skool is right at your doorstep (44m at Blk 503).
Primary Schools (Within 1km):
Yu Neng Primary School (237m).
Fengshan Primary School (243m).
Red Swastika School (323m).
St. Anthony's Canossian Primary School (978m).
Secondary Schools: Bedok Green Secondary (415m) and Damai Secondary (814m).
Shopping, Groceries & Dining
Supermarkets: Choice of U Stars Supermarket (151m), Giant (191m), or Sheng Siong (500m) for all your daily needs.
Hawker Centres: Minutes away from Blk 511 Bedok North St 3 (250m) and Blk 216 Bedok North St 1 (544m).
Malls: Close proximity to Djitsun Mall (720m), Bedok Point (787m), and Bedok Mall (868m).
Affordability
Can I afford this property?
Tell us your monthly income and expenses to see if this home fits your budget.
Mortgage breakdown
Est. monthly repayment
S$ 0 / mo
S$ 0 Principal
S$ 0 Interest
Upfront costs
Total downpayment
S$ 0
Downpayment
S$ 0 Loan amount at 0% Loan-to-value
504 Bedok North Street 3

504 Bedok North Street 3
View project detailsFAQs
The sale price of this unit at 504 Bedok North Street 3 is S$ 350,000.
Current PSF at 504 Bedok North Street 3 is about S$ 551.18 psf.
The estimated loan repayment is S$ 1,085 / mo.
504 Bedok North Street 3 is located at 504 Bedok North Street 3 Bedok / Upper East Coast East Coast (D15-16).
Floor size of this unit at 504 Bedok North Street 3 is 635 sqft.
Explore other options in and around Bedok / Upper East Coast
Based on the property criteria, you might be interested on the following
HDB Flat For Sale
Show MoreNearest MRT Stations












