5 Delta Avenue
5 Delta Avenue
S$ 799,999
3
Beds
2
Baths
990
sqft
S$ 808.08
psf
950 m (11 mins) from TE16 Havelock MRT
1 km (12 mins) from EW17 Tiong Bahru MRT
About this property
Renovated Home with Greenery Views in a Convenient Location
CEA Registration: L3010858B / R043330Z
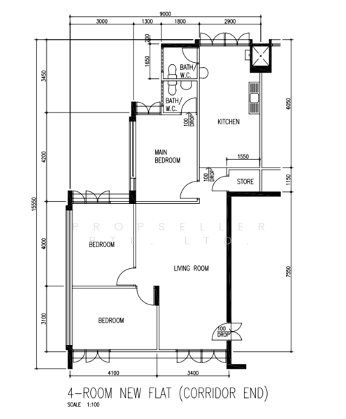
Well-renovated 4 room flat, 2-bathroom mid-floor corner unit offering a comfortable, practical layout. This corner unit provides a bright living space with serene landscape views. It welcomes natural morning light - ideal for families seeking a move-in ready home.
Conveniently located within walking distance to Havelock, Great World, and Tiong Bahru MRT stations, with a bus stop just 3 minutes away for easy connectivity. Daily essentials are at your doorstep with FairPrice a minute’s walk away and Valley Point Shopping Mall nearby, alongside Great World Retail Mall as a key lifestyle destination. Surrounded by other lifestyle spots like IKEA Alexandra and Robertson Quay, and within 1km to reputable schools such as Alexandra Primary and River Valley Primary.
Exclusive Propseller Listing!
Size:
- 990 sqft
- 3 bedrooms + 2 bathrooms
Attributes:
- EIP Quota: None
- Extension needed: None
- Unit orientation: Corner unit
- Middle floor unit
- Renovated condition
- Main door facing East
- Views from unit: Landscape
Convenience:
- 3 min walk to the nearest bus stop (bus services: 14, 32, 65, 139, 970)
- Within proximity Havelock MRT (TE16)
- Within proximity Great World MRT Station (TE15) & Great World Retail Mall
- Within proximity to Tiong Bahru MRT Station (EW17)
- 5 bus stops to IKEA Alexandra
- 3 bus stops to Robertson Quay
- 1 min walk to Fairprice Supermarket
- 4 min walk to Valley Point Shopping Mall
- Primary schools within 1km: Alexandra Primary School, River Valley Primary School, Zhangde Primary School
- Primary schools between 1-2km: CHIJ (Kellock), Gan Eng Seng Primary School, Radin Mas Primary School
Disclaimer: Some pictures may be virtually decluttered or staged to showcase the maximum potential of the property.
Well-renovated 4 room flat, 2-bathroom mid-floor corner unit offering a comfortable, practical layout. This corner unit provides a bright living space with serene landscape views. It welcomes natural morning light - ideal for families seeking a move-in ready home.
Conveniently located within walking distance to Havelock, Great World, and Tiong Bahru MRT stations, with a bus stop just 3 minutes away for easy connectivity. Daily essentials are at your doorstep with FairPrice a minute’s walk away and Valley Point Shopping Mall nearby, alongside Great World Retail Mall as a key lifestyle destination. Surrounded by other lifestyle spots like IKEA Alexandra and Robertson Quay, and within 1km to reputable schools such as Alexandra Primary and River Valley Primary.
Exclusive Propseller Listing!
Size:
- 990 sqft
- 3 bedrooms + 2 bathrooms
Attributes:
- EIP Quota: None
- Extension needed: None
- Unit orientation: Corner unit
- Middle floor unit
- Renovated condition
- Main door facing East
- Views from unit: Landscape
Convenience:
- 3 min walk to the nearest bus stop (bus services: 14, 32, 65, 139, 970)
- Within proximity Havelock MRT (TE16)
- Within proximity Great World MRT Station (TE15) & Great World Retail Mall
- Within proximity to Tiong Bahru MRT Station (EW17)
- 5 bus stops to IKEA Alexandra
- 3 bus stops to Robertson Quay
- 1 min walk to Fairprice Supermarket
- 4 min walk to Valley Point Shopping Mall
- Primary schools within 1km: Alexandra Primary School, River Valley Primary School, Zhangde Primary School
- Primary schools between 1-2km: CHIJ (Kellock), Gan Eng Seng Primary School, Radin Mas Primary School
Disclaimer: Some pictures may be virtually decluttered or staged to showcase the maximum potential of the property.
Affordability
Can I afford this property?
Tell us your monthly income and expenses to see if this home fits your budget.
Mortgage breakdown
Est. monthly repayment
S$ 0 / mo
S$ 0 Principal
S$ 0 Interest
Upfront costs
Total downpayment
S$ 0
Downpayment
S$ 0 Loan amount at 0% Loan-to-value
5 Delta Avenue

5 Delta Avenue
View project detailsFAQs
The sale price of this unit at 5 Delta Avenue is S$ 799,999.
Current PSF at 5 Delta Avenue is about S$ 808.08 psf.
The estimated loan repayment is S$ 2,386 / mo.
5 Delta Avenue is located at 5 Delta Avenue Alexandra / Commonwealth City & South West (D01-08).
Floor size of this unit at 5 Delta Avenue is 990 sqft.
Explore other options in and around Alexandra / Commonwealth
Based on the property criteria, you might be interested on the following
Nearest MRT Stations





















