430 Clementi Avenue 3
430 Clementi Avenue 3
S$ 498,000
2
Beds
2
Baths
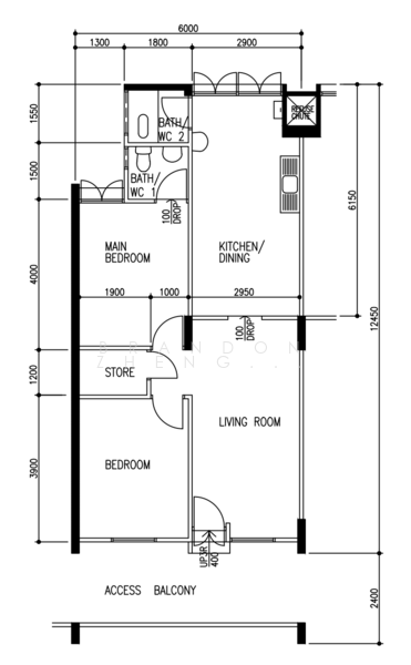
721
sqft (floor)
S$ 691
psf (floor)
550 m (7 mins) from EW23 Clementi MRT
About this property
Prime 3-room Flat in Clementi, Walk to MRT and Top Schools
Welcome to this bright and spacious 3-room HDB flat at 430 Clementi Ave 3—a sought-after address in the mature Clementi town. Built in 1979, this unit offers a comfortable layout ideal for families or couples, combining convenience with strong investment potential.
Features:
• Well-maintained interior with natural lighting and ventilation
• Low floor
• Excellent connectivity: 4-minute walk to Clementi MRT (EW23/CR17)
Nearby amenities (within ~500m)
• Clementi MRT Station (EW23/CR17)
• The Clementi Mall / integrated bus interchange / public library / post office
• 321 Clementi, Grantral Mall
• NTUC FairPrice / FairPrice Finest / Sheng Siong supermarkets
• Clementi 448 Market & Hawker Centre
• Clementi ActiveSG Stadium, Sports Hall, Swimming Complex
• Clementi Woods Park
• Ayer Rajah Market & Food Centre
Bus services:
• Feeder service 282
• 7, 7B, 96, 99, 147, 156, 166, 173, 175, 196, 284, 285
Schools:
Within 1km
• Clementi Primary School
• Qifa Primary School
• Pei Tong Primary School
• Clementi Town Secondary School
• Tanglin Secondary School
• Nan Hua High School
• Nan Hua Primary School
1km - 2km Radius
• New Town Secondary School
• School of Science and Technology, Singapore
• Kent Ridge Secondary School
• Commonwealth Secondary School
• The Japanese School, Singapore
• Grace Orchard School
Why You'll Love This Home
• Strategic Location: In the heart of Clementi Town Centre, enjoy convenience and connectivity with MRT, buses and integrated town hub.
• Family Appeal: With strong school options—including reputable ones like Nan Hua High School and Clementi Town Secondary School—this is ideal for families.
• Mature Estate, Modern Living: A well-established town boasting diverse amenities, green spaces and excellent transport.
This is more than just a flat; it's a lifestyle hub offering comfort, efficiency and community at every turn. Contact me to book a viewing..!
CONTACT TO VIEW
9*****
Brandon Zheng ERA
Features:
• Well-maintained interior with natural lighting and ventilation
• Low floor
• Excellent connectivity: 4-minute walk to Clementi MRT (EW23/CR17)
Nearby amenities (within ~500m)
• Clementi MRT Station (EW23/CR17)
• The Clementi Mall / integrated bus interchange / public library / post office
• 321 Clementi, Grantral Mall
• NTUC FairPrice / FairPrice Finest / Sheng Siong supermarkets
• Clementi 448 Market & Hawker Centre
• Clementi ActiveSG Stadium, Sports Hall, Swimming Complex
• Clementi Woods Park
• Ayer Rajah Market & Food Centre
Bus services:
• Feeder service 282
• 7, 7B, 96, 99, 147, 156, 166, 173, 175, 196, 284, 285
Schools:
Within 1km
• Clementi Primary School
• Qifa Primary School
• Pei Tong Primary School
• Clementi Town Secondary School
• Tanglin Secondary School
• Nan Hua High School
• Nan Hua Primary School
1km - 2km Radius
• New Town Secondary School
• School of Science and Technology, Singapore
• Kent Ridge Secondary School
• Commonwealth Secondary School
• The Japanese School, Singapore
• Grace Orchard School
Why You'll Love This Home
• Strategic Location: In the heart of Clementi Town Centre, enjoy convenience and connectivity with MRT, buses and integrated town hub.
• Family Appeal: With strong school options—including reputable ones like Nan Hua High School and Clementi Town Secondary School—this is ideal for families.
• Mature Estate, Modern Living: A well-established town boasting diverse amenities, green spaces and excellent transport.
This is more than just a flat; it's a lifestyle hub offering comfort, efficiency and community at every turn. Contact me to book a viewing..!
CONTACT TO VIEW
9*****
Brandon Zheng ERA
Amenities
Cooker hob/hood
Renovated
Water heater
Affordability
Can I afford this property?
Tell us your monthly income and expenses to see if this home fits your budget.
Mortgage breakdown
Est. monthly repayment
S$ 0 / mo
S$ 0 Principal
S$ 0 Interest
Upfront costs
Total downpayment
S$ 0
Downpayment
S$ 0 Loan amount at 0% Loan-to-value
430 Clementi Avenue 3

430 Clementi Avenue 3
View project detailsFAQs
The sale price of this unit at 430 Clementi Avenue 3 is S$ 498,000.
Current PSF at 430 Clementi Avenue 3 is about S$ 690.71 psf.
The estimated loan repayment is S$ 1,544 / mo.
430 Clementi Avenue 3 is located at 430 Clementi Avenue 3 Buona Vista / West Coast / Clementi New Town City & South West (D01-08).
Floor size of this unit at 430 Clementi Avenue 3 is 721 sqft.
Explore other options in and around Buona Vista / West Coast / Clementi New Town
Based on the property criteria, you might be interested on the following
HDB Flat For Sale
Show MoreNearest MRT Stations


















