226A Sumang Lane
226A Sumang Lane
S$ 810,000
Negotiable3
Beds
2
Baths
1,227
sqft
S$ 660
psf
670 m (8 mins) from PW7 Soo Teck LRT
About this property
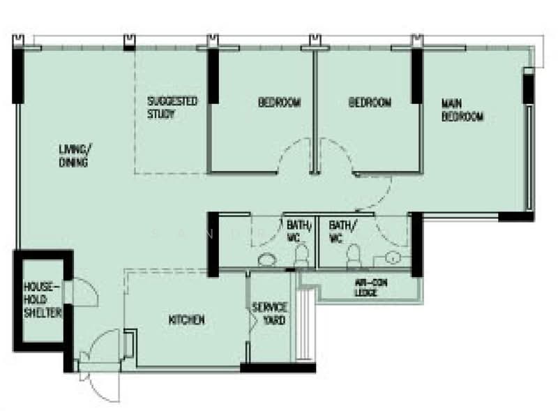
Corner Unit, Perfect for Upgraders and Multi-Generational Living
Beautifully configured 114 sqm 5-room Premium Apartment home
- Corner unit for privacy
- Offers exceptional space and flexibility
- Thoughtful layout and lifestyle-ready features
- Functional living area with a designated study zone, which can be enclosed for a study room or home office
- Clever interior design combining master bedroom and a common bedroom, resulting in a grand master suite complete with an enclosable dedicated home office
- Immaculate condition, ready to move in
- Located on a comfortable mid-floor
- Enjoys a serene inner garden facing, good distance from neighboring blocks
- Peaceful and quiet environment
- Directly connected to 2 levels of basement carpark
- Centrally located with amenities at your doorstep
- Two 24-hour Sheng Siong supermarkets in the vicinity
- Amenities, eateries, and retail options in the surrounding
- Close to 30 pre-schools and childcare centres with E-Bridge Pre-school just downstairs
* Primary Schools within 1 km:
* Punggol Green Primary School
* Valour Primary School
* Springdale Primary School
- Served by multiple bus services and Soo Teck LRT station (548m)
- Easy access to major expressways like TPE and KPE
- Priced to sell
Rare opportunity to own a well-designed, spacious home in a highly convenient and family-friendly location.
No ethnic quota. All races eligible.
Contact Sandra @ 8.3.8.3.6.3.8.3 to secure a viewing slot now.
- Corner unit for privacy
- Offers exceptional space and flexibility
- Thoughtful layout and lifestyle-ready features
- Functional living area with a designated study zone, which can be enclosed for a study room or home office
- Clever interior design combining master bedroom and a common bedroom, resulting in a grand master suite complete with an enclosable dedicated home office
- Immaculate condition, ready to move in
- Located on a comfortable mid-floor
- Enjoys a serene inner garden facing, good distance from neighboring blocks
- Peaceful and quiet environment
- Directly connected to 2 levels of basement carpark
- Centrally located with amenities at your doorstep
- Two 24-hour Sheng Siong supermarkets in the vicinity
- Amenities, eateries, and retail options in the surrounding
- Close to 30 pre-schools and childcare centres with E-Bridge Pre-school just downstairs
* Primary Schools within 1 km:
* Punggol Green Primary School
* Valour Primary School
* Springdale Primary School
- Served by multiple bus services and Soo Teck LRT station (548m)
- Easy access to major expressways like TPE and KPE
- Priced to sell
Rare opportunity to own a well-designed, spacious home in a highly convenient and family-friendly location.
No ethnic quota. All races eligible.
Contact Sandra @ 8.3.8.3.6.3.8.3 to secure a viewing slot now.
Amenities
Air conditioner
Bedroom cabinets
Modern kitchen furnishing
Water heater
Common facilities
24 hours security
Children's playground
Covered car park
Fitness corner
Affordability
Can I afford this property?
Tell us your monthly income and expenses to see if this home fits your budget.
Mortgage breakdown
Est. monthly repayment
S$ 0 / mo
S$ 0 Principal
S$ 0 Interest
Upfront costs
Total downpayment
S$ 0
Downpayment
S$ 0 Loan amount at 0% Loan-to-value
226A Sumang Lane
226A HDB The Verandah @ Matilda
View project detailsFAQs
The sale price of this unit at 226A Sumang Lane is S$ 810,000.
Current PSF at 226A Sumang Lane is about S$ 660.15 psf.
The estimated loan repayment is S$ 2,416 / mo.
226A Sumang Lane is located at 226A Sumang Lane Hougang / Punggol / Sengkang Serangoon / Thomson (D19-20).
Floor size of this unit at 226A Sumang Lane is 1,227 sqft.
Explore other options in and around Hougang / Punggol / Sengkang
Based on the property criteria, you might be interested on the following
Nearest MRT Stations










