2 Bedok South Avenue 1
2 Bedok South Avenue 1
S$ 388,000
Starting From2
Beds
1
Bath
700
sqft (floor)
S$ 554
psf (floor)
630 m (8 mins) from EW5 Bedok MRT
About this property
HDB 3-room Flat, Mid Floor, N S Orientation, Fully Renovated
===============
HDB 3-room Flat, Mid Floor, NS Orientation, Fully Renovated, Walk to MRT and Mall, Serious Seller
---
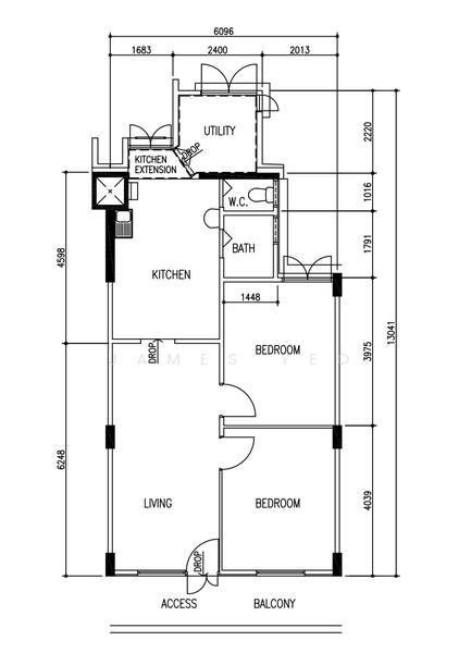
• TOP 1976
• 2 Bed + Utility Room (700 sqft)
• Walk to MRT and Mall
• North South Orientation
• Fully Renovated
• Move-In Condition
• Well-Maintained
• Gated Lift Lobby
• Mid Floor
• Bright and Windy
• Regular layout
• No odd shape
• Main door faces North
• No Extension Required
This unit features a simple, open, and airy layout, offering a comfortable home filled with possibilities. Imagine coming back every day to a warm and welcoming space, while enjoying the convenience of a well-connected neighbourhood. Just nearby at Block 16, you’ll find a wet market and hawker centre where you can easily shop for fresh ingredients and enjoy a wide variety of local delights. Transportation is extremely convenient. Bedok MRT station is only about 400 metres away, just a 5-minute walk. Bedok Central offers everything you need — Bedok Mall, with over 200 retail outlets, is only a 6-minute walk away, making shopping effortless. Heartbeat @ Bedok is the ideal hub for your lifestyle and community needs. Whether it’s working out, borrowing books, or medical services, everything is available here. It’s just a 3-minute walk to Bedok Hawker Centre, home to around 70 stalls serving a wide variety of local favourites. Families with children will love this location. Bedok Green Primary School is nearby, along with Temasek Primary School, Secondary School, and Junior College, making school commutes easy and convenient. The area is also well connected to major roads and expressways, allowing you to travel anywhere with ease.
=====
We help owners sell their HDB @$1999, Condo @$4999 & Landed @$9,999 fixed commission
=====
HDB 3-room Flat, Mid Floor, NS Orientation, Fully Renovated, Walk to MRT and Mall, Serious Seller
---
• TOP 1976
• 2 Bed + Utility Room (700 sqft)
• Walk to MRT and Mall
• North South Orientation
• Fully Renovated
• Move-In Condition
• Well-Maintained
• Gated Lift Lobby
• Mid Floor
• Bright and Windy
• Regular layout
• No odd shape
• Main door faces North
• No Extension Required
This unit features a simple, open, and airy layout, offering a comfortable home filled with possibilities. Imagine coming back every day to a warm and welcoming space, while enjoying the convenience of a well-connected neighbourhood. Just nearby at Block 16, you’ll find a wet market and hawker centre where you can easily shop for fresh ingredients and enjoy a wide variety of local delights. Transportation is extremely convenient. Bedok MRT station is only about 400 metres away, just a 5-minute walk. Bedok Central offers everything you need — Bedok Mall, with over 200 retail outlets, is only a 6-minute walk away, making shopping effortless. Heartbeat @ Bedok is the ideal hub for your lifestyle and community needs. Whether it’s working out, borrowing books, or medical services, everything is available here. It’s just a 3-minute walk to Bedok Hawker Centre, home to around 70 stalls serving a wide variety of local favourites. Families with children will love this location. Bedok Green Primary School is nearby, along with Temasek Primary School, Secondary School, and Junior College, making school commutes easy and convenient. The area is also well connected to major roads and expressways, allowing you to travel anywhere with ease.
=====
We help owners sell their HDB @$1999, Condo @$4999 & Landed @$9,999 fixed commission
=====
Amenities
Air conditioner
Affordability
Can I afford this property?
Tell us your monthly income and expenses to see if this home fits your budget.
Mortgage breakdown
Est. monthly repayment
S$ 0 / mo
S$ 0 Principal
S$ 0 Interest
Upfront costs
Total downpayment
S$ 0
Downpayment
S$ 0 Loan amount at 0% Loan-to-value
2 Bedok South Avenue 1

2 Bedok South Avenue 1
View project detailsFAQs
The sale price of this unit at 2 Bedok South Avenue 1 is S$ 388,000.
Current PSF at 2 Bedok South Avenue 1 is about S$ 554.29 psf.
The estimated loan repayment is S$ 1,203 / mo.
2 Bedok South Avenue 1 is located at 2 Bedok South Avenue 1 Bedok / Upper East Coast East Coast (D15-16).
Floor size of this unit at 2 Bedok South Avenue 1 is 700 sqft.
Explore other options in and around Bedok / Upper East Coast
Based on the property criteria, you might be interested on the following
HDB Flat For Sale
Show MoreNearest MRT Stations













