184A Marsiling Greenview
184A Woodlands Street 13
S$ 708,888
3
Beds
2
Baths
1,001
sqft (floor)
S$ 708
psf (floor)
690 m (8 mins) from NS8 Marsiling MRT
About this property
Well Maintained 4 room HDB corner unit in move in condition!
Must View ! One of the newest 4 room HDB in Woodlands !
Chinese & Indian Eligible
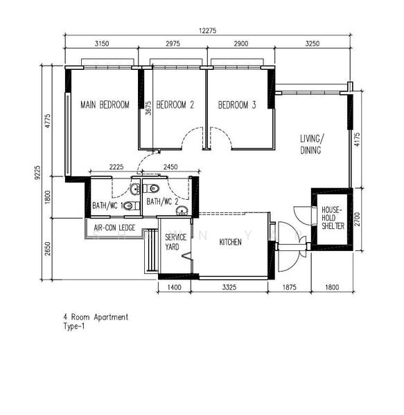
This 4-room corner flat at 184A Woodlands Street 13 offers a rare opportunity to own a spacious home in Marsiling Greenview area. With excellent connectivity, a wide array of nearby amenities, and future growth potential in the Woodlands region, this unit provides an ideal home for families seeking a comfortable and well-connected living space.
Well-sized Living Area: The 1,001 sq ft floor area offers ample space for living, dining, and entertainment, making it an ideal setting for a growing family.
Modern Interior Design: The flat features clean, contemporary finishes that allow for personalization. The living spaces are bathed in natural light thanks to large windows that provide unobstructed views of the surrounding neighborhood.
Fully Fitted Kitchen: A well-equipped kitchen with plenty of storage space, ideal for family meal preparation. It includes modern fittings and a good-sized countertop for culinary tasks.
Spacious Bedrooms: The flat consists of three bedrooms, all of which are well-sized and designed for comfort and privacy. The master bedroom has space for a king-sized bed and additional furniture.
Well-maintained Bathrooms: The bathrooms are modern with well-designed tiling and fixtures that ensure both comfort and convenience.
Service Yard: For added convenience, the unit comes with a service yard for laundry and storage needs.
No West Sun: All bedrooms and living rooms are facing North, with the main door facing out South.
Primary Schools within 1 Kilometre
- Fuchun Primary
- Marsiling Primary
- Si Ling Primary School
Transport
- 2 mins walk to Bus stop
- 8 mins walk to Marsiling MRT
- 2 bus stops to Woodlands MRT and Causeway Point
- 4 bus stops to Woodlands Checkpoint
Amenities
- Woodlands Swimming Complex , Sports Hall and Stadium
- Marsiling Mall & Wet market
- Causeway Point
- Nature parks (Marsiling Park, Admiralty Park, Woodlands Town Park East).
Chinese & Indian Eligible
This 4-room corner flat at 184A Woodlands Street 13 offers a rare opportunity to own a spacious home in Marsiling Greenview area. With excellent connectivity, a wide array of nearby amenities, and future growth potential in the Woodlands region, this unit provides an ideal home for families seeking a comfortable and well-connected living space.
Well-sized Living Area: The 1,001 sq ft floor area offers ample space for living, dining, and entertainment, making it an ideal setting for a growing family.
Modern Interior Design: The flat features clean, contemporary finishes that allow for personalization. The living spaces are bathed in natural light thanks to large windows that provide unobstructed views of the surrounding neighborhood.
Fully Fitted Kitchen: A well-equipped kitchen with plenty of storage space, ideal for family meal preparation. It includes modern fittings and a good-sized countertop for culinary tasks.
Spacious Bedrooms: The flat consists of three bedrooms, all of which are well-sized and designed for comfort and privacy. The master bedroom has space for a king-sized bed and additional furniture.
Well-maintained Bathrooms: The bathrooms are modern with well-designed tiling and fixtures that ensure both comfort and convenience.
Service Yard: For added convenience, the unit comes with a service yard for laundry and storage needs.
No West Sun: All bedrooms and living rooms are facing North, with the main door facing out South.
Primary Schools within 1 Kilometre
- Fuchun Primary
- Marsiling Primary
- Si Ling Primary School
Transport
- 2 mins walk to Bus stop
- 8 mins walk to Marsiling MRT
- 2 bus stops to Woodlands MRT and Causeway Point
- 4 bus stops to Woodlands Checkpoint
Amenities
- Woodlands Swimming Complex , Sports Hall and Stadium
- Marsiling Mall & Wet market
- Causeway Point
- Nature parks (Marsiling Park, Admiralty Park, Woodlands Town Park East).
Amenities
Air-conditioning
Cooker hob/hood
Common facilities
Adult fitness stations
Car park
Community garden
Eateries
Affordability
Can I afford this property?
Tell us your monthly income and expenses to see if this home fits your budget.
Mortgage breakdown
Est. monthly repayment
S$ 0 / mo
S$ 0 Principal
S$ 0 Interest
Upfront costs
Total downpayment
S$ 0
Downpayment
S$ 0 Loan amount at 0% Loan-to-value
184A Marsiling Greenview
FAQs
The sale price of this unit at 184A Marsiling Greenview is S$ 708,888.
Current PSF at 184A Marsiling Greenview is about S$ 708.18 psf.
The estimated loan repayment is S$ 2,114 / mo.
184A Marsiling Greenview is located at 184A Woodlands Street 13 Admiralty / Woodlands North (D25-28).
Floor size of this unit at 184A Marsiling Greenview is 1,001 sqft.
Explore other options in and around Admiralty / Woodlands
Based on the property criteria, you might be interested on the following
HDB Flat For Sale
Show MoreNearest MRT Stations