108 Serangoon North Avenue 1
108 Serangoon North Avenue 1
S$ 440,000
Starting From2
Beds
2
Baths
743
sqft
S$ 592
psf
560 m (7 mins) from CR9 Serangoon North MRT
About this property
Renovated Corner Home with Privacy & Convenience
CEA Registration: L3010858B / R011561H
Enjoy the privacy of this unit at 108 Serangoon North Avenue 1, thoughtfully renovated and move-in ready. This home features 2 well-sized bedrooms that comfortably fit double beds, paired with 2 bathrooms for added convenience. With a breezy layout, west-facing main door, and open street views, this home offers both comfort and natural light—ideal for small families or couples seeking a peaceful yet connected lifestyle.
Daily essentials are just steps away—only 2 minutes to FairPrice, 3 minutes to the nearest bus stop, and a short stroll to Serangoon North Village and nearby eateries. Well-connected to Kovan MRT and surrounded by reputable schools like Rosyth School, this location brings together convenience and accessibility. No extension needed—perfect for a smooth and hassle-free transition into your new home.
Exclusive Propseller Listing!
Size:
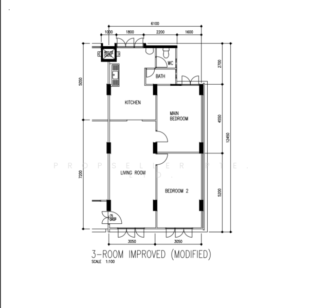
- 743sqft.
- 2 bedrooms + 2 bathrooms
Attributes:
- EIP Quota: None not eligible
- Extension needed: None
- Unit orientation: Corner unit
- High floor unit
- Renovated condition
- Main door facing West
- Views from unit: Street
Convenience:
- 3 min walk to the nearest bus stop (bus services: 25, 55, 73, 74)
- 2 min walk to Fairprice supermarket
- Within proximity to Serangoon North Village shopping mall
- 6 min walk to the nearest eateries
- Within proximity to Kovan MRT Station (NE13)
- Primary schools within 1km: Rosyth School
- Primary schools between 1-2km: CHIJ Our Lady of Good Counsel, Hougang Primary School, Xinmin Primary School, Yio Chu Kang Primary School
Disclaimer: Some pictures may be virtually decluttered or staged to showcase the maximum potential of the property.
Enjoy the privacy of this unit at 108 Serangoon North Avenue 1, thoughtfully renovated and move-in ready. This home features 2 well-sized bedrooms that comfortably fit double beds, paired with 2 bathrooms for added convenience. With a breezy layout, west-facing main door, and open street views, this home offers both comfort and natural light—ideal for small families or couples seeking a peaceful yet connected lifestyle.
Daily essentials are just steps away—only 2 minutes to FairPrice, 3 minutes to the nearest bus stop, and a short stroll to Serangoon North Village and nearby eateries. Well-connected to Kovan MRT and surrounded by reputable schools like Rosyth School, this location brings together convenience and accessibility. No extension needed—perfect for a smooth and hassle-free transition into your new home.
Exclusive Propseller Listing!
Size:
- 743sqft.
- 2 bedrooms + 2 bathrooms
Attributes:
- EIP Quota: None not eligible
- Extension needed: None
- Unit orientation: Corner unit
- High floor unit
- Renovated condition
- Main door facing West
- Views from unit: Street
Convenience:
- 3 min walk to the nearest bus stop (bus services: 25, 55, 73, 74)
- 2 min walk to Fairprice supermarket
- Within proximity to Serangoon North Village shopping mall
- 6 min walk to the nearest eateries
- Within proximity to Kovan MRT Station (NE13)
- Primary schools within 1km: Rosyth School
- Primary schools between 1-2km: CHIJ Our Lady of Good Counsel, Hougang Primary School, Xinmin Primary School, Yio Chu Kang Primary School
Disclaimer: Some pictures may be virtually decluttered or staged to showcase the maximum potential of the property.
Affordability
Can I afford this property?
Tell us your monthly income and expenses to see if this home fits your budget.
Mortgage breakdown
Est. monthly repayment
S$ 0 / mo
S$ 0 Principal
S$ 0 Interest
Upfront costs
Total downpayment
S$ 0
Downpayment
S$ 0 Loan amount at 0% Loan-to-value
108 Serangoon North Avenue 1

108 Serangoon North Avenue 1
View project detailsFAQs
The sale price of this unit at 108 Serangoon North Avenue 1 is S$ 440,000.
Current PSF at 108 Serangoon North Avenue 1 is about S$ 592.19 psf.
The estimated loan repayment is S$ 1,364 / mo.
108 Serangoon North Avenue 1 is located at 108 Serangoon North Avenue 1 Hougang / Punggol / Sengkang Serangoon / Thomson (D19-20).
Floor size of this unit at 108 Serangoon North Avenue 1 is 743 sqft.
Explore other options in and around Hougang / Punggol / Sengkang
Based on the property criteria, you might be interested on the following
HDB Flat For Sale
Show MoreNearest MRT Stations



















