109 Ang Mo Kio Avenue 4
109 Ang Mo Kio Avenue 4
S$ 3,600 /mo
Negotiable3
Beds
2
Baths
990
sqft
450 m (5 mins) from TE6 Mayflower MRT
Ready to move in HDB Flat
About this property
High Floor. Bright 4-room. Ang Mo Kio Ave 4. Near Mayflower MRT
This rental unit is advertising on behalf of Jessica Sim 8.6.9.2.4.6.2.7
Looking for a comfortable and well-maintained home in a convenient location?
This high-floor 4-room unit at Blk 109 Ang Mo Kio Ave 4 could be a great fit.
Unit Highlights:
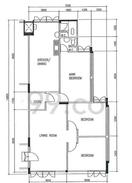
> Approx. 990 sqft – spacious and functional layout
> High floor – good natural light & ventilation
> Bright and airy throughout the day
> Well-kept condition – move-in ready
Excellent Location:
> Walking distance to Mayflower MRT (Thomson-East Coast Line)
> Near Ang Mo Kio Hub, Broadway Plaza, and AMK Central
> Close to supermarkets, coffee shops, eateries & daily amenities
> Easy access to parks and neighborhoods facilities
Can move-in immediately if timeline match.
Ideal for tenants who value space, brightness, and accessibility in a mature estate.
If you’re exploring units in Ang Mo Kio and would like to view or see if this suits your needs, feel free to reach out. Happy to arrange a viewing at your convenience.
Contact Jessica Sim at 8.6.9.2.4.6.2.7 for further discussion.
Looking for a comfortable and well-maintained home in a convenient location?
This high-floor 4-room unit at Blk 109 Ang Mo Kio Ave 4 could be a great fit.
Unit Highlights:
> Approx. 990 sqft – spacious and functional layout
> High floor – good natural light & ventilation
> Bright and airy throughout the day
> Well-kept condition – move-in ready
Excellent Location:
> Walking distance to Mayflower MRT (Thomson-East Coast Line)
> Near Ang Mo Kio Hub, Broadway Plaza, and AMK Central
> Close to supermarkets, coffee shops, eateries & daily amenities
> Easy access to parks and neighborhoods facilities
Can move-in immediately if timeline match.
Ideal for tenants who value space, brightness, and accessibility in a mature estate.
If you’re exploring units in Ang Mo Kio and would like to view or see if this suits your needs, feel free to reach out. Happy to arrange a viewing at your convenience.
Contact Jessica Sim at 8.6.9.2.4.6.2.7 for further discussion.
Amenities
Basic lights
Bed
Cabinets
Coffee table
109 Ang Mo Kio Avenue 4

109 Ang Mo Kio Avenue 4
View project detailsFAQs
There are 3 bedroom(s) with 2 bathroom(s) in this unit.
The rent of this unit at 109 Ang Mo Kio Avenue 4 is about S$ 3,600 /mo.
The current rental PSF at 109 Ang Mo Kio Avenue 4 is about S$ 3.64 psf.
109 Ang Mo Kio Avenue 4 is located at 109 Ang Mo Kio Avenue 4 Ang Mo Kio / Bishan / Thomson Serangoon / Thomson (D19-20).
Floor size of this unit at 109 Ang Mo Kio Avenue 4 is 990 sqft.
Explore other options in and around Ang Mo Kio / Bishan / Thomson
Based on the property criteria, you might be interested on the following
HDB Flat For Rent
Show MoreNearest MRT Stations





















