The Reserve Residences
9 Jalan Anak Bukit
S$ 1,850,000
2
Beds
2
Baths
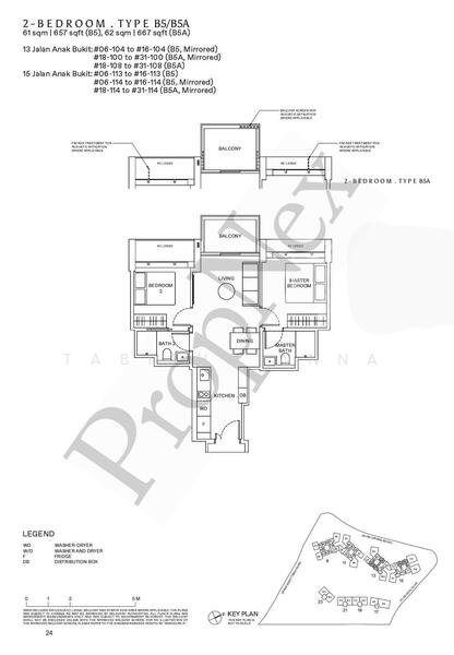
657
sqft (floor)
S$ 2,816
psf (floor)
380 m (5 mins) from DT5 Beauty World MRT
About this property
Genuine subsale! Attractively priced 2 Bed 2 Bath for sale!
Key Unit Details:
- Exercise Date to be after 16th June 2026
- Long Option, Late Exercise available
- Efficient Layout
- Blk 13 (external facing)
- Main Door Southeast Facing
- Full Condo Facilities
- Within 1KM to Pei Hwa Presbyterian Pri
- Within 2KM to Methodist Girls’ School and Bukit Timah Pri
- Integrated
Amenities
Air conditioner
Balcony
Bedroom cabinets
Cabinets
Common facilities
24 hours security
Adult fitness stations
Adventure park
Aircon facilities
Affordability
Tell us your monthly income and expenses to see if this home fits your budget.
The Reserve Residences

The Reserve Residences is a 99-year leasehold integrated mixed-use development located in Jalan Anak Bukit in District 21 (D21). The Reserve Residences is an integrated mixed-use development slated for completion in 2028. It is connected to a three-story Bukit V mall. Bukit V mall will bring residents the convenience of having retail, dining, and service options right at their doorstep. Supermarket CS Fresh is an anchor tenant, along with a proposed childcare centre, enrichment centres, and medical services. The Reserve Residences also prides itself on being the first mixed-use integrated development with a transport hub in Bukit Timah. The integrated transport hub will consist of a bus interchange linked directly by underground access to Beauty World MRT station (DT5) on the Downtown Line (DTL). With the Beauty World MRT station (DT5) on the DTL close to home, residents will get to enjoy highly convenient connections to popular locations such as Botanic Gardens MRT station (CC19/ DT9) and One-North MRT station (CC23). The DTL offers commuters alternative routes into the Central Business District (CBD), Marina Bay, City Hall, and various parts of Bukit Timah, thereby reducing residents' travelling time by up to 30%. A one station ride to King Albert Park station (DT6/CR15) will also give residents access to the upcoming Cross Island Line (CRL). As Singapore's longest fully underground line, the CRL will run through the east, west, and north-eastern corridors to connect key employment hubs such as Jurong Lake District, Punggol Digital District, and Changi. Further complementing the direct access to Beauty World MRT station, an integrated air-conditioned bus interchange will provide residents with more transport options. Drivers enjoy enhanced accessibility due to the close proximity to the Pan-Island Expressway (PIE), Bukit Timah Expressway (BKE), and Kranji Expressway (KJE). A short drive will also take residents to more parks and heritage trails, such as Singapore’s first UNESCO World Heritage site, the Singapore Botanic Gardens, the Former Ford Factory, and Dairy Farm Nature Park. Zen decks Tembusu Living Room Family Pool Kids’ Pool Play Pool Spa Pool 50m Lap Pool Aqua Gym With Spa 600m Jogging Trail Dog Run Cabanas 3 Function Rooms Gym Sky Lawns Dining Pavilions With BBQ Pits Work Pods 2 Community Gardens 3 Outdoor Fitness Areas Aqua Cove Adventure Playground Kids’ Play Corner Sky Decks Tennis Court Anglo-Chinese School (Independent) Bukit Timah Primary School Hwa CHong Institution Methodist Girls’ School (Primary) (within a 1km radius) Methodist Girls’ School (Secondary) Ngee Ann Polytechnic Pei Hwa Presbyterian Primary School (within a 1km radius) Raffles Girls’ Primary School Nanyang Girls’ High School Hwa Chong Institution For families with older children, tertiary educational institutions such as the National Junior College, the National University of Singapore, and the Singapore University of Social Sciences (SUSS) are a short drive away. For expatriate families, international schools such as Chatsworth International School, Singapore International Korean School, Holland International School, Swiss School, and Middleton International School are near The Reserve Residences. Nearby healthcare facilities include: Chang Clinic Tay Dental Surgery Dorothy’s Baby and Child Clinic Douglas Ong Clinic for Women Chungkiaw Clinic Pte. Ltd. Lim Clinic & Surgery for Women K&K Dental Surgery Nam Seng Clinic Pte. Ltd Sitting above the adjoining 20,000sqm Bukit V mall, the condo offers residents unrivalled convenience to dining and community spaces and retail options. Bukit V spots supermarket chain CS Fresh as an anchor tenant and caters to all ages by offering shoppers extensive dining and retail options and important services such as childcare, clinics, and enrichment centres. For those looking to explore the neighbourhood, the Bukit Timah Market & Food Centre, Beauty World Centre, Beauty World Plaza, Bukit Timah Plaza, and Bukit Timah Shopping Centre are within walking distance. Those looking for more affordable dining options and/or late-night supper spots can explore the many eateries along Cheong Chin Nam Road, Lorong Kilat, and Jalan Jurong Kechil. The Bukit Timah Market and Food Centre, 7th Mile Coffee Shop, and Delicious Eating House in the Toh Yi HDB estate are also just across the development. The condo is a joint venture between Far East Organisation and Sino Group. Established in 1960, Far East Organization is the largest private property developer in Singapore. It has developed more than 780 projects across all segments of real estate, including 55,000 private homes. Notable projects under its charge include EuHabitat, Floridian, The Nexus, Seasons View, and Glendale Park Condominium. Sino Group, a Hong Kong-based sister company to Far East Organisation, is one of Hong Kong’s leading property developers established in 1971. On top of its diversified portfolio comprising residential, office, industrial, retail, and hospitality projects in Hong Kong, Sino Group also has an established presence in China, Singapore, and Australia with 250 projects and a team with over 11,000 strength across Asia Pacific The Reserve Residences has been available for viewing since May 2023. Potential buyers can contact the official development team or listed agents to book a showflat viewing and learn more about floor plans. Sitting on a site area of 32,185 sqm, The Reserve Residences houses 732 residential units across eight blocks of up to 33 floors. As a mixed-use development, the project also holds 160 serviced residences as well as 20,000sqm of retail, dining and office spaces. As the tower blocks are strategically positioned on high ground, residents get offered unblocked panoramic views of Bukit Timah Hill. Thoughtfully designed by WOHA Architects, residential units feature a wide array of unit types and configurations, which can include a study room, flexi space, and private lifts under the following four collections - The Reserve Residences, Creekside, Horizon and Treetops: The Reserve Residences (502 units of 1 to 3-bedroom configurations) are located in the development's main residential towers, with units on the highest floor. Horizon (167 units of 3 and 4-bedroom configurations) - in-built full-height windows with some units enjoying unblocked views of Bukit Timah Nature Reserve and Rifle Range Nature Park. Creekside (48 units of 3 and 4-bedroom configurations) - located in an exclusive low-rise stack with units coming with balconies overlooking the pool or surrounding greenery. Treetops (15 exclusive premium units of 4 to 5-bedroom configurations, duplexes, and penthouses) enjoy exclusive marble interiors, a private lift, or direct car park access. Surrounded by lush greeneries, Bukit Timah is one of the most highly sought-after neighbourhoods in Singapore. The DTL enhanced accessibility to the heritage and recreational options offered in the area. In years to come, residents can look forward to more commercial and community amenities and more convenient access to the green network in the area. Upcoming developments include: A new elevated skypark above the Bukit Timah Canal between Rifle Range Road and Sixth Avenue. The Reserve Residences sold more than 70% of units during its launch weekend. The development’s average price of $2,460 psf is a huge drawing factor given its status as an integrated development in the city fringe, considering how new condo launches in the Outside Central Region (OCR) sold for around $2,000 psf to $2,100 psf. Moreover, Integrated Transport Hubs—more specifically, air-conditioned bus interchanges connected to an MRT station with adjoining commercial spaces—are popular among home buyers and investors due to the project’s unrivalled convenience, rarity, potential for capital appreciation, and competitive rentability. Check out The Reserve Residences listings for sale and units for rent on PropertyGuru Singapore.
View project details



















