The Medley
66 Lor G Telok Kurau
S$ 2,498,000
Negotiable4
Beds
2
Baths
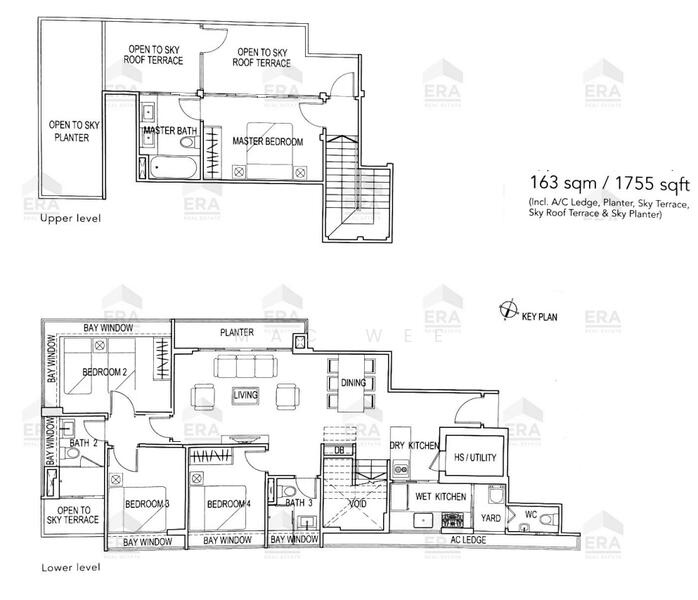
1,755
sqft
S$ 1,423
psf
730 m (9 mins) from EW6 Kembangan MRT
About this property
4 Bedroom Condominium For Sale North South Alignment. Duplex!
Please come view this lovely penthouse with large outdoor space to chill and host. Rare Penthouse Duplex. 4 Bedroom Apartment with redesign potential!
Discover your dream home! This stunning 4-bedroom, 2-bathroom condominium, spanning 1755 sqft, is now available for sale at 66, Lor G Telok Kurau, Singapore. Enjoy the convenience of nearby amenities with Kembangan MRT Station just 1.2 km away and Eunos MRT Station only 1.5 km away. Families will appreciate the proximity to quality schools, including Bethesda Chapel (0.7 km) and All Hands Together (0.9 km). Grocery shopping is a breeze with FairPrice Lengkong Tiga located 1.0 km from your doorstep. Experience retail therapy at Kembangan Plaza, just 1.2 km away. The condominium features a covered car park, a refreshing swimming pool, and a children's playground for family fun. Inside the unit, enjoy modern comforts such as air conditioning, bedroom cabinets for storage, and a lovely balcony to unwind after a long day. With 24-hour security and facilities like a barbeque pavilion, this property offers a perfect blend of comfort and convenience.
Primary Schools
St. Stephen's School 0.70 KM
Haig Girls' School 1.08 KM
Chij (Katong) Primary 1.17 KM
Secondary Schools
St. Patrick's School 1.24 KM
Chij Katong Convent 1.34 KM
Manjusri Secondary School 1.57 KM
Mix, Government-Aided School
Supermarket
THE ALASKA GUYS PTE. LTD. 0.54 KM
NTUC FAIRPRICE CO-OPERATIVE LTD 0.78 KM
MOHAMAD DAMAR HULAN BIN OSMAN 0.81 KM
MRT
EW6 Kembangan 0.49 KM
EW7 Eunos 0.94 KM
TE27 Marine Terrace 1.23 KM
Bus Stops
#83049 Bef Lor 110 Changi 0.22 KM
Changi Rd
2, 24, 25, 26, 28, 30, 33, 33B, 67, 7, 7A, 854
#83059 Mjd Kassim 0.24 KM
Changi Rd
2, 24, 25, 26, 28, 30, 33, 33B, 67, 7, 7A, 854
#83131 Aft Lor H Telok Kurau 0.25 KM
Telok Kurau Rd
155, 33
Amenities
Air conditioner
Balcony
Barbeque pavilion
Bedroom cabinets
Common facilities
Covered car park
Playground
Swimming pool
Affordability
Tell us your monthly income and expenses to see if this home fits your budget.
The Medley

The Medley is a freehold condominium development located at 66 Lor G Telok Kurau Singapore, in District 15of Singapore. It comprises of 37 units. This property was completed in 2009 by Roxy Homes Pte Ltd. This developer was incorporated on 10 July 1970 in Singapore. The business principal activity is real estate developers. The Medley is perfect for a couple or a small family who love living in a quiet residential area yet close to the thrilling Katong area. In addition to the scenic view of MBS and Flyer, there are facilities provided for the enjoyment and indulgence of the residents such as swimming pool, children’s playground, barbeque pits, and gymnasium room. Shaded car parks are also allocated to the residents. The Medley also have spacious and squarish bedrooms which fits queen size bed, functional enclosed kitchen with yard and bomb shelter. Each unit has a good size balcony with unblock view. The Medley is highly accessible as it is located within 10 to 15 minutes’ walk to Kembangan, Eunos and Ubi MRT stations. It is only a 5 minutes’ drive to Marine Parade shopping center, 10 minutes’ drive to CBD, while a 8 minutes’ cycle to East Coast Park via Siglap Park Connector. There are numerous bus services and taxis are easily reachable from East Coast Road. Residents can head down to the nearby Parkway Parade shopping mall for amenities such as supermarkets, restaurants, banks, boutique shops, and more. This bring convenience to the residents of The Medley. Telok Kurau Secondary SchoolHaig Girl’s SchoolSaint Stephen’s SchoolGlobal Indian International School (East Coast)Rosemount Kindergarten Shahi Family ClinicLim ClinicJinmin ClinicClinic C P Lim Pte LtdPristine Dentalworks and Medical Laserworks Kembangan PlazaFair Price – Lengkong TigaFair Price – Eunos CresentJoo Chiat Complex112 KatongSiglap Shopping Centre The Medley comprises of a total of 37 units. The units come at different sizes ranging from 883 sqft to 1905 sqft. This project has few types of layout such as 2 bedrooms and 2 bathrooms, 3 bedrooms and 3 bathrooms and 4 bedrooms and 4 bathrooms. Project Name: The MedleyType: CondominiumTenure: FreeholdDistrict: 15Configuration: 37 residential unitsLand size: 27,868 sqft Unit types for The Medley:2 bedrooms and 2 bathrooms3 bedrooms and 3 bathrooms4 bedrooms and 4 bathrooms The following projects are by the same developer as The Medley:Neu at NovenaView at KismisDunearan 386Wilshire ResidencesRv Altitude The following developments are in the same neighbourhood as The Medley:Amber ParkMeyer MansionSeaside ResidencesSilverseaAmber 45Frankel Estate
View project details











