The Arcady At Boon Keng
1037 Serangoon Road
S$ 1,978,000
Starting From3
Beds
2
Baths
764
sqft (floor)
S$ 2,589
psf (floor)
500 m (6 mins) from NE9 Boon Keng MRT
About this property
Cheap! City Fringe Freehold project at Leasehold price tag
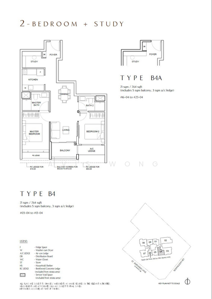
* 2Br + Study 764sf
* Extra space by the entrance can be flexibly converted into a study/work area, bedroom or storage
* Stroll to Bendemeer Market and Boon Keng MRT station (only 3 stations to Dhoby Ghaut interchange)
* Just opposite Bendemeer Primary School, within 1km to Hong Wen School and St Andrew's Junior School, within 2km to Pei Chun Public School
Whether you’re a homeowner seeking urban convenience or an investor looking for long-term value, the Arcady offers the perfect blend of location and lifestyle. Contact Avis today!
Balance units (subject to changes):
2BR 678sf from $1.945m
2+S 764sf from $1.978m
3BR 969sf from $2.486m
3BR Premium 1087sf from $2.767m
3BR Premium + Study 1281sf from $3.254m
4+S 1410sf from $3.794m
4BR PH from 2433sf from $7.163m
Amenities
Air conditioner
Balcony
City view
Security guard
Common facilities
24 hours security
Car park
Gymnasium room
Swimming pool
Affordability
Tell us your monthly income and expenses to see if this home fits your budget.
The Arcady At Boon Keng

The Arcady at Boon Keng, a freehold condominium situated at 1037 Serangoon Road in District 12 of Singapore, embodies refined city living, shaped by thoughtful planning and exceptional design. Developed by KSH Ultra Unity Private Limited (Pte. Ltd.), a collaboration between KSH Holdings Limited, SLB Development Limited, and Ho Lee Group. This condominium development comprises 172 residential units across a well-designed vertical structure. Each home represents comfort, privacy, and functionality, offering a range of layouts that suit singles, couples, and families alike. Every detail within The Arcady At Boon Keng contributes to an environment where elegance, comfort, and connectivity coexist seamlessly, forming a distinctive address within Singapore's central landscape. Scheduled to be completed in 2028. The Arcady At Boon Keng occupies a prime position in District 12, surrounded by key lifestyle conveniences and vital business zones. The development enjoys excellent accessibility to the Central Business District (CBD), making it ideal for professionals seeking quick access to work while remaining connected to leisure destinations. Smart Home technology supports an intelligent way of living, with features that enable remote control of home systems for added efficiency. Sustainability also shapes the development’s design, ensuring energy-efficient layouts and environmentally conscious materials. The condominium combines modernity with greenery, offering a sanctuary where urban energy meets tranquillity. The Arcady At Boon Keng enjoys an enviable location with excellent transport connectivity. Boon Keng MRT Station (NE9) on the North-East Line (NEL) provides a smooth travel experience to key destinations, including Dhoby Ghaut, Clarke Quay, and HarbourFront. For residents who prefer driving, major expressways, including the Central Expressway (CTE) and Pan-Island Expressway (PIE), offer direct access to key areas of Singapore, facilitating effortless commuting. Retail and entertainment options enrich the neighbourhood, with City Square Mall, Poiz Centre, and Mustafa Centre. The nearby Kallang Riverside Park adds a touch of nature with its scenic views and jogging trails, giving residents a place for relaxation and outdoor recreation. The surrounding area blends the vibrancy of city life with calm, community-focused spaces, shaping a balanced urban environment. Spanning a total site area of 56,476 sq ft, The Arcady At Boon Keng extends up to approximately 24 storeys, featuring an architectural style that harmonises elegance and natural serenity. The design embraces open spaces, landscaped gardens, and water features to promote a refreshing sense of well-being. Infinity Pool Spa Pool Family Pool Family Deck Karaoke Room Botanic Club Kids Club Sauna Arcady Club Sky Gym Co-Working Deck Summit Walk Star Gazing Lawn Each facility supports a variety of needs, from recreation and relaxation to health and wellness. Education forms a key consideration for residents, and The Arcady At Boon Keng's position ensures access to established institutions such as: Bendemeer Primary School Bendemeer Secondary School Hong Wen School The presence of these schools within a short distance adds convenience for families with young children and enhances the neighbourhood's suitability for long-term residential living. A variety of eateries, ranging from traditional hawker stalls to established restaurants, can be found around the area, including: DonBaasha 24hrs Restaurant Al Jemi Restaurant Lai Wah Restaurant The mix of cuisines caters to local favourites and international tastes, offering residents a variety of dining experiences within minutes from home. Quality healthcare remains easily accessible to residents through nearby medical facilities such as: The Family Clinic @ Towner Goodwill Clinic I-Health Medical Clinic These clinics provide general healthcare, consultations, and preventive services, ensuring peace of mind for all households within the development. For daily grocery and household needs, residents have access to several supermarkets, including: FairPrice Shop Umart Yong Teck Seng Mart Sheng Siong Supermarket The convenience of multiple supermarkets nearby simplifies everyday living, providing quick access to essentials within a short distance. Situated at 1037 Serangoon Road, The Arcady At Boon Keng occupies a distinguished plot in District 12. The layout features lush landscaping and water elements, creating a sense of retreat amidst an active city. The site plan features open courtyards, family zones, and relaxation decks that seamlessly connect across the development. The Arcady At Boon Keng Condominium 12 172 residential units 24 One-Bedroom Plus Study 527 sq ft to Four-Bedroom Premium 1,625 sq ft Four-Bedroom Plus Utility Penthouses: 2,583 sq ft Each home layout reflects careful spatial planning, offering ample natural light and functional living areas suited for diverse lifestyles. The Arcady At Boon Keng is developed by KSH Ultra Unity Private Limited (Pte. Ltd.), a joint venture between three recognised names in Singapore's real estate landscape, KSH Holdings Limited, SLB Development Limited, and Ho Lee Group. holds a strong presence in both construction and property development, recognised for its precision and quality. is a mixed-use and residential project expert combining cutting-edge design and practicality. has decades of public and private sector experience and a reputation for quality and reliability. This collaboration leverages complementary strengths, fostering a combined commitment to high-quality architecture, sustainable practices, and elevated standards of living. The Arcady At Boon Keng lies among several established residential developments, forming a cohesive and vibrant community. Notable nearby projects include: Kerrisdale Regent Residences The Aberdeen Each development adds to the charm of the neighbourhood, enhancing its appeal as a sought-after residential zone in central Singapore. The Arcady At Boon Keng embodies class and contemporary living in modern architecture with facilities and well-connected surroundings. Fully central, surrounded by a wealth of lifestyle amenities, prime educational establishments, and transport links, it provides a comprehensive residential environment for working professionals and families alike. The balance of luxury, lush vegetation, and connectivity offers a unique residential experience within the city. Visit The Arcady At Boon Keng's sale page to explore more.
View project details




















