Promenade Peak
1 Zion Road
S$ 1,958,200
2
Beds
2
Baths
689
sqft (floor)
S$ 2,842
psf (floor)
430 m (5 mins) from TE15 Great World MRT
About this property
From $2680psf Only! Sheltered to Great World & Havelock MRT! Must View
Superb Location
- Fully sheltered to both Great World and Havelock MRT
- Sheltered to Great World Mall
- Lifestyle living right along the Singapore River
- 2 Mins Walk to Zion Riverside Food Centre
- 6 Mins Walk to River Valley Primary (Majority Sheltered)
- 8 Mins Walk to Tiong Bahru Market (Majority Sheltered)
- Potentially next to another future school
- Together with all the above amenities, it will enjoy easy exit especially with Bukit Merah and Queenstown Million-Dollar HDB estates
An Exciting Development
- SG tallest pure residential building at 240m tall
- Featuring the highest infinity-edged sky pool in SG (MBS is about 190m high)
- 4 levels of exciting facilities incl. 50m lap pool at L1, an incredible L43 Wellness Peak featuring a high-end gym, boxing arena and cross-training arena and of course the roof top SkyPeak featuring the Sky Pool, clubhouse and more
- All units designed to be more flexible, with thoughtful designs such as dedicated study area in the 2+S and bigger, flexible living & dining area for the 3BRs
- Quality fittings from Miele, Gessi and more. View it yourself. Can just drop me a call or text to arrange a viewing, We are here everyday!
Attractive Price
- Lowest psf among the current wave of new launches in the Central Area
- Buy into the height advantage
- Massive positive price gap vs other near by developments
- Easy exit and safe entry price
- Buy higher floor at lower price
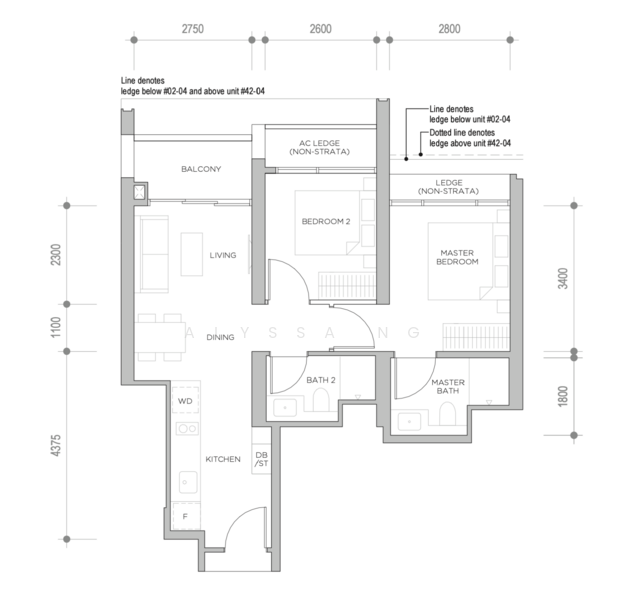
For L2 – 42: Promenade Collections
1+S – 527 sqft (80 units)
2BR – 657 to 689 sqft (200 units)
2+S – 764 to 797 sqft (120 units)
3BR – 1033 to 1076 sqft (80 units)
For L44 – 62: Promenade Suites
3BR Premium w Pvt Lift – 1163 to 1195 sqft (38 Units)
4BR Premium w Pvt Lift – 1421 to 1582 sqft (57 Units)
5BR Premium w Pvt Lift – 1884 sqft (19 Units)
2 units of single-level penthouse, 4144 sqft, on Level 63
For viewing and enquiry, please call Alyssa at 8***** or Andrew at 9*****
Common facilities
24 hours security
Accessible washroom/shower
Adult fitness stations
Aircon facilities
Affordability
Tell us your monthly income and expenses to see if this home fits your budget.
Promenade Peak
Promenade Peak, a distinguished 99-year leasehold residential tower, rises at No. 1 Zion Promenade, Singapore 160088, within the highly desirable District 3, Alexandra/Commonwealth area. The condominium development by Allgreen Properties Limited, a subsidiary of the Kuok Group, contains a total of 596 residential units. The selection of unit types covers one-bedroom, two-bedroom, and larger layouts catering to singles, couples, and families. Scheduled to be completed in 2029. Promenade Peak occupies a prime position in District 3, granting connectivity to key locations such as the Central Business District (CBD), Orchard Road, and major expressways. At 63 storeys, the tower ranks as the tallest purely residential development in Singapore, offering beautiful views of the city skyline, the Singapore River, and the Alexandra Canal. The façade draws inspiration from flowing water, with reflective glass panels shaped to mimic the ripples of a river, establishing a seamless connection with the riverside setting. Elegance, convenience, and premium living merge here, presenting a benchmark in urban luxury. The positioning of Promenade Peak emphasises accessibility and comfort. The development is situated within walking distance of Great World MRT Station (TE15) and Havelock MRT Station (TE16), both of which are reachable in four to five minutes. Drivers enjoy a smooth passage through the Central Expressway (CTE) and Kim Seng Road, allowing them to reach prominent destinations such as the CBD efficiently. Surrounding attractions further elevate the experience, with Great World City and Valley Point Shopping Centre offering an abundance of retail and dining options. The design of Promenade Peak focuses on enhancing individual well-being while fostering community interaction. Facilities encompass leisure, fitness, and social engagement, ensuring a balanced lifestyle that combines activity and relaxation. The range of offerings includes: 50 Metre Lap Pool Sun Deck Promenade Lounge Serenity Cove Pickleball Court Bowling Lawn Hydrospa Bay Relaxation Pool Playground Family Pool Hanging Garden Floating Hammock The Gymnasium Revitalising Pool Sky Peak Infinity Pool Sky Lounge Lush landscaping enriches the surroundings, creating tranquil spaces where modern comforts blend seamlessly with natural serenity. Communal areas reflect careful planning, fostering both privacy and neighbourly connection. Families within Promenade Peak have access to a selection of respected learning centres, ensuring education at various levels. Options nearby include: Camelot River Valley River Valley Primary School Brighton Montessori River Valley The presence of such institutions offers convenience for households with young learners while strengthening the residential appeal of the area. Promenade Peak boasts proximity to a diverse range of dining outlets, reflecting Singapore's vibrant culinary scene. Nearby options feature: Zion Riverside Food Centre Din Tai Fung at Great World IndoChili From hawker-style favourites to international cuisine, the dining landscape supplies variety and accessibility for all tastes. Healthcare support remains readily available with medical facilities conveniently located in the vicinity. Residents benefit from: Twin City Medical Centre Havelock Family Clinic United Traditional Chinese Medicine (TCM) Clinic These clinics offer modern healthcare and traditional services, ensuring emergency medical access. Daily essentials remain accessible with several supermarkets in the neighbourhood. Choices include: MEIDI-YA Supermarket Great World Bee Cheng Hiang Great World Store MUJI Great World Such proximity secures convenience for households and complements the urban lifestyle Promenade Peak embodies. Promenade Peak is situated in a prestigious location at No. 1 Zion Promenade, within District 3. The 63-storey tower stands as an architecturally distinctive presence on the skyline. The development seamlessly blends urban sophistication with natural harmony, as reflected in its attention to landscaped surroundings and architectural form. Promenade Peak Condominium 3 546 residential units 63 One-bedroom, two-bedroom, and larger layouts One Bedroom Plus Study: 527 sq ft Two Bedroom: 657 to 689 sq ft Two Bedroom Plus Study: 764 to 797 sq ft Three Bedroom: 1,033 to 1,076 sq ft Three Bedroom Premium (with Private Lift): 1,163 to 1,195 sq ft Four Bedroom Premium (with Private Lift): 1,421 to 1,582 sq ft Five Bedroom Premium (with Private Lift): 1,884 to 4,144 sq ft This detailed range caters to diverse household sizes and lifestyle preferences, reinforcing the appeal of the development. The team behind Promenade Peak, Allgreen Properties Limited, is part of the Kuok Group. The Kuok Group has established a long-standing track record of delivering large-scale projects across Singapore and is known for its architectural quality, refined finishes and long-term value. Allgreen built the projects with foresight into location, lifestyle, and long-lasting quality, cementing its place as one of the most established and reputable developers in Singapore. Here are some other distinguished residential projects across Singapore developed by Allgreen Properties Limited: Fourth Avenue Residences Royalgreen Pasir Ris 8 Promenade Peak sits in an area with many well-known residential projects, creating a lively community. Notable nearby projects include: Emerald Park The Trillium Starlight Suites The luxury living experience articulated with Promenade Peak defines a rare occurrence through the combination of extreme premium living, a fantastic location, and elegant design. With amenities designed for both rest and play, along with access to public and private transport, the project offers convenience and balance. A lively surrounding district further shapes it into an aspirational living platform for the Singaporean residential experience. The residential tower not only adds architectural diversity to District 3 but also offers a lifestyle that blends urban sophistication with riverside serenity. Families can anticipate thoughtfully designed finishes, spectacular views, and amenities that promote both contemplation and socialisation. When combined, these qualities enhance the stature of Promenade Hill as a meaningful urban address. Every narrative comes alive in Promenade Peak, which offers a living experience that strikes a careful balance of convenience, elegance, and cultural vibrancy. The address exudes an air of exclusivity without compromising accessibility. Visit the Promenade Peak’s sales page to explore more about this landmark residence.
View project details


















