Marina One Residences
21 Marina Way
S$ 1,950,000
1
Bed
1
Bath
743
sqft (floor)
S$ 2,624
psf (floor)
220 m (3 mins) from NS27/CE2/TE20 Marina Bay MRT
390 m (5 mins) from DT17 Downtown MRT
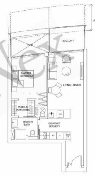
About this property
High floor renovated - 1 bedroom premium stack high ceiling
- Best premium stack
- High floor, high ceiling
- Selling with vacant possession, no tenant
- Straight forward completion
- No extension needed
Call Fernandus at 8***** for an exclusive viewing!
Amenities
Air-conditioning
Balcony
Cooker hob/hood
High floor
Common facilities
24 hours security
Barbeque pits
Car park
Clubhouse
Affordability
Tell us your monthly income and expenses to see if this home fits your budget.
Marina One Residences

Marina One Residences is a luxury condominium located at 21 and 23 Marina Way, Singapore 018978, in the heart of District 01. This impressive 99-year leasehold development by M+S Pte Ltd, a joint venture between Malaysia's Khazanah Nasional Berhad and Singapore's Temasek Holdings, was completed in 2017. The project includes 1,042 residential units and is part of a larger mixed-use development that combines residences, offices, retail spaces, and lush greenery within a single integrated environment. Marina One Residences stands as an architectural landmark in District 01, offering a combination of elegance, sustainability, and convenience. Its location in Marina Bay connects residents to significant landmarks such as the Central Business District (CBD) and Orchard Road with remarkable ease. One of the highlights of Marina One Residences is its integration of Smart Home technology, which allows residents to control appliances remotely and efficiently manage their homes with modern convenience. Designed to encourage biodiversity and promote natural cooling, it reflects Singapore's vision as a City in a Garden. The property is part of the Urban Redevelopment Authority's plan to enhance Marina Bay as a lively waterfront district filled with green spaces, cultural attractions, and retail options. This makes Marina One Residences not only a luxurious place to live but also a development with long-term potential for both lifestyle and investment. Marina One Residences enjoys superb accessibility through both public transport and major expressways. Its strategic location provides easy access to four MRT lines via nearby stations, including Marina Bay MRT Station (TE20) and Raffles Place MRT Station (NS26/EW14), both within a short walking distance. For drivers, Marina One Residences connects smoothly to major expressways, including the East Coast Parkway (ECP), Marina Coastal Expressway (MCE), and Ayer Rajah Expressway (AYE). This ensures quick commutes to key areas, including the Central Business District (CBD), Orchard Road, and Changi Airport. The integrated design of the development means residents can access retail outlets, dining spots, and everyday essentials within the same complex, making it ideal for those who value urban living without compromising comfort. Marina One Residences is designed with thoughtful attention to every aspect of modern living. The range of facilities offered ensures residents have everything they need for recreation, wellness, and relaxation within one space. Barbeque Area Car Park Clubhouse Gymnasium Room Jacuzzi Lap Pool Lounge Multi-Storey Car Park Pool Deck Sauna 24 Hours Security Steam Bath Each facility is carefully designed to complement residents' lifestyles. The landscaped gardens, complete with water features and shaded seating areas, create a calm retreat amid the city's bustle. Families residing at Marina One Residences have access to several choice schools and learning centres that cater to various educational needs. Options nearby include: Coleman College Kingston International College School of Language International The neighbourhood surrounding Marina One Residences offers dining options for every taste and occasion. Choices nearby include: Annalakshmi Restaurant NAEUM Restaurant The Spot - Singapore Access to healthcare facilities is seamless for residents of Marina One Residences. Some clinics and medical centres are situated close by, including: The Clinic Group @ Marina One Clinic @ The Sail Trinity Medical @ Shenton Daily conveniences are readily available for residents through several nearby supermarkets. Some of the nearby choices include: Cold Storage - Marina One DON DON DONKI FairPrice Finest 100AM Marina One Residences occupies a prime site at 21 and 23 Marina Way in District 01, spanning an estimated 65,000 sq ft. The twin towers rise to about 34 storeys, surrounded by landscaped terraces and green spaces that enhance the city's skyline. The design harmoniously balances modern architecture with nature-inspired elements. Sleek glass façades reflect the city lights, while the central courtyard garden adds softness and greenery to the urban setting. The thoughtful arrangement of residential towers, retail podiums, and communal facilities ensures residents' privacy while maintaining a vibrant community atmosphere. Marina One Residences Condominium 01 1,042 residential units One Bedroom units: 657 to 775 sq ft One Bedroom Plus Study: 732 to 764 sq ft Two Bedroom units: 969 to 1,130 sq ft Two Bedroom Plus Study: 1,141 to 1,281 sq ft Three Bedroom units: 1,507 to 1,539 sq ft Three Bedroom Plus Study: 1,561 to 1,593 sq ft Four Bedroom units: 2,034 to 2,250 sq ft Penthouses: 6,469 to 8,708 sq ft Each residence features spacious layouts, elegant interiors, and panoramic city views. High-quality fittings, modern kitchens, and large windows allow residents to enjoy both comfort and sophistication in one of Singapore's most sought-after addresses. Marina One Residences is developed by M+S Pte Ltd, a partnership between Malaysia's Khazanah Nasional Berhad and Singapore's Temasek Holdings. This collaboration combines two of the region's most established investment entities, creating developments that exemplify design excellence and sustainable growth. The company's focus on large-scale, integrated projects is evident in Marina One Residences, which has been widely recognised for its environmentally conscious design and forward-thinking urban planning. Other notable developments by M+S Pte Ltd include: DUO Residences The Marina Bay area is surrounded by several premium residential developments, contributing to a lively and sophisticated community. Nearby projects include: Marina Bay Residences One Marina Gardens One Shenton These developments together form part of the greater Marina Bay skyline, offering residents access to an ever-evolving urban hub filled with business, leisure, and entertainment options. Marina One Residences represents the ideal blend of nature, architecture, and modern living. Its central location in District 01 provides convenient access to major business hubs, entertainment spots, and transport connections, while the thoughtfully designed facilities and lush green areas create a peaceful retreat from the city’s bustle. With its contemporary design, sustainable features, and vibrant neighbourhood, Marina One Residences offers a refined choice for individuals and families seeking a comfortable, connected urban lifestyle in Singapore. Visit the Marina One Residences sale or rent page to explore available units and experience refined city living at its best.
View project details












