Lumina Grand - 22 Units for Sale
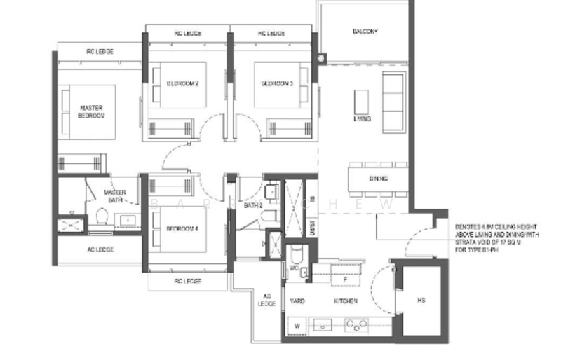
Lumina Grand is a 99-year leasehold Executive Condominium (EC) located at Bukit Batok West Avenue 5 in District 23 (D23). While some may argue that Lumina Grand may not be closely connected to other parts of Singapore, residents can get to the Jurong Lake District (JLD) in approximately ten minutes by car. For families with children, the planned relocation of Anglo-Chinese Primary School and Bukit View Primary would be a huge draw factor. For nature lovers, Lumina Grand is surrounded by various green spaces such as the Bukit Batok Hillside Park, Bukit Batok Nature Park, and Bukit Batok Town Park. The nearest MRT station is Bukit Batok MRT (NS2) on the North-South Line (NSL). Residents can take a one-station ride to the Jurong East Integrated Transport Hub (ITH). The Jurong East ITH will facilitate the seamless connection between the East West Line (EWL), the NSL, and the Jurong Regional Line (JRL). The Jurong East ITH will also unlock a wider network of bus services for residents, making surrounding office spaces, public amenities, and retail facilities more accessible once completed by 2027. Lumina Grand is also a short walk away from the upcoming Tengah Plantation MRT (JE1) on the JRL. Set to launch in stages between 2027 to 2029, the JRL will boost accessibility of places in the further ends of Jurong such as NTU and Jurong Hill. Alternatively, residents can capitalise on the well-connected public bus networks in the area. With a total of 11 bus routes serving the Bukit Batok Bus Interchange, residents can easily travel to other parts of Singapore. For drivers, the condo is a five-minute drive to the Pan-Island Expressway (PIE) and a 10-minute drive to the Kranji Expressway (KJE). Reflective Pond Zen Garden Urban Farming Crafting Pavilion Botanical Patio Fun Lawn BBQ Pavilion Yoga Lawn Reflexology Walk Kids Play Recreation Pavilion Fitness Zone Kids Explore Garden Path Tranquil Garden Social Lawn Tennis Court Residents’ Music Room Social Room Residents’ Dance Room Games Room Pets Play Clubhouse 1 & 2 Grand Lawn Sun Deck 50m Lap Pool Pool Deck Spa Pool Jacuzzi Pool Kids Pool Gym Reading Lounge 1 & 2 Green Aisle Relaxation Deck Future Relocated Bukit View Primary School (within 1km radius) Future Relocated Anglo-Chinese Primary School (within 1km radius) Dazhong Primary School (within 1km radius) Anthony Primary School (within 1km radius) Swiss Cottage Secondary School (within 2km radius) Millennia Institute (within 2km radius) Bukit Batok Secondary School Bukit View Secondary School Dunearn Secondary School Hillgrove Secondary School Lian Hua Primary School Princess Elizabeth Primary School Yuhua Primary School Nearby healthcare facilities include: Ng Teng Fong General Hospital Bukit Batok Polyclinic Lumina Grand’s proximity to Tengah and the JLD allows residents to enjoy an array of amenities, including unrivalled access to an emerging business, lifestyle, and tourism hub. For quick grocery runs and meal fixes, Le Quest shopping mall, West Mall, and Sheng Siong supermarket are all a stone’s throw away from Lumina Grand. For wider retail and dining options, residents can explore the cluster of malls in Jurong East comprising JEM, Westgate, IMM and JCube. Families with children can also visit the well-equipped Civil Service Club @ Bukit Batok. Featuring a water park with a wave pool, a 4-storey slide, a jacuzzi, a kids-waving pool, and a 24-lane bowling alley, the place makes for a great weekend hangout. City Development Limited (CDL) is a reputable real estate company with a strong presence in 28 countries. As one of the largest companies listed on the Singapore Stock Exchange, CDL’s real estate portfolio covers a diverse range of properties comprising residential, commercial, and hotel projects. CDL also has other notable projects under its belt, including The Myst, Tembusu Grand, Canninghill Piers, and Copen Grand. Sitting on a site area of approximately 178,936 sq ft, the condo houses 512 exclusive residential units across 10 residential blocks of 12 to 13 storeys high. Units come in 3 to 5-bedroom configurations with 3-bedroom units making up 60% of the unit mix. Notably, residential blocks in the development are all point blocks. With no long common corridors between units, residents enjoy greater privacy with four units per floor. Tower blocks are also meticulously arranged in three main rows 20m apart with facilities strategically placed between each row and in the corners of the site. This ensures most units get maximised views. Given the strategic position on the fringe of Tengah, future residents will enjoy the developments planned for the area. The completion of the JRL will further enhance the connectivity of residents to the JLD. Complementing the existing EWL and NSL, the new JRL will further increase accessibility to the rest of Singapore so residents can get to major business centres such as the Woodlands Regional Centre, Marina Bay, and Raffles Place as well as education hubs such as the National University of Singapore and Nanyang Technological University in approximately thirty minutes. Lumina Grand will also be close to the upcoming Jurong Innovation District (JID) and Jurong Lake District (JLD), which are massive projects set to transform the western region of Singapore. Serving as a research hub for advanced manufacturing with reputable technology partners such as Siemens, Hyundai Motor, and A*STAR, the JID is expected to create 95,000 jobs so residents can look forward to more employment opportunities closer to home. In time to come, this may also further drive up rental demands for housing in nearby neighbourhoods so homeowners may enjoy increased rental yields. CDL secured the site with a winning bid of $336.07 million, which works out to $626 psf per plot ratio (psf ppr). As the only EC launched in 2024, Lumina Grand sold 53% of units on launch day. The project’s popularity may be attributed to pent-up demand with limited units at Altura EC which was launched a year back. On the whole, demand for ECs like Lumina Grand will remain strong as buyers seek out manageable entry into the private, non-landed market. Check out Lumina Grand listings for sale and units on rent PropertyGuru Singapore.
DeveloperCDL Zenith Pte Ltd










