Hillington Green
53 Hillview Avenue
S$ 2,750,000
Negotiable4
Beds
3
Baths
1,528
sqft
S$ 1,800
psf
450 m (5 mins) from DT3 Hillview MRT
About this property
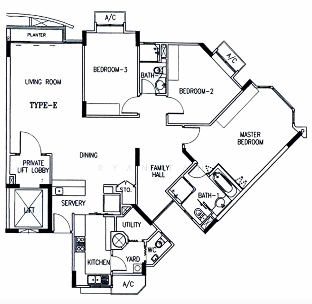
Spacious 3bedroom with Study
Private Lift entrance
Walking distance to Hillview & Hume MRT
Located within a short stroll to Hillview MRT station and HillV2, this tastefully renovated 3-bedroom unit with study and utility room offers a peaceful retreat away from main road traffic.
Size: 142 sqm (approx. 1,528 sq.ft)
Layout: 3 Bedrooms + Study Room + yard area + Utility Room
Orientation: North-South Facing
Quiet environment, away from main road / traffic noise
Step into a spacious living and dining area designed for comfort and entertaining.
The current owner has thoughtfully remodelled parts of the unit
Key features, Renovated & Customised Layout
Private lift entrance reconfigured (hacked)
Original kitchen servery counter hacked and removed for a more open feel
Spacious living and dining areas – ideal for families or entertaining
Generously sized kitchen, stove and sink relocated.
All common bedrooms can comfortably fit queen-sized beds
Dedicated study room with custom-built storage platform
Master bedroom upgraded with a walk-in wardrobe (original bathtub removed for enhanced space)
This home is perfect for families looking for a home with practical enhancements and spacious interiors.
Viewing is highly recommended to appreciate the full potential of this home.
Agents welcome
Contact Ryan Tan @ 9***** for viewing arrangements.
Amenities
Air conditioner
Balcony
Covered car parking
Security guard
Common facilities
24 hours security
Barbeque pits
Clubhouse
Covered car park
Affordability
Tell us your monthly income and expenses to see if this home fits your budget.
Hillington Green
Hillington Green is 999 years old leasehold development and the location of the apartments is at Hillview Avenue. The project was completed in 2003 for the services of people. The territory of apartments comes under the jurisdiction of District 23. The project consists of 10 floors and 522 units. The location is very close to the MRT station named Hillview MRT station. There are many shopping centers and restaurants that are available to fulfill the needs of people according to taste and demand. The residents of the apartments can go there for entertainment and shopping for their needs. The developer of the building is Hong Leong Holdings Limited. The organization is famous for its numerous projects and the organization has collaborated with international construction companies to fulfill their major projects. There are total 522 units and the huge tower is 10 stories higher than the ground level. The apartments are well equipped with all facilities and well decorated. The apartments are a minimum of two bedrooms and a maximum of four bedrooms. The kitchen and lounge area is also there in the apartment. Each room has its own attached bathroom. The apartments are available for sale as well as for rent. The charges are reasonable and affordable. The price may vary depending on the size, the number of rooms and the floor. The management has maintained the decorum of the apartment. The major roads are linked with the location of the apartments that leads to a central business hub and Orchard Road Shopping Belt within 15 to 20 minutes. The roads are Ayer Rajah Expressway and Pan Island Expressway respectively. There are more than 20 bus stops of private and public transport companies serving in the area. There is an MRT station very close to the building. There are educational facilities nearby like Henry Park Primary School and Cambridge High School. Medi-Com Enterprise Pte Ltd hospital is within the proximity to the location. The cold storage Rail Mall supermarket is 5 minutes away from the location. Green corridor, Old park Dairy Farm park both are just around the corner of the location of the apartments. Joyden Canton KitchenSarpino's PizzaTandoori Culture, HillV2Kinsa Sushi RestaurantShin Manbok Korean RestaurantKings Indian Banana Leaf RestaurantSchool House By The BayBukit Panjang Methodist Church KindergartenSt Francis Methodist SchoolClub Orange After School Student CareLoveShine Montessori SchoolhouseAssumption English SchoolHillV2The Rail MallCold Storage Rail MallCold Storage Hill View Market PlaceCareForU Pte Ltd Hillington Green contains a total of 10 floors. It has 522 units in total and mostly the units are made up of 2, 3 and 4 bedrooms. The units with two bedrooms have built-up areas ranges from 980 sq. ft. to 990 sq. ft. The built-up area of all the unit’s ranges from 980 sq. ft. to 1776 sq. ft. Project Name: Hillington GreenType: CondominiumDistrict: 23Configuration: 522 units Unit types:2-bedrooms (980 - 990 sqft)3-bedrooms (1,345 - 2,669 sqft)4-bedrooms (1,776 sqft) The following projects are by the same developer as Hillington Green:D'nestThe AvenirThe JovellBallota Park Condo The following developments are in the same neighborhood as Hillington Green:Blossom ResidencesThe TenneryThe HillierMidwoodDairy Farm ResidencesKingsford Hillview Peak
View project details
















