Hillhaven
5 Hillview Rise
S$ 2,688,799
4
Beds
3
Baths
1,378
sqft (floor)
S$ 1,951
psf (floor)
380 m (5 mins) from DT3 Hillview MRT
About this property
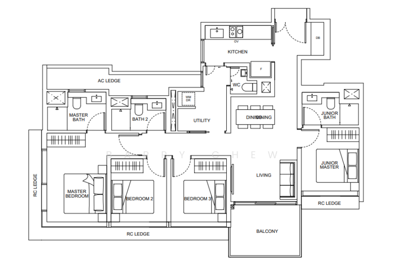
4-Bedroom Home at Hillhaven
** Walking distance to Hillview MRT (Downtown Line) — approx 4-5 minutes — ensuring seamless travel to the CBD, Orchard, and major hubs.
** Near major expressways (BKE, PIE) facilitating easy car travel across the island.
** Rich with green and recreational spaces: Bukit Timah Nature Reserve, Dairy Farm Nature Park, Bukit Batok Nature Park, Rail Corridor close by for jogging, walks, weekend nature escapes.
** Excellent retail & dining options minutes away: HillV2 right beside, The Rail Mall, Hillion Mall, Junction 10, West Mall and many F&B options locally.
** Education: CHIJ Our Lady Queen of Peace (within 1 km), Lianhua Primary, Bukit Panjang Primary, Dazhong Primary, St Anthony’s. And access to prestigious schools in the Bukit Timah belt.
** Project & Facilities: Hillhaven offers over 30 facilities including a 50m swimming pool, gym, clubhouse, leisure pavilions and many sustainable features (solar panels, energy efficient systems). TOP expected Q3 2027.
This 4-bedroom layout is perfect for those needing more space — whether for children’s rooms, guests, or a dedicated home study. With peace, greenery, major conveniences, and connectivity so close, this represents a rare opportunity in the Hillview district.
Common facilities
Accessible washroom/shower
Adult fitness stations
Aircon facilities
Alfresco dining
Affordability
Tell us your monthly income and expenses to see if this home fits your budget.
Hillhaven

Hillhaven, a distinguished 99-year leasehold residential development, is located at No. 5 Hillview Rise, Singapore 669809, within the desirable District 23. The condominium development, a product of collaboration between Far East Organisation and Sekisui House Limited, comprises 341 residential units. Each aspect reflects a refined architectural approach with sleek lines that maximise natural light and views of the surrounding greenery. The design embodies an elegant harmony between luxury and nature, utilising premium materials and environmentally conscious finishes to create an enclave where refined living meets serene tranquillity. Scheduled to be completed in 2027. Hillhaven is in a prime District 23 location which offers essential connectivity to numerous serious business, shopping, and lifestyle destinations, including the Central Business District (CBD), Orchard Road, and major expressways. The location also offers various amenities, all designed with comfort, leisure, and wellness in mind to allow residents to form close connections with the community. Smart Home technology can be incorporated into each home, giving the homeowner an enhanced modern living experience and allowing for remote control of appliances. Every detail expresses a balance of urban sophistication with natural calm to create an enviable setting for a serene lifestyle. Hillhaven is situated in a location that offers both convenience and accessibility. Situated approximately a six-minute walk, or around 450 metres, from Hillview MRT Station (DT3), the development connects easily to the city centre through the Downtown Line (DTL). For residents who drive, the Bukit Timah-Kranji Expressway (KJE), Pan Island Expressway (PIE), and Ayer Rajah Expressway (AYE) provide direct links to the city and major destinations, with travel times averaging 15 to 20 minutes. The surrounding neighbourhood enhances daily convenience through various retail and entertainment choices. The combination of accessibility and proximity to nature reserves creates an environment that blends modern urban life with natural charm. Hillhaven spans approximately 1.5 hectares and offers a comprehensive range of facilities tailored to suit diverse lifestyles. The development contains: Accessible Washroom/Shower Adult Fitness Stations Aircon Facilities Alfresco Dining Arrival Lounge/Arrival Court Bicycle Parking BBQ Pavilion Car Park Changing Room Children's Pool Children's Playground Covered Linkways Community Garden Dining Pavilion Drop Off Point Electrical Sub-Station Fitness Corner Gymnasium Room Jacuzzi Lap Pool Leisure Pool Lift Lobby Landscaped Garden Main Entrance Multi-Storey Car Park Multi-Purpose Lawn Multi-Purpose Hall Party Lawn Pavilion Pool Deck Perimeter Fencing Playground Poolside Lounge Reading Alcove Recreational Pool Shelters Sky Garden Spa Pool Steam Bath Swimming Pool Wading Pool Each facility contributes to an environment where relaxation, fitness, and social connection align seamlessly. The thoughtful arrangement of landscaped spaces and wellness zones supports a calm and balanced lifestyle amidst natural greenery. Families residing at Hillhaven gain access to educational institutions situated within proximity. These include: Assumption English School Greenridge Secondary School The Perse School (Singapore) Such access enhances the location's appeal for families seeking both education and a peaceful residential setting. Hillhaven offers a diverse selection of dining venues catering to a wide range of tastes. Nearby options include: iO Italian Osteria - HillV2 (Singapore) Chong Qing Grilled Fish (Bukit Timah) Wang Family Kitchen Located mainly within HillV2 and The Rail Mall, these restaurants offer residents convenient access to a range of cuisines, including casual, international, and traditional options. Residents benefit from easy access to several healthcare facilities in the area, such as: Sp Clinic Pinnacle Family Clinic Healthcare Medical These options ensure that essential medical services remain within reach for daily healthcare needs. Daily necessities are conveniently met through several nearby supermarkets, including: Cold Storage The Rail Mall @ Fuyong Estate YI FENG ZA HUO SHANG DIAN CS Fresh HillV2 These outlets offer a range of groceries and household products, adding comfort and convenience to the neighbourhood. Hillhaven is situated on a prime site along Hillview Rise in District 23, spanning an estimated 1.5 hectares. The development comprises two residential blocks rising approximately 28 storeys, showcasing architectural distinction through clean glass facades that capture panoramic views of nearby nature reserves. The design harmonises contemporary elegance with natural serenity, forming an environment of refined urban comfort. Hillhaven Condominium 23 341 residential units 28 Two Hillhaven accommodates a varied range of homes, from two- to four-bedroom layouts, including configurations with a study. Each unit maximises usable space and natural lighting through thoughtful layouts, modern kitchens, and spacious interiors. Two-bedroom units: range between 678 sq ft to 721 sq ft Two-bedroom plus study units: around 797 sq ft Three-bedroom units: range between 947 sq ft to 1,141 sq ft Three-bedroom plus study units: range between 958 sq ft to 1,195 sq ft Four-bedroom units: range between 1,259 sq ft to 1,636 sq ft The arrangement of homes caters to singles, couples, and families alike, ensuring comfort and flexibility for a diverse range of lifestyles. Hillhaven emerges from a joint effort between Far East Organisation and Sekisui House Limited. Far East Organisation, a key name in Singapore's property landscape, emphasises sustainability and quality in its residential designs. Sekisui House, a prominent Japanese developer, adds its depth of international experience and innovation in sustainable architecture. Their partnership secured the Hillview Rise land parcel through the Government Land Sale (GLS) exercise in 2022, reflecting the site's value and strong residential demand within the area. The collaboration unites expertise from both developers to create a living environment that prioritises design excellence and long-term quality. Other developments associated with the same developer include: The Scotts Tower Greenwood Mews Alana These projects demonstrate a consistent commitment to high-quality materials, elegant layouts, and thoughtfully designed community spaces. Hillhaven stands amid a lively neighbourhood surrounded by other notable residential developments such as: Hillview Heights Hillington Green Midwood The combination of established condominiums and upcoming developments contributes to a balanced, dynamic community character within the Hillview district. Hillhaven represents refined living in a setting where contemporary design meets lush surroundings. Its combination of accessibility, thoughtful amenities, and attention to comfort defines an ideal balance between city convenience and the calm of nature. The location, supported by educational institutions, dining options, and lifestyle amenities, reflects a development designed for a fulfilling urban lifestyle that retains a sense of quiet retreat. Visit Hillhaven's sale page to explore available units and experience a residence where nature and modern comfort come together.
View project details



















