Grand Dunman
2 Dunman Road
S$ 4,333,000
5
Beds
4
Baths
1,679
sqft (floor)
S$ 2,581
psf (floor)
220 m (3 mins) from CC8 Dakota MRT
About this property
Mega Development next to Dakota MRT
Discover the epitome of modern living at GRAND DUNMAN.
Grand Dunman is a 99LH nestled in the residential enclave of District 15. The development comprises 1,008 residential units ranging from 1-5 bedroom apartments.
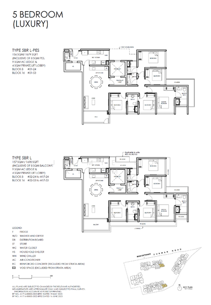
About the 5 bedrooms at Grand Dunman.
Before you proceed, you must understand that :
There are 2 major types of 5 bedrooms in Grand Dunman.
1. 5 Bedrooms Grand (Only 2 Stacks, XX-01and XX-05 with price starting from $5.262m) - Model layout available at showflat.
2. 5 Bedrooms Luxury (Only 2 Stacks XX-24 and XX-53) with price starting from $4.074m – Model layout NOT available at showflat however, I have a personalised simulation to simulate this 5BR luxury layout using the 4BR Luxury Showflat.
The 5 bedrooms configuration at the Grand Dunman is very thoughtful in affordability and price quantum with younger generation in mind (who may have a few kids in tow who will eventually grow up wanting their own bedrooms and privacy).
The 5BR (Luxury Series) :
1. Masterbedroom with wardrobe with decent bathroom size for papa and mama
3.Bedroom 2 (Junior ensuite )is next to a common room, suitable for adult child still studying or working. Standalone common bedroom is next to this junior ensuite.
4. 2 more common bedrooms with jack and jill bathroom, can serve as guest bedrooms, children't bedroom, play room, game room or work room.
5. This
5 bedrooms is being served by private lift.
6. Modest Size Wet and Dry kitchen
So, what are you waiting for? Let's take a tour around this cosy 5 bedrooms that will satisfy your every living desire!
Shopping : PLQ Mall, Paya Lebar Square, and Singpost Centre.
Schools : Kong Hwa School (Primary), Tanjong Katong Primary School, and Chung Cheng High School (Main) (Secondary) within close proximity.
MRT/LRT near Grand Dunman :
- CC8 Dakota (0.29KM)
- CC9 Paya Lebar (1.00KM)
Contact JAIMIE HO at 9***** today to schedule a viewing today!
Amenities
Air-conditioning
Balcony
Cooker hob/hood
Intercom
Common facilities
24 hours security
Aircon facilities
Barbeque pits
Basement car park
Affordability
Tell us your monthly income and expenses to see if this home fits your budget.
Grand Dunman

Grand Dunman is a newly launched condominium located along Dunman Road in Singapore’s coveted District 15 (D15). Grand Dunman, 99-year leasehold project houses 1,008 units comprising 1 to 5-bedroom configurations and offers residents unrivalled views of D15’s landed enclaves and the surrounding tranquil seas. Located on the city fringe, Grand Dunman is in a well-established residential area in D15. The homeowners benefit from convenience at their doorsteps with a variety of dining options, services, and monuments that are distinctive to Singapore, such the famed Dove playground and the Peranakan mansions in Joo Chiat. Grand Dunman is also well served by a highly connected bus network that easily takes residents to all parts of the island. A quick two-minutes’ walk to Dakota MRT station on the Circle Line (CCL) takes residents to various parts of Singapore. Well-equipped malls in nearby neighbourhoods such as Paya Lebar and Katong as well as affordable amenities such as food centres are easily within reach. For families with school going children, Grand Dunman is also within proximity to a handful of choice schools. Grand Dunman’s best selling point is the fact that it is a short two-minutes’ walk to the Dakota MRT (CC8) station on the Circle Line (CCL). With the MRT line right next to home, the residents can conveniently access other MRT lines such as the East West Line (EWL) at Paya Lebar (EW8/CC9), Downtown Line (DTL) at Promenade (DT15/CC4), and the North-East Line (NEL) at Serangoon (NE12//CC13). Moreover, the develoment is well served by many bus services which gives residents accessibility to Singapore’s city centre and the rest of the island. For drivers, Grand Dunman is well served by the Pan Island Expressway (PIE) and East Coast Parkway (ECP) which connects residents to industrial developments in Changi Business Park and Jurong Lake District as well as Tampines and the Central Business District (CBD). The residents will also be spoilt for choice when it comes to food options in the area. Grand Dunman is within walking distance from the popular Old Airport Road Food Centre, the Katong stretch known for its rich Peranakan heritage, hip cafes, and supper spots as well as a few malls in Paya Lebar. 80m Grand Pool Hydro Massage Pool Treetop Walk Treetop Playground Jewel Clubhouse Pool Clubhouse Function Rooms Library Games Room Karaoke Room Sauna Gym Broadrick Secondary School (550m) Chung Cheng High School (Main) (650m) Kong Hwa School (650m) Tanjong Katong Girls’ School (750m) Tanjong Katong Secondary School (1km) Tanjong Katong Primary School (1.4km) Nearby healthcare facilities include: Parkway East Hospital Eunos Polyclinic Choong’s Clinic Healthwise Medical Clinic & Surgery Spring Medical Clinic With Paya Lebar being just one train ride away, Grand Dunman residents can easily hop over to Paya Lebar Quarter, Paya Lebar Square, Singpost Centre and KINEX. When combined, these malls provide a promising range of F&B, retail, and service options such as ALDO, Foot Locker, Uniqlo, Starbucks, Whole Foods, and Golden Village to name a few. Additionally, with various supermarket chains such as NTUC, Cold Storage and Giant all in the area, the residents are also spoilt for choice when it comes to grocery shopping. Alternatively, the residents can also check out malls such as i12 Katong and Parkway Parade in the Katong neighbourhood for more retail and dining options. For nature lovers and those who enjoy spending quality time with family and friends, the East Coast Park is an approximate seven-minutes’ drive away from Grand Dunman. SingHaiyi Group Ltd is a developer with one of the strongest track records in Singapore. Focusing primarily on property development, investment, and management services, SingHaiyi has built a name for itself by expanding its scope from public housing to private residential and commercial projects both locally and abroad. Reputable projects under their belt include Parc Clematis, The Gazania and The Lilium. The Group has also clinched a host of property awards and accolades such as the Building and Construction Authority (BCA) Green Mark GoldPlus award for The Vales executive condominium in Anchorvale Crescent Best Universal Design Development Best Mega-Scale Condo Development Best Strata Housing Interior Design Best Strata Housing Landscape Architectural Design for Parc Clematis. Grand Dunman has already been launched for viewing and sale since July 2023. To book a showflat viewing and learn more about the developments price and floor plans, potential buyers can contact Grand Dunman's official development team or listed agents. Sitting on a land plot of 271,622 sq ft, Grand Dunman spots seven residential blocks with 18 storeys. Unit configurations range from one-bedroom units of 420 sq ft to six-bedroom and dual-key units to meet the differing needs of homeowners and investors. Those who are big on views and unit layout will be glad to know that all units at the development are north-south facing. This translates to views of Grand Dunman’s purposefully designed swimming pools and landscaping for units facing Dunman Road. Units that are more south facing will enjoy views of Mountbatten’s landed enclave encircled by surrounding seas. The URA Master Plan seeks to massively transform and redevelop the Eastern region of Singapore. With Grand Dunman located also in the East, those residing in the development would enjoy the benefits brought by the planned upgrades spanning across successive years. The completion of the Thomson-East Coastline (TEL) will further boost the investment potential of the develoment as the area becomes more connected than ever. With the completion of the Katong Park MRT Station, commuters can easily head over to the Orchard shopping belt and the CBD with one direct train line. Travelling time from the East to places in the North such as Woodlands will also be efficiently reduced. Further adding on the increased mobility and connectivity in the area, five new MRT stations on the Cross Island Line (CRL) will also be launched in the East by 2029. This includes unveiling a new interchange at Pasir Ris station where commuters can switch over to the East-West Line. With the further expansion of the transport infrastructure in the area, Grand Dunman will enjoy seamless cross-modal access to key employment hubs such as the Jurong Lake District and Changi Region. This translates to more residents enjoying the option to work closer to home while investors can benefit from a larger tenant pool. More specifically, expansion of the Changi Region will make way for more employment opportunities for those working in the R&D, aviation, and semiconductor industries. Concurrently, the upcoming redevelopment of Paya Lebar Central with the relocation of the Paya Lebar Airbase will also create more job opportunities in the eastern region of Singapore. SingHaiyi was awarded the Government Land Sales tender of the Dunman Grand site with its top bid of S$1.284 billion, which works out to S$1,350 per sq ft per plot ratio (psf ppr). Properties like Grand Dunman that are within extremely proximity to MRT stations are highly sought after given the high connectivity and ease of commuting offered to residents. Coupling the closeness of Dakota MRT to Grand Dunman with its city-fringe location, owners can expect to enjoy high rental yields and capital appreciation in the future. The enhanced transportation system and greater employment options closer to home are promising developments that the residents can look forward to. Not only do these changes increase the quality of life for those living in the area, capital gains and rental opportunities for properties are also further boosted. Check out Grand Dunman for sale listings and units for rent on PropertyGuru Singapore.
View project details






















