Avenue South Residence
13 Silat Avenue
S$ 1,250,000
Starting From1
Bed
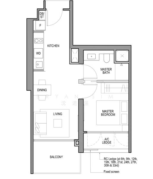
1
Bath
527
sqft
S$ 2,372
psf
1.2 km (15 mins) from CC31 Cantonment MRT
About this property
Discover the Perfect Blend of Urban Convenience and Tranquil Living.
Living at Avenue South Residence places you within proximity to a variety of reputable schools, ideal for families planning for the future. The educational institutions nearby ensure that your child’s learning journey is both convenient and diverse, accommodating a range of educational needs and preferences.
- **CHIJ (Kellock):** 0.3KM
- **PCF Sparkletots Preschool @ Tanjong Pagar-Tiong Bahru Blk 130 (Kn):** 0.41KM
- **Radin Mas Primary School:** 0.64KM
- **PCF Sparkletots Preschool @ Radin Mas Blk 18 (Ds):** 0.81KM
- **CHIJ St. Theresa's Convent:** 0.83KM
- **Zhangde Primary School:** 0.94KM
Residents will soon benefit from enhanced connectivity with upcoming MRT stations, making commuting a breeze and adding to the convenience of this location. Whether you work in the city or frequently explore the bustling areas around, these new transport links will significantly shorten travel times.
- **Keppel (U/C):** 0.78 KM
- **Cantonment (U/C):** 0.92 KM
This is more than just a home; it's an opportunity to elevate your lifestyle with unmatched convenience and a peaceful environment. Don't miss out on owning this exceptional property.
**Contact Bryan Sim at 9***** for more details or to schedule a visit.**
Amenities
Basic lights
Bedroom cabinets
Cabinets
Fridge
Common facilities
24 hours security
Car park
Clubhouse
Gymnasium room
Affordability
Tell us your monthly income and expenses to see if this home fits your budget.
Avenue South Residence

Avenue South Residence is a large-scale private condominium located along Silat Avenue within District 3 (Alexandra/Commonwealth), an area positioned between the city core and Singapore’s southern waterfront. The development occupies a prominent site at the fringe of the Central Business District (CBD) Greater Southern Waterfront corridor, placing it within a zone earmarked for long-term urban transformation. Completed in 2023 by United Venture (Silat) Pte Ltd, a joint venture between UOL Group Limited, United Industrial Corporation (UIC), and Kheng Leong Company, Avenue South Residence is a 99-year leasehold project comprising 1,074 residential units. The development consists primarily of high-rise residential towers, complemented by a row of conserved low-rise flats repurposed for ancillary uses. At 56 storeys, the residential towers are among the tallest in the vicinity, offering elevated views across the city skyline, southern waterfront, and surrounding low-rise neighbourhoods. One of the defining attributes of Avenue South Residence is its city-fringe positioning within District 3, allowing residents to live outside the traditional downtown core while remaining within a short commuting distance of the Central Business District (CBD). This positioning aligns closely with Singapore’s longer-term plans for the Greater Southern Waterfront, which is expected to reshape the southern coastline over the coming decades. With 1,074 units, Avenue South Residence functions as a self-contained residential enclave, offering a full suite of condominium facilities while benefiting from economies of scale uncommon in smaller city developments. The project preserves parts of the area's architectural heritage and contrasts the new residential towers with preserved residential blocks. This preserves the project's identity and establishes cultural roots in the area. Avenue South Residence benefits from road connectivity to key arterial routes serving the southern and central regions of Singapore. Motorists have access to major expressways, including the Central Expressway (CTE) and Ayer Rajah Expressway (AYE), enabling relatively direct travel to the Central Business District (CBD), Orchard Road, and the western employment corridors. Bus services provide public transport links along Silat Avenue and in the surrounding Bukit Merah area. The changing landscape of the area means other infrastructure and mixed-use developments are being developed as part of the broader plan for the southern waterfront. Avenue South Residence was designed as a comprehensive residential development with facilities distributed across landscaped podium and ground-level spaces. Avenue South Residence Condominium 2023 99-year Leasehold 3 1,074 56 Facilities within the development include: Car Park Clubhouse Gymnasium room Lap pool Pavillion Playground 24 hours security Swimming pool Tennis courts Wading pool The overall layout balances high-density living with shared open spaces, a necessity given the development's scale and vertical nature. The development is located within proximity to several schools across Bukit Merah, River Valley, and the central region: River Valley Primary School Crescent Girls’ School Outram Secondary School These institutions support both primary and secondary education needs, with tertiary options accessible via short commutes. A well-rounded dining environment is supported by the diverse food offerings found throughout Bukit Merah and Tiong Bahru: Tiong Bahru Market Zion Riverside Food Centre ABC Brickworks Market & Food Centre This provides residents with practical, everyday dining choices rather than reliance on in-development retail. Healthcare services are readily accessible from Avenue South Residence, with medical facilities located within the central and southern regions. Singapore General Hospital Mao Medical Centre & Surgery SingHealth Polyclinics - Bukit Merah This proximity supports both routine healthcare needs and specialist medical access. Supermarkets and retail centres across Bukit Merah, Tiong Bahru, and the central region support daily necessities: FairPrice Bukit Merah Central FairPrice Jalan Bukit Merah Giant Express - Jalan Membina These retail options provide adequate coverage for grocery shopping and household essentials, complementing the limited commercial uses within the development itself. Avenue South Residence is located on Silat Avenue. It consists of a plot area of approximately 245,972 square feet and multiple tall residential buildings, arranged with optimal views and airflow in mind. It sits alongside conserved low-rise buildings that are connected throughout the overall development. : 527 sq ft : 657 sq ft : 689 - 883 sq ft : 947 - 1,120 sq ft : 1,109 - 1,302 sq ft : 1,496 - 1,668 sq ft Unit layouts are designed to accommodate urban living needs, with larger configurations suited for families and smaller units appealing to city-fringe buyers. Avenue South Residence is developed by United Venture (Silat) Pte Ltd, a joint venture comprising: UOL Group Limited United Industrial Corporation (UIC) Kheng Leong Company Collectively, these developers have an extensive track record in Singapore’s private residential market, spanning both boutique and large-scale developments. The following projects provide valuable reference points, reflecting comparable positioning and development pedigree in the broader market: The Clement Canopy V on Shenton AMO Residences The following projects provide valuable reference points, reflecting comparable positioning and development pedigree in the broader market. Located in District 3 and the southern region of the city, the development has many nearby well-known and landmark residential projects: Spottiswoode Residences The Interlace Reflections at Keppel Bay This mix contributes to a mature residential environment supported by long-standing infrastructure and amenities. Buyers seeking proximity to Singapore's Central Business District (CBD) and the future Southern Waterfront are drawn to Avenue South Residence, reflecting the growing interest in living on the city fringe. Avenue South Residence is a large-scale high-rise with lots of amenities. It's the best of both worlds: functional yet with the feel of an urban condo, with small boutique, low-density projects. As the Greater Southern Waterfront develops, Avenue South Residence sits within an evolving corridor that connects the City Centre with Singapore's southern coast and serves the daily commute for both residential types. Explore available sales and rental listings at Avenue South Residence to find options that align with your space requirements, lifestyle preferences, and long-term housing plans.
View project details














